GM Service Manual Online
For 1990-2009 cars only
Makes
🢒
Buick
🢒
2006
🢒
LaCrosse
🢒
Steering
🢒
Steering Wheel and Column
🢒 Steering Wheel Schematics
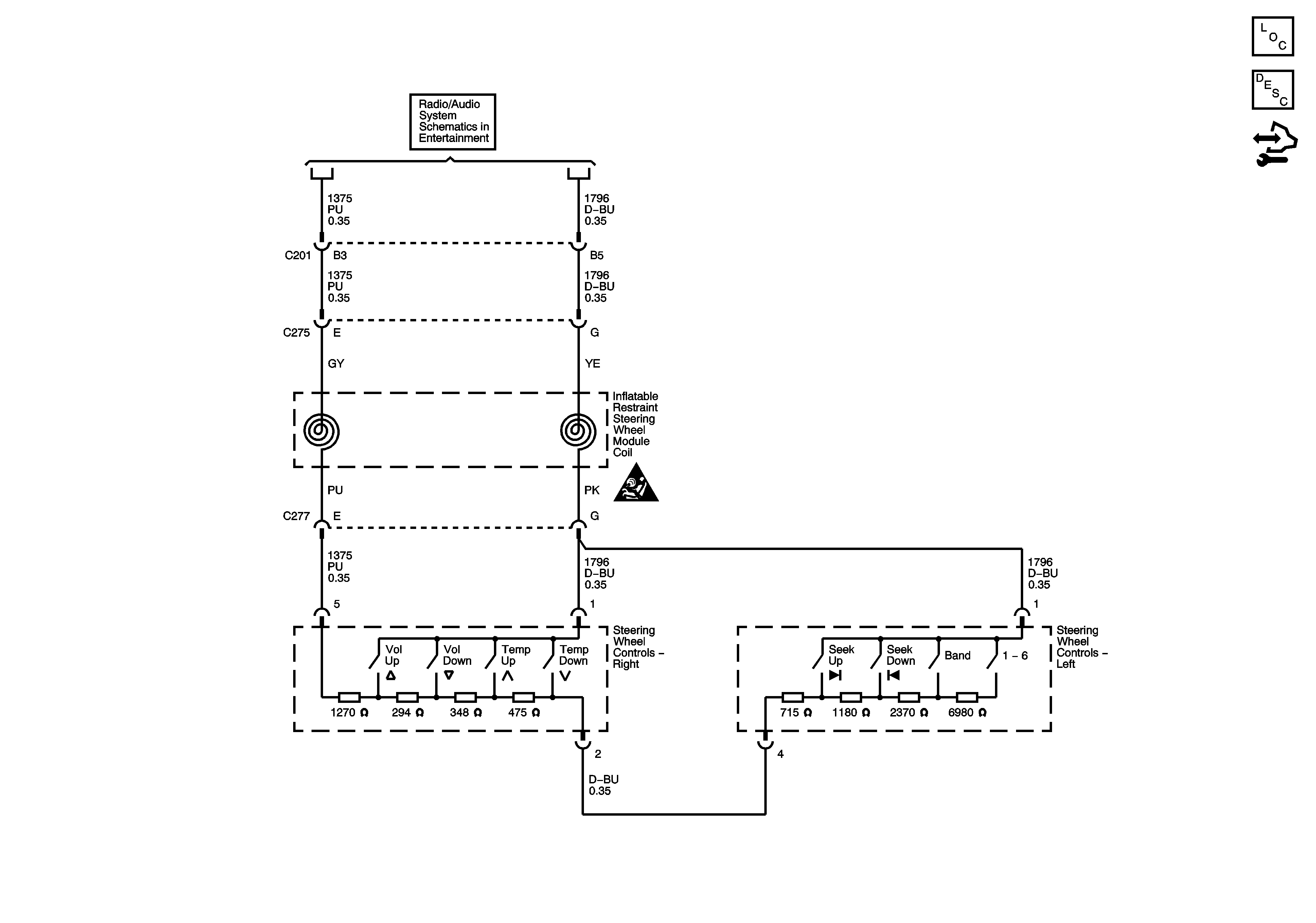
Redundant Steering Controls
Master Electrical Component List
Steering Wheel Controls Description and Operation
Control Module References
Steering Wheel Controls
Steering Wheel and Column Schematic Icons