GM Service Manual Online
For 1990-2009 cars only
Makes
🢒
Buick
🢒
2007
🢒
LaCrosse
🢒 Power, Ground, Serial Data, Antennas, and Voice Recorder
Power, Ground, Serial Data, Antennas, and Voice Recorder
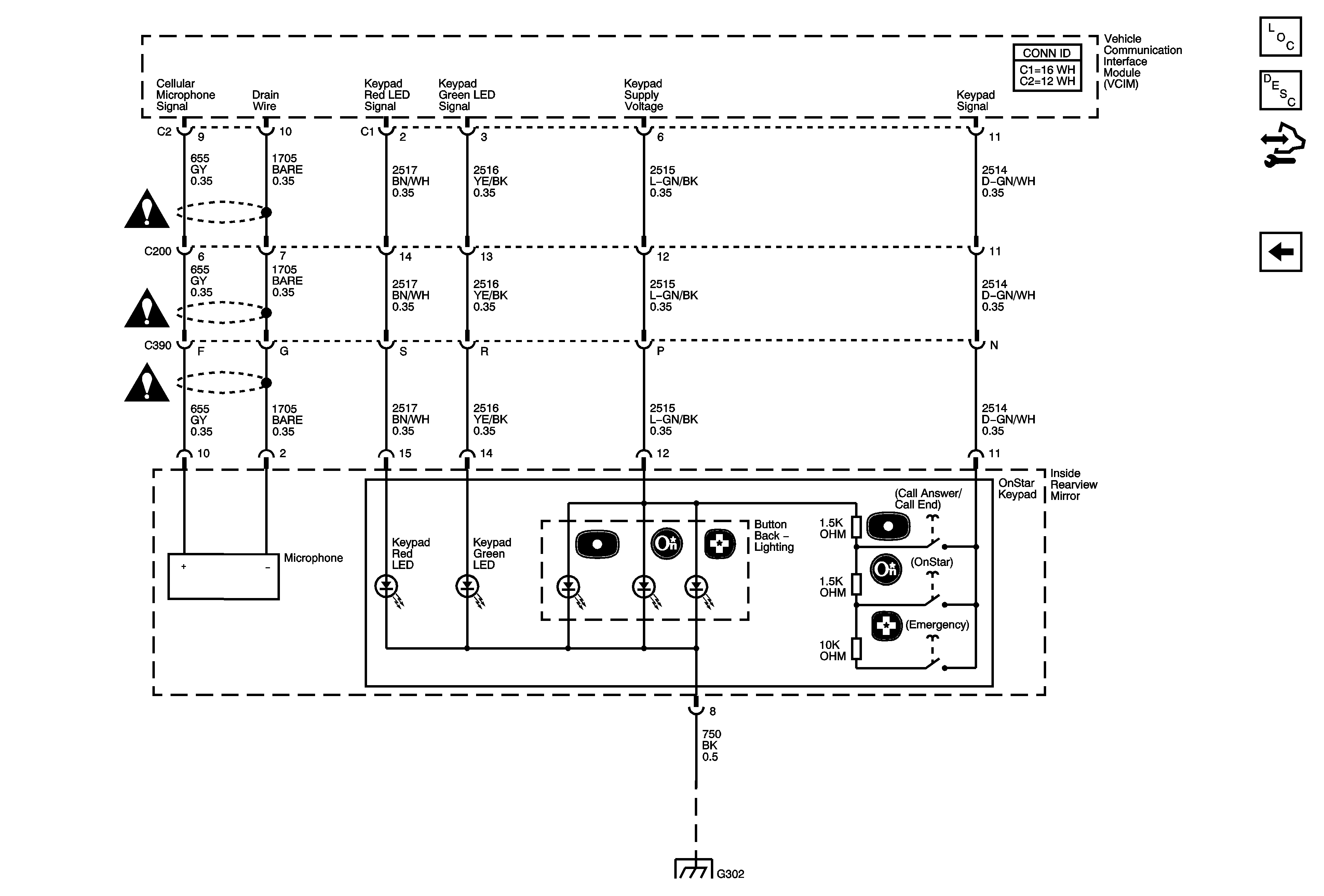
VCIM to Inside Rearview Mirror
Master Electrical Component List
OnStar Description and Operation
Control Module References
VCIM to Inside Rearview Mirrors
Entertainment/Communication Schematic Icons
Entertainment/Communication Schematic Icons
Entertainment/Communication Schematic Icons
G302