GM Service Manual Online
For 1990-2009 cars only
Makes
🢒
Buick
🢒
2008
🢒
LaCrosse
🢒
Diagnostic Navigation
🢒
Vehicle Diagnostic Information
🢒 OnStar Schematics
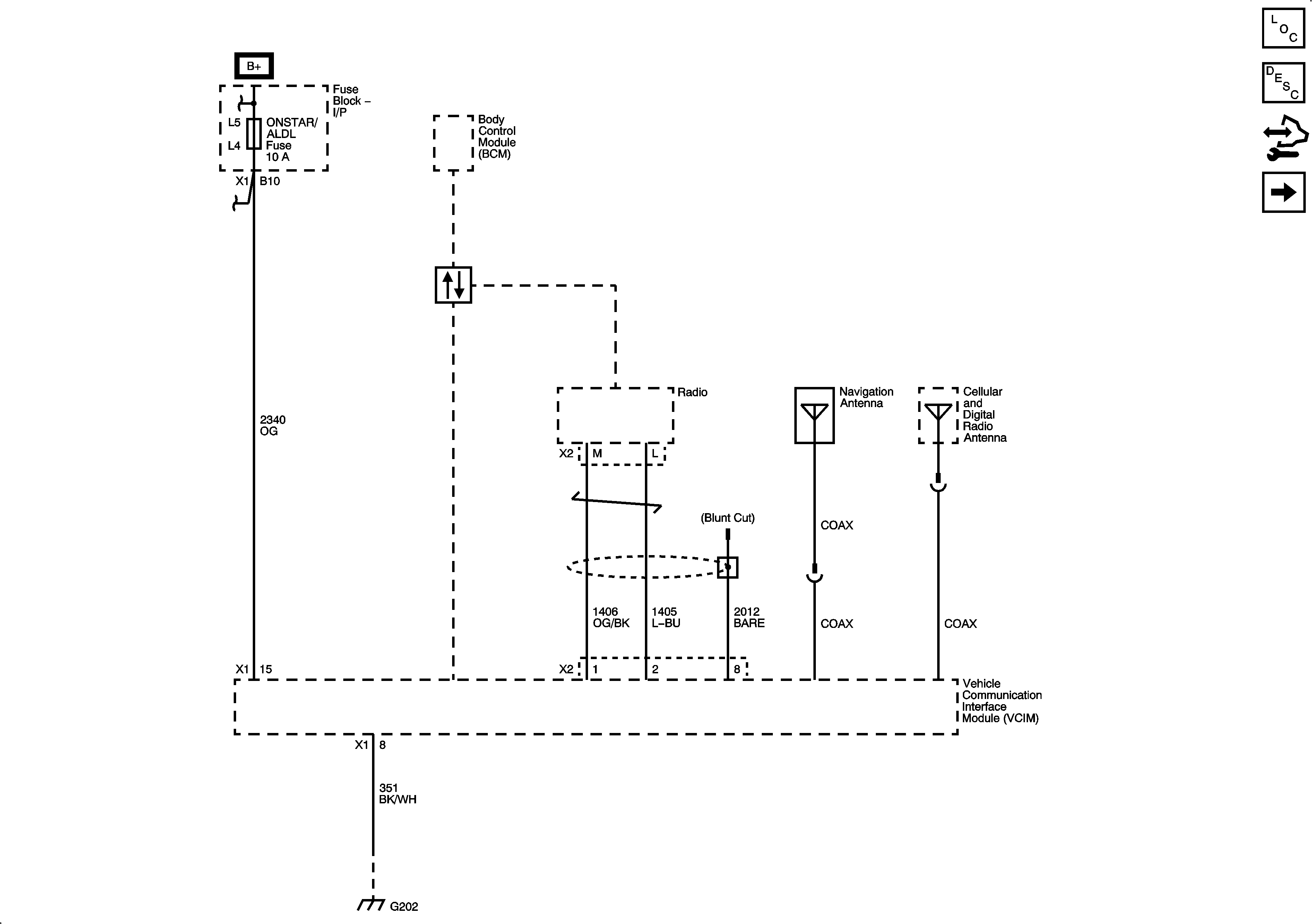
Figure
1:
Power, Ground, Serial Data, and Antennas
Master Electrical Component List
Radio/Audio System Description and Operation
Control Module References
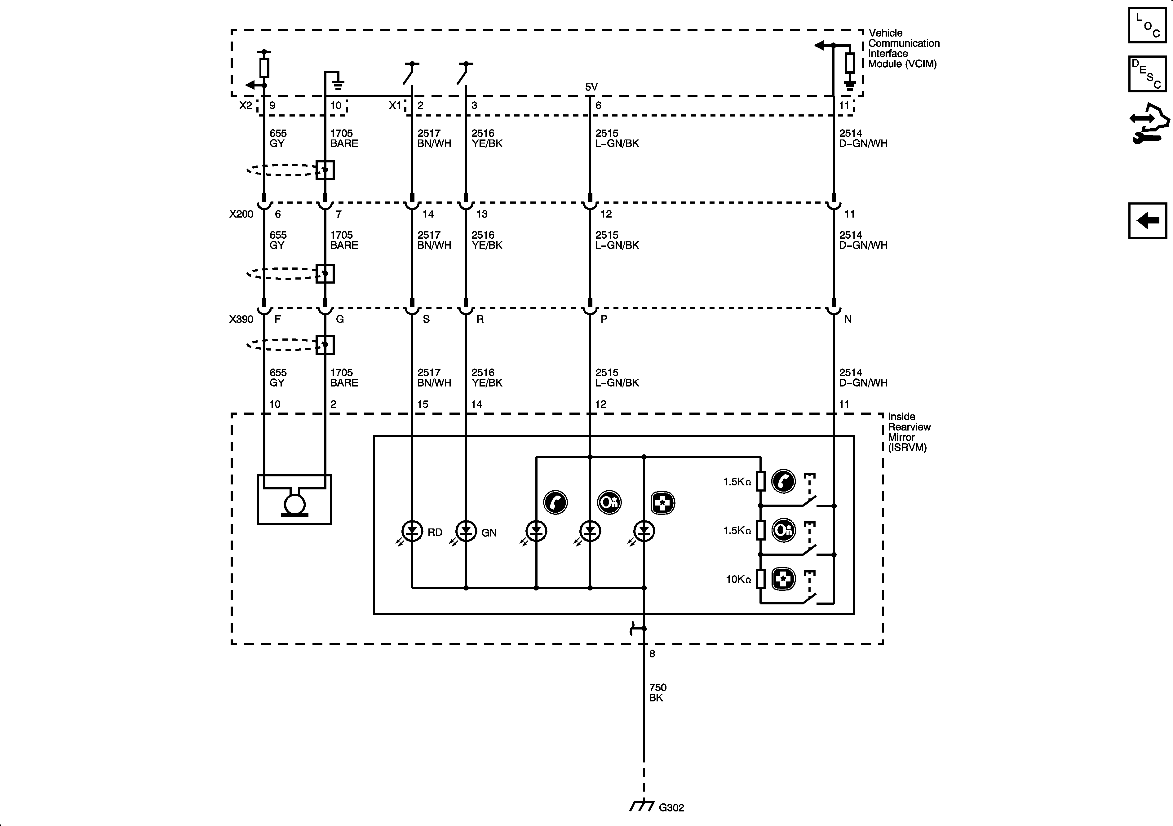
VCIM to Inside Rearview Mirror
Figure
2:
VCIM to Inside Rearview Mirror
Master Electrical Component List
OnStar Description and Operation
Control Module References
Power, Ground, Serial Data, and Antennas