GM Service Manual Online
For 1990-2009 cars only
Makes
🢒
Buick
🢒
2008
🢒
LaCrosse
🢒
Diagnostic Navigation
🢒
Vehicle Diagnostic Information
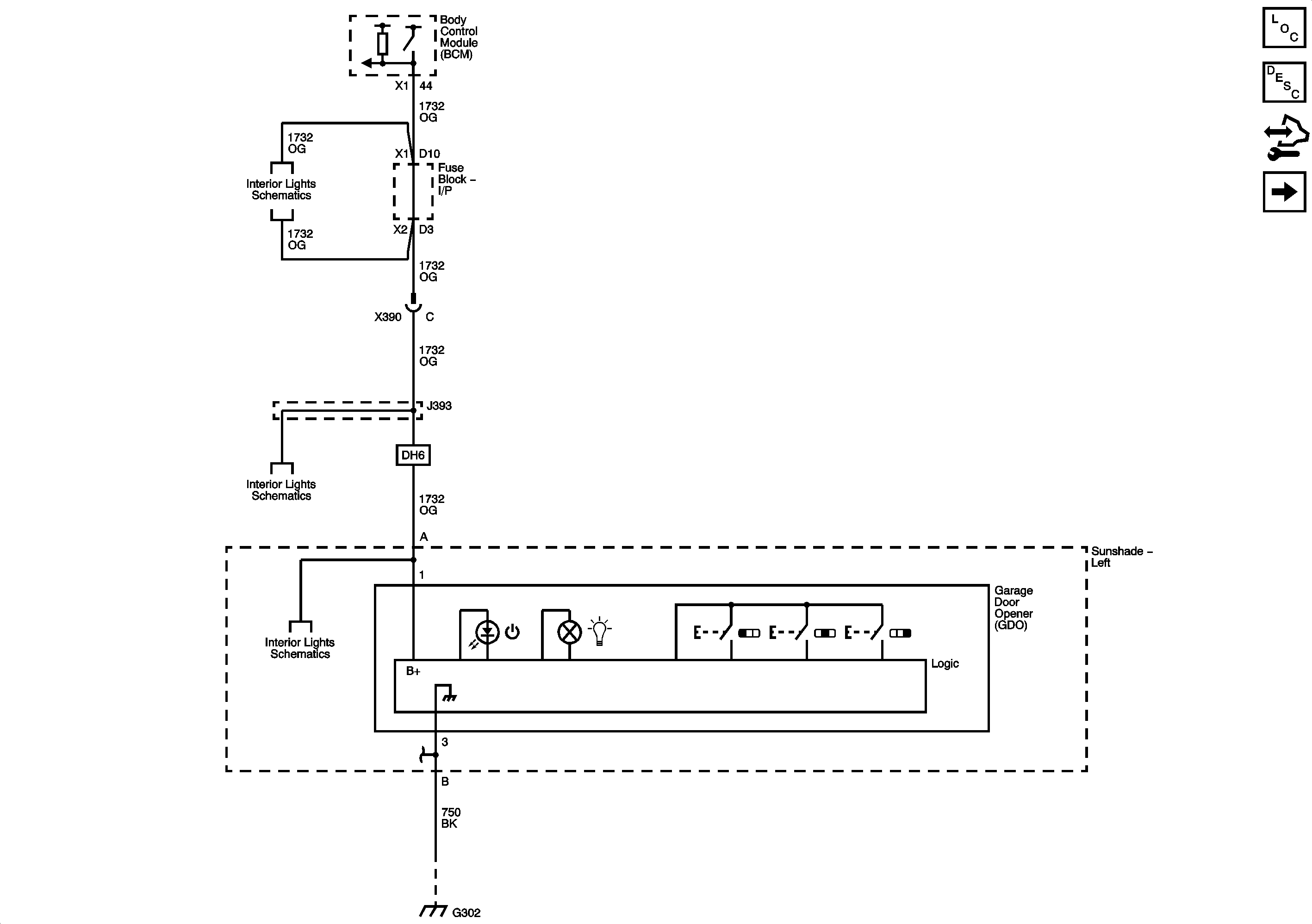
🢒 Remote Function Schematics
Figure
1:
Garage Door Opener
Master Electrical Component List
Garage Door Opener Description and Operation
Control Module References
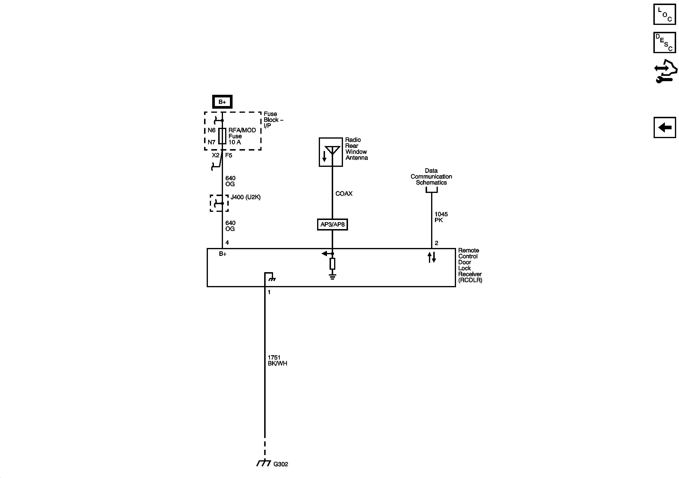
Keyless Door Entry
Figure
2:
Keyless Door Entry
Master Electrical Component List
Keyless Entry System Description and Operation
Control Module References
Garage Door Opener