GM Service Manual Online
For 1990-2009 cars only
Makes
🢒
Buick
🢒
2008
🢒
LaCrosse
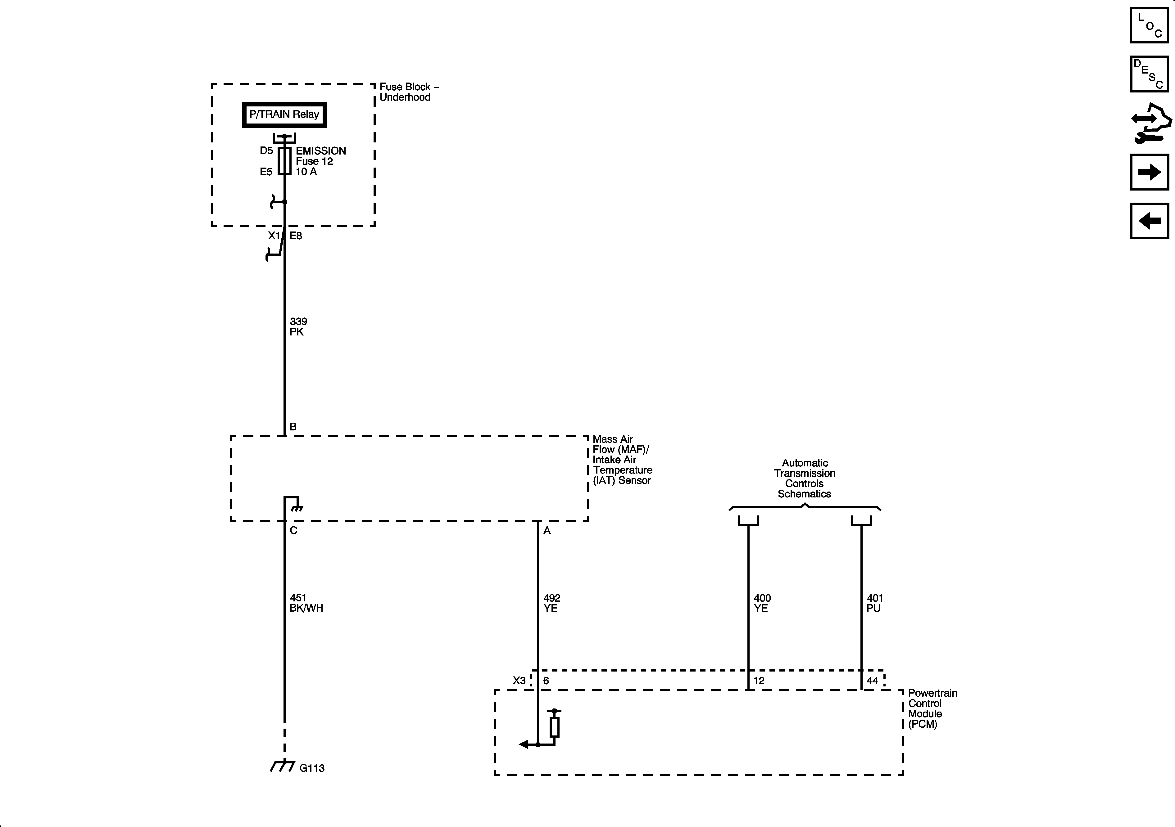
🢒 MAF, VSS
MAF, VSS
MAF, VSS
Master Electrical Component List
Powertrain Control Module Description
Control Module References
Engine Data Sensors - HO2S
Engine Data Sensors - Pressure, and Temperature