GM Service Manual Online
For 1990-2009 cars only
Makes
🢒
Buick
🢒
2009
🢒
LaCrosse
🢒
Driver Information and Entertainment
🢒
Cellular, Entertainment, and Navigation
🢒 OnStar Schematics
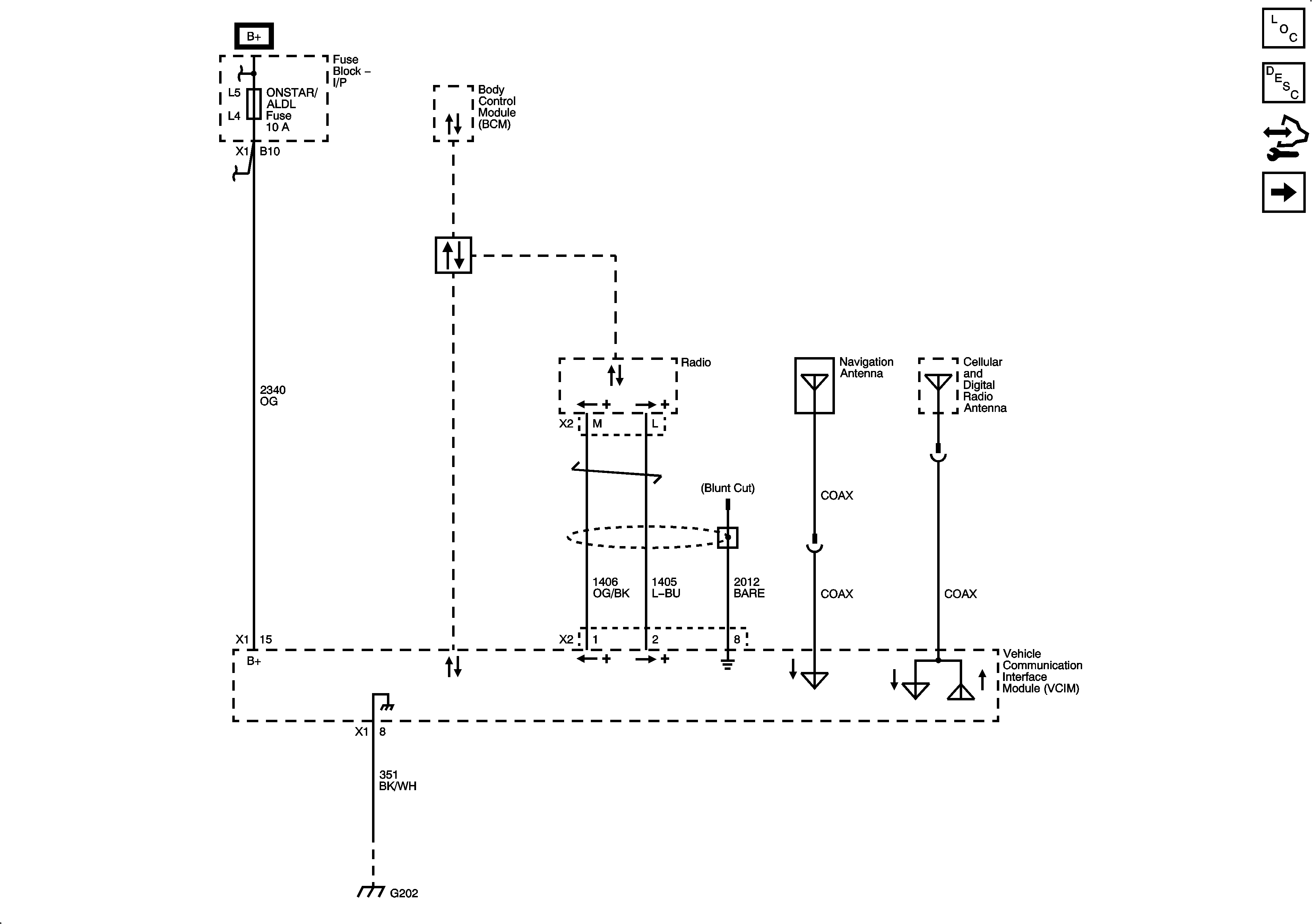
Figure
1:
Power, Ground, Serial Data, and Antennas
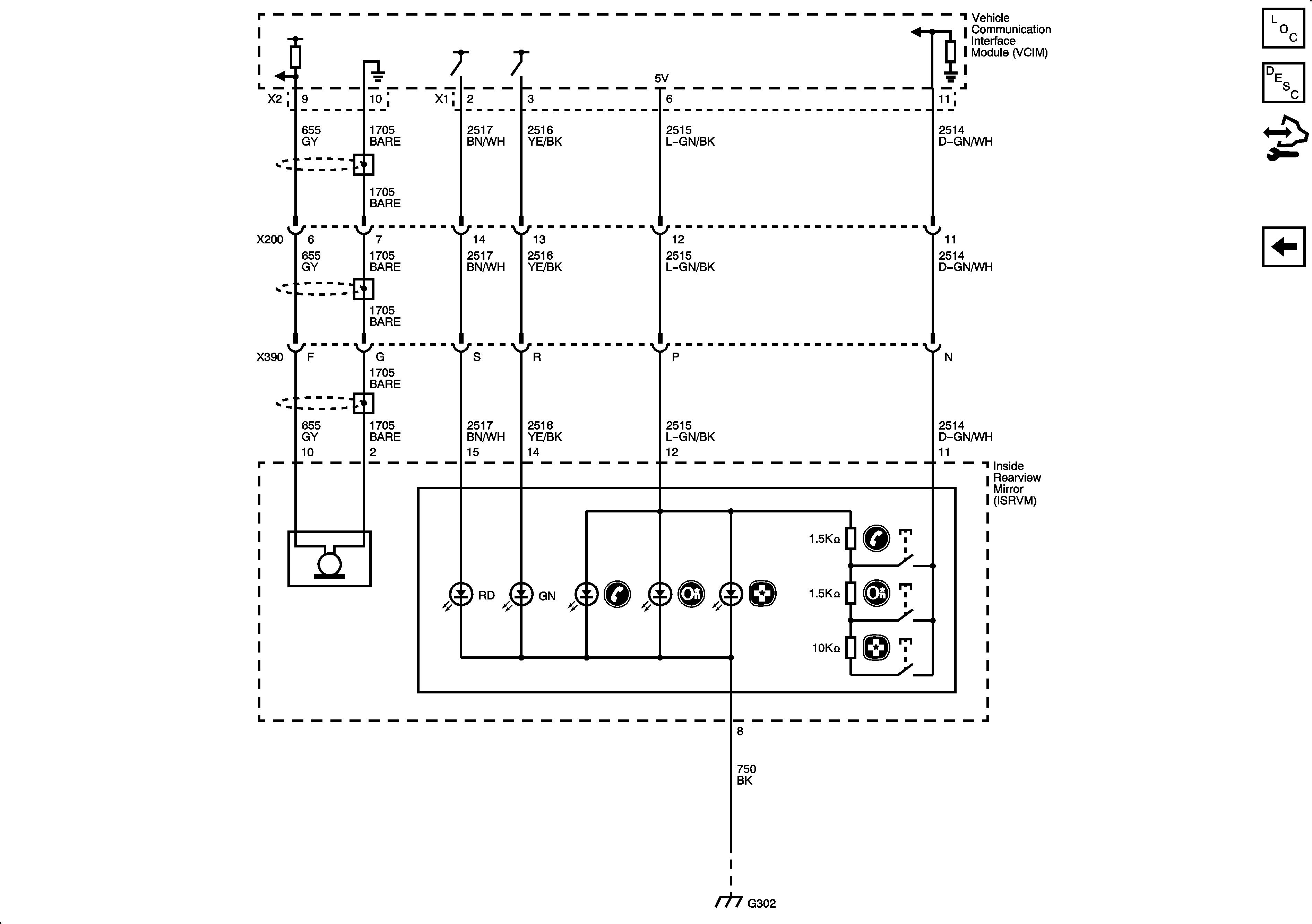
Figure
2:
VCIM to Inside Rearview Mirror