GM Service Manual Online
For 1990-2009 cars only
Makes
🢒
Buick
🢒
2000
🢒
LeSabre
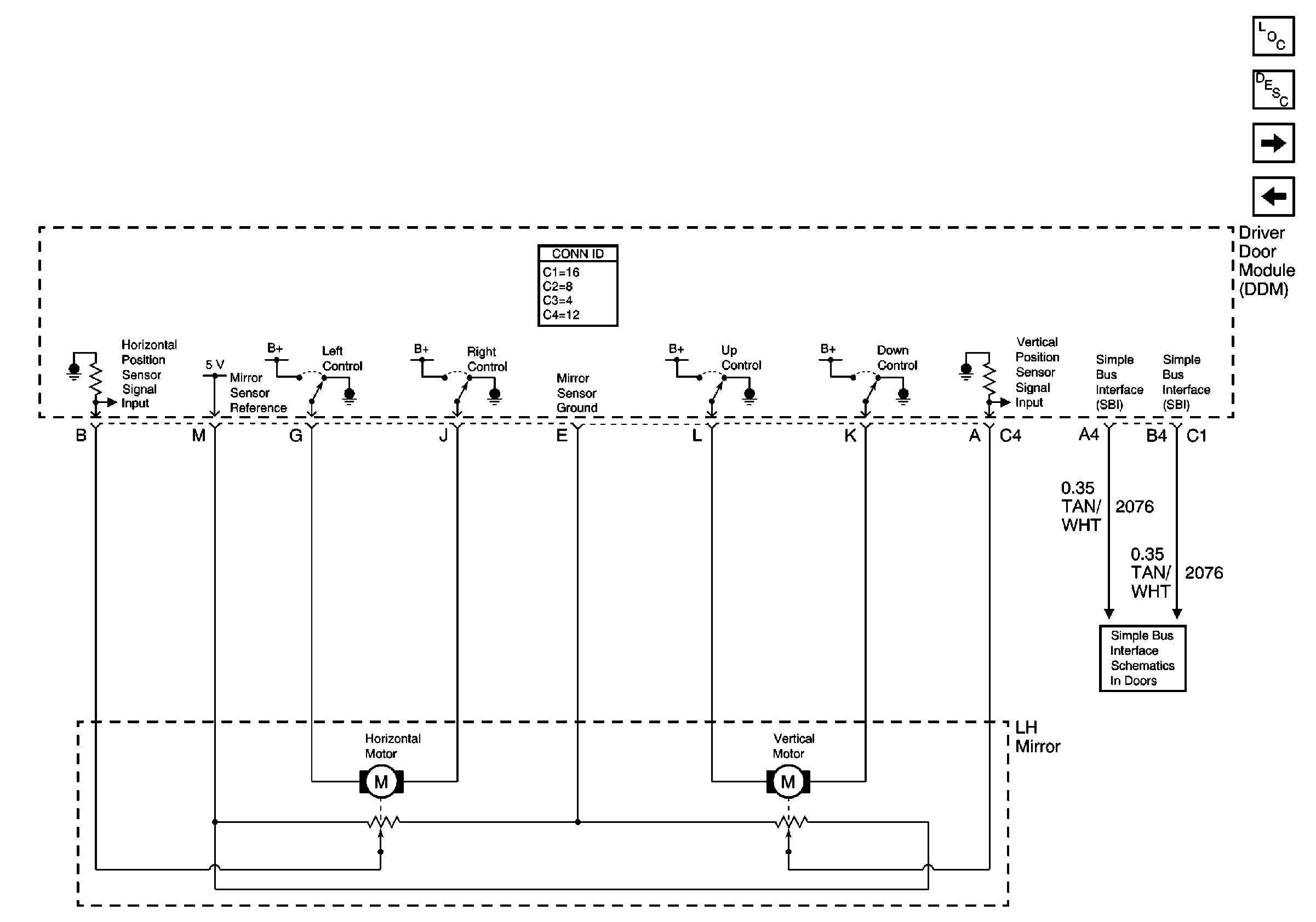
🢒 LH Mirrors W/A45
LH Mirrors W/A45
LH Mirrors W/A45
Power Door Systems Components
RH Mirrors W/A45
RH Mirrors
Simple Bus Interface