GM Service Manual Online
For 1990-2009 cars only
Makes
🢒
Buick
🢒
2001
🢒
LeSabre
🢒 Outside Rear View Mirror w/DR9
Outside Rear View Mirror w/DR9
Outside Rear View Mirror w/DR9
Master Electrical Component List
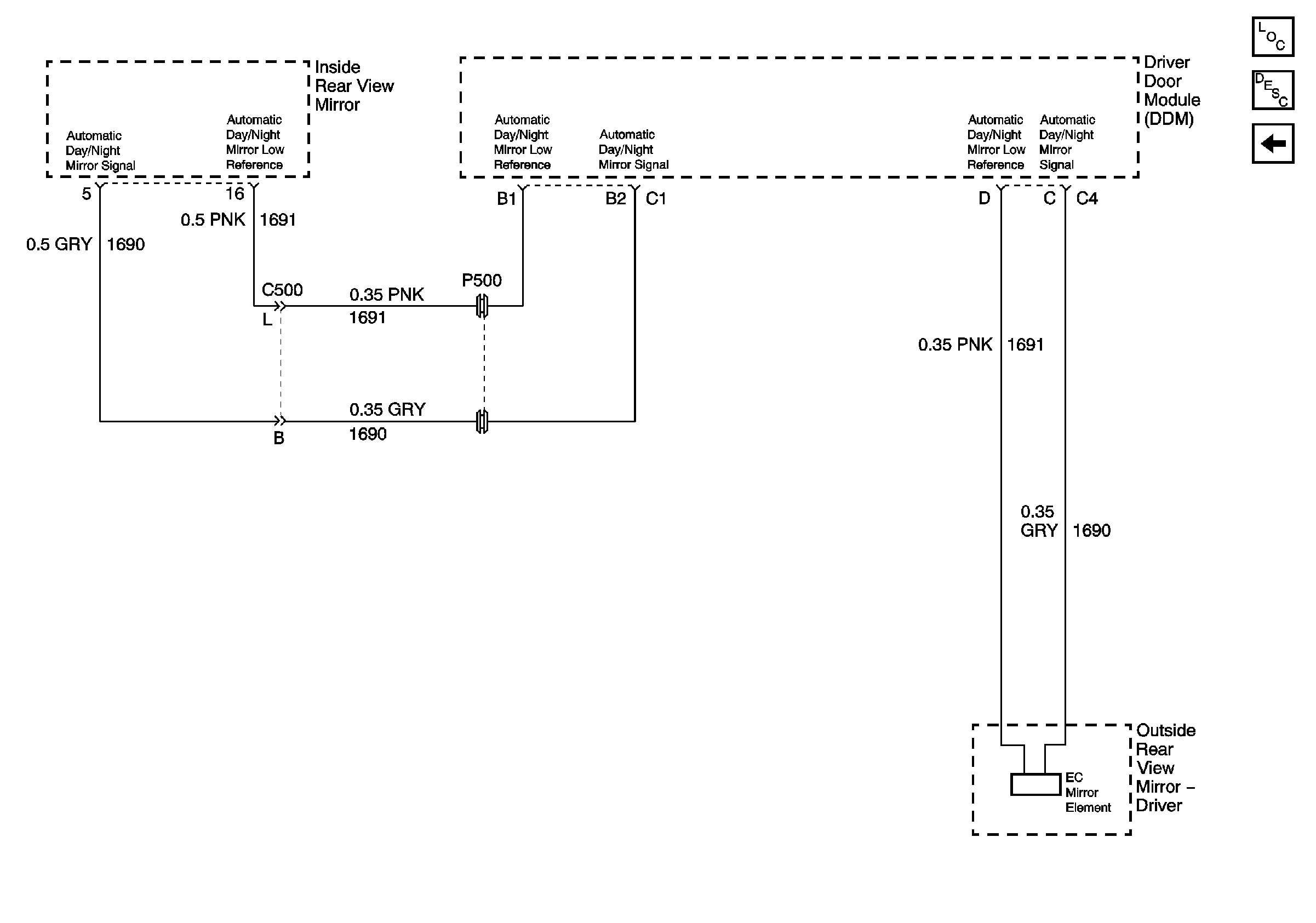
Automatic Day-Night Mirror Description and Operation
Inside Rear View Mirror w/DD7 or w/DD8