GM Service Manual Online
For 1990-2009 cars only
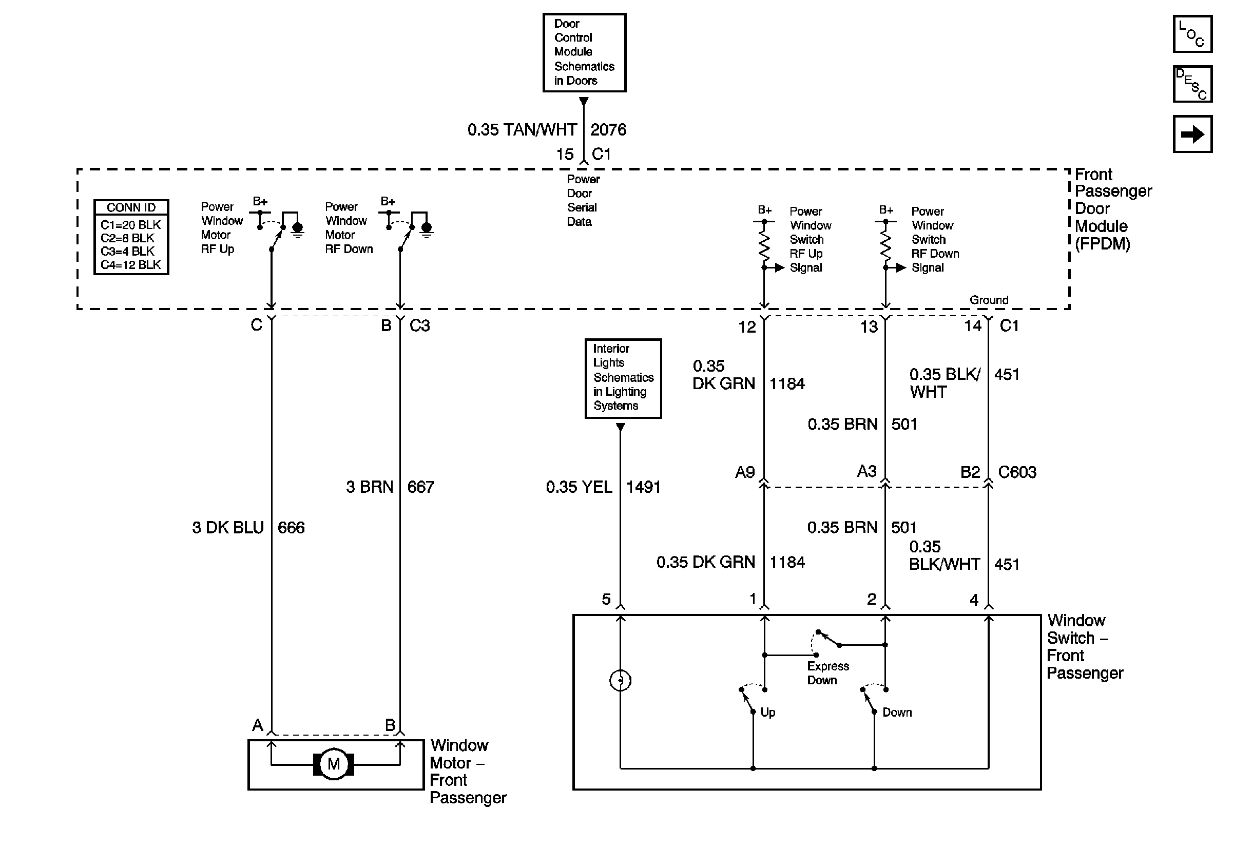
Figure 1:

Front Passenger Door


Object Number: 675926  Size: FS
Master Electrical Component List
Driver Door
Dimming Control
Power Door Serial Data
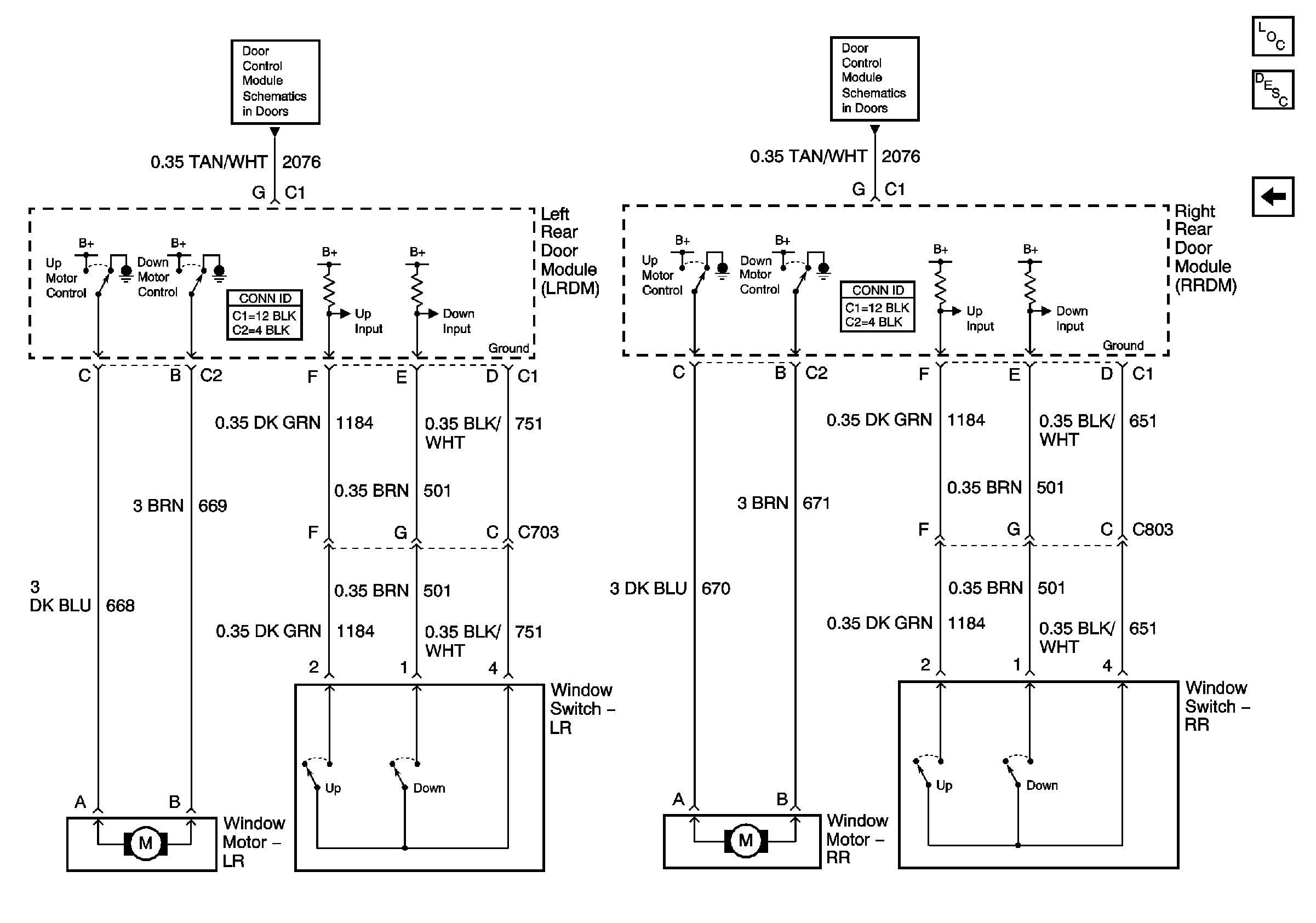
Figure 2:

Driver Door


Object Number: 675931  Size: FS
Master Electrical Component List
Left Rear Door and Right Rear Door
Front Passenger Door
Power Door Serial Data
G200 (2 of 2)
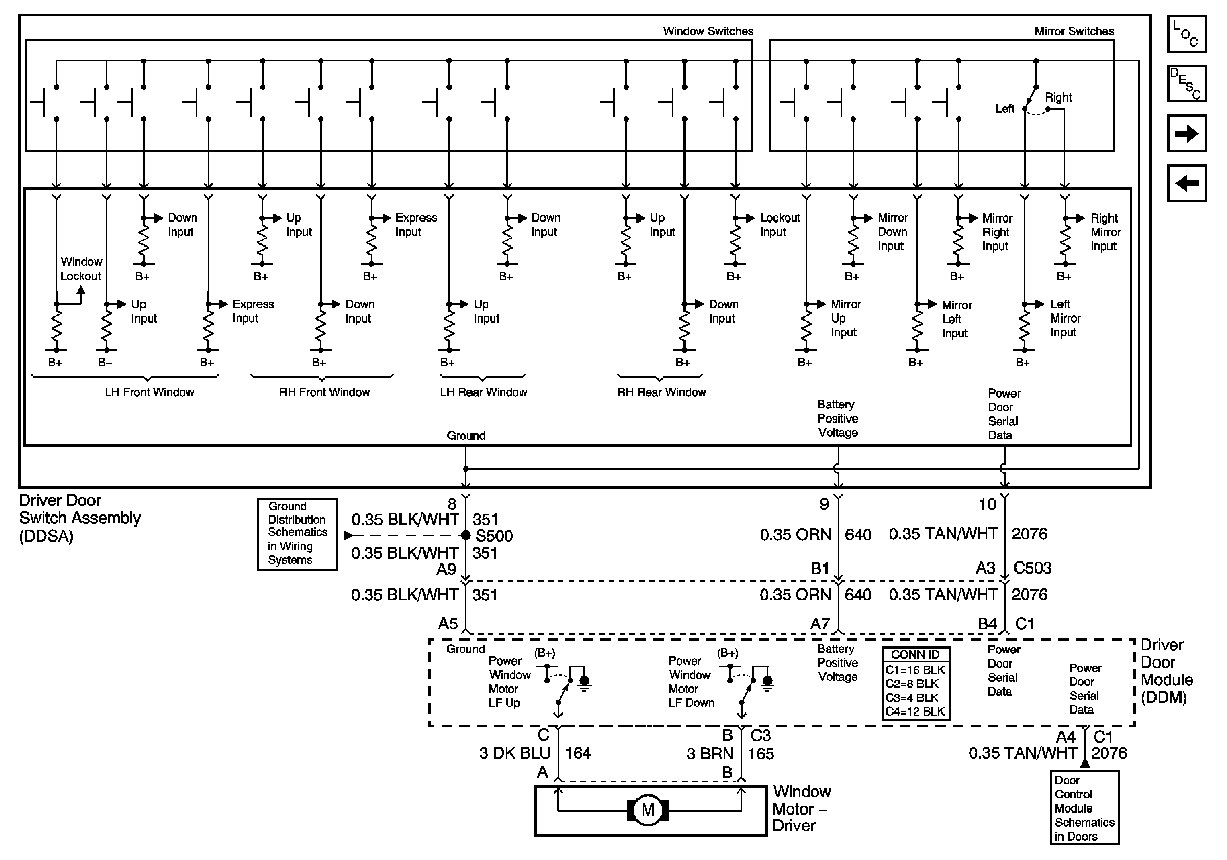
Figure 3:

Left Rear Door and Right Rear Door


Object Number: 675935  Size: FS
Master Electrical Component List
Driver Door
Dimming Control
Dimming Control