GM Service Manual Online
For 1990-2009 cars only
Makes
🢒
Buick
🢒
2004
🢒
LeSabre
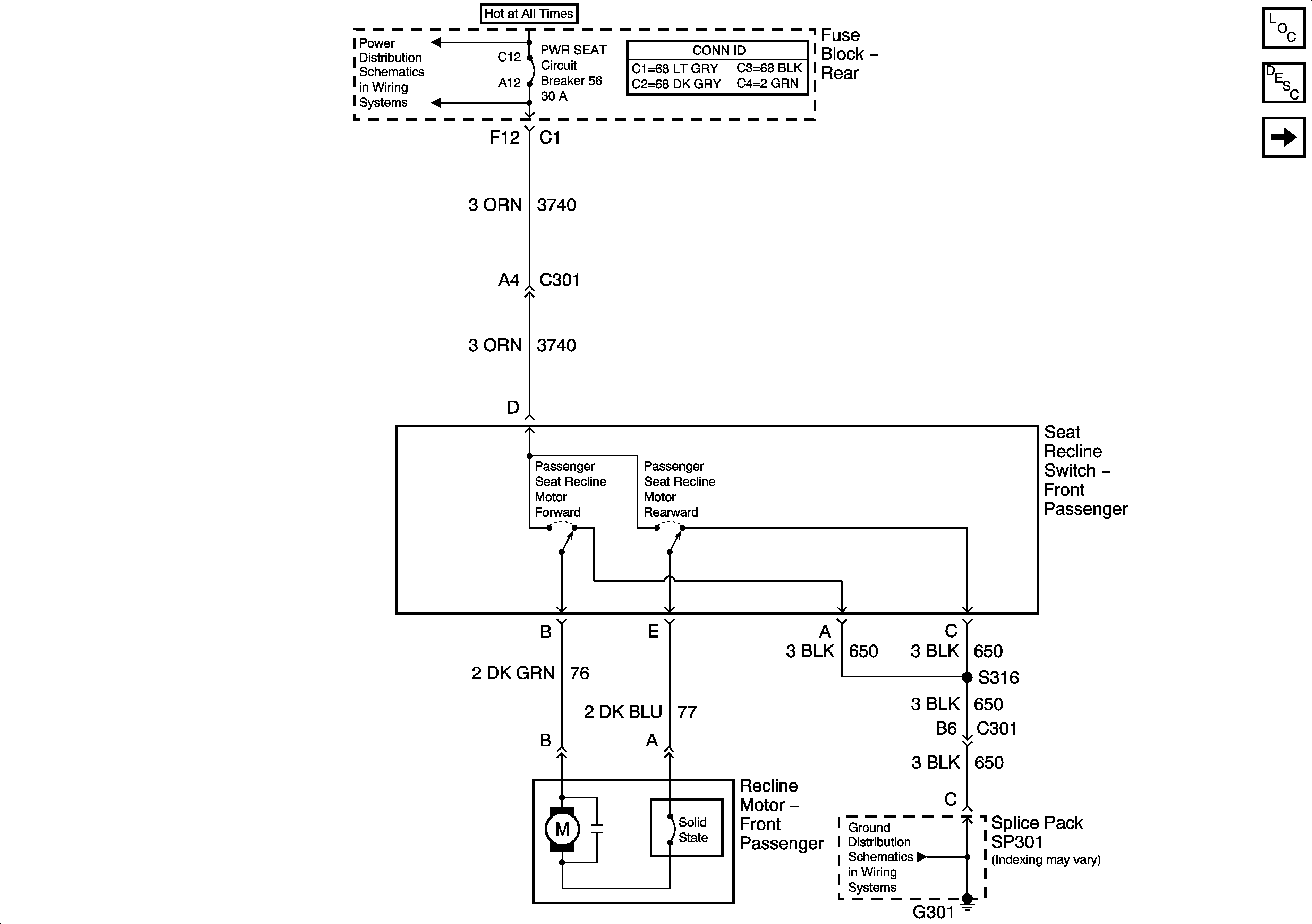
🢒 Front Passenger Power Recline Switch and Motor
Front Passenger Power Recline Switch and Motor
Front Passenger Power Recline Switch and Motor
Master Electrical Component List
Front Passenger Seat Switch and Motors (w/AG2)
Driver Power Recline Switch and Motor
G201
PWR WDO and PWR SEAT Circuit Breakers (Fuse Block Rear)