GM Service Manual Online
For 1990-2009 cars only
Makes
🢒
Buick
🢒
2006
🢒
Lucerne
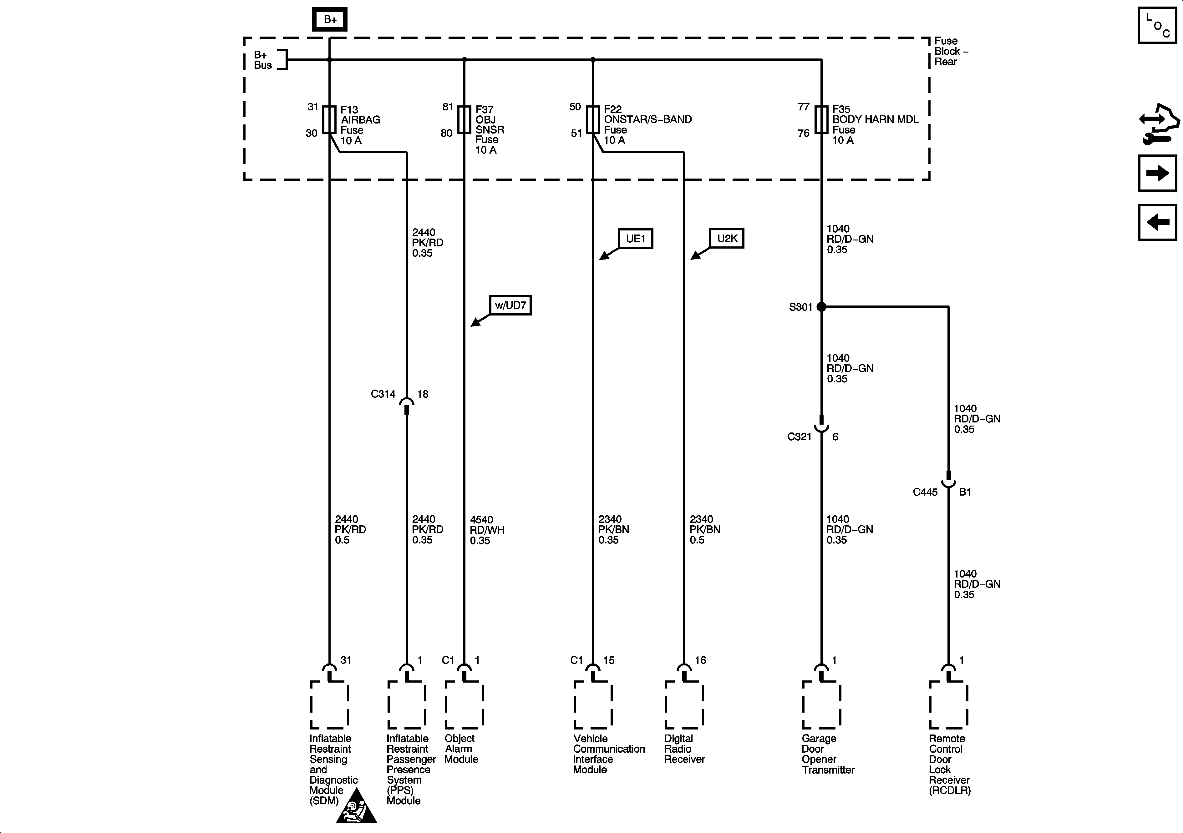
🢒 AIR BAG, OBJ SNSR, ONSTAR/S-BAND, BODY HARN MDL Fuses
AIR BAG, OBJ SNSR, ONSTAR/S-BAND, BODY HARN MDL Fuses
Rear Fuse Block - AIR BAG, OBJ SNSR, ONSTAR/S-BAND, BODY HARN MDL Fuses
Master Electrical Component List
Control Module References
TRUNK RELSE Relay, AUX PWR, AUX PWR, CNSTR VENT, RVC SENSE, ELC MDL, MRTD MDL, TRUNK RELSE Fuses
PRK LAMP, DRL Relays, IP HARN MDL, LT PRK LAMP, RT PRK LAMP, DRL Fuses
Rear Fuse Block B+
Power and Grounding Schematic Icons