GM Service Manual Online
For 1990-2009 cars only
Figure 1:

Cruise Control ON/OFF Switch


Object Number: 1795021  Size: FS
Master Electrical Component List
Cruise Control Description and Operation (3.8L)
Control Module References
Serial Data Wake Up
High Speed Serial Data
Cruise Control Schematic Icons
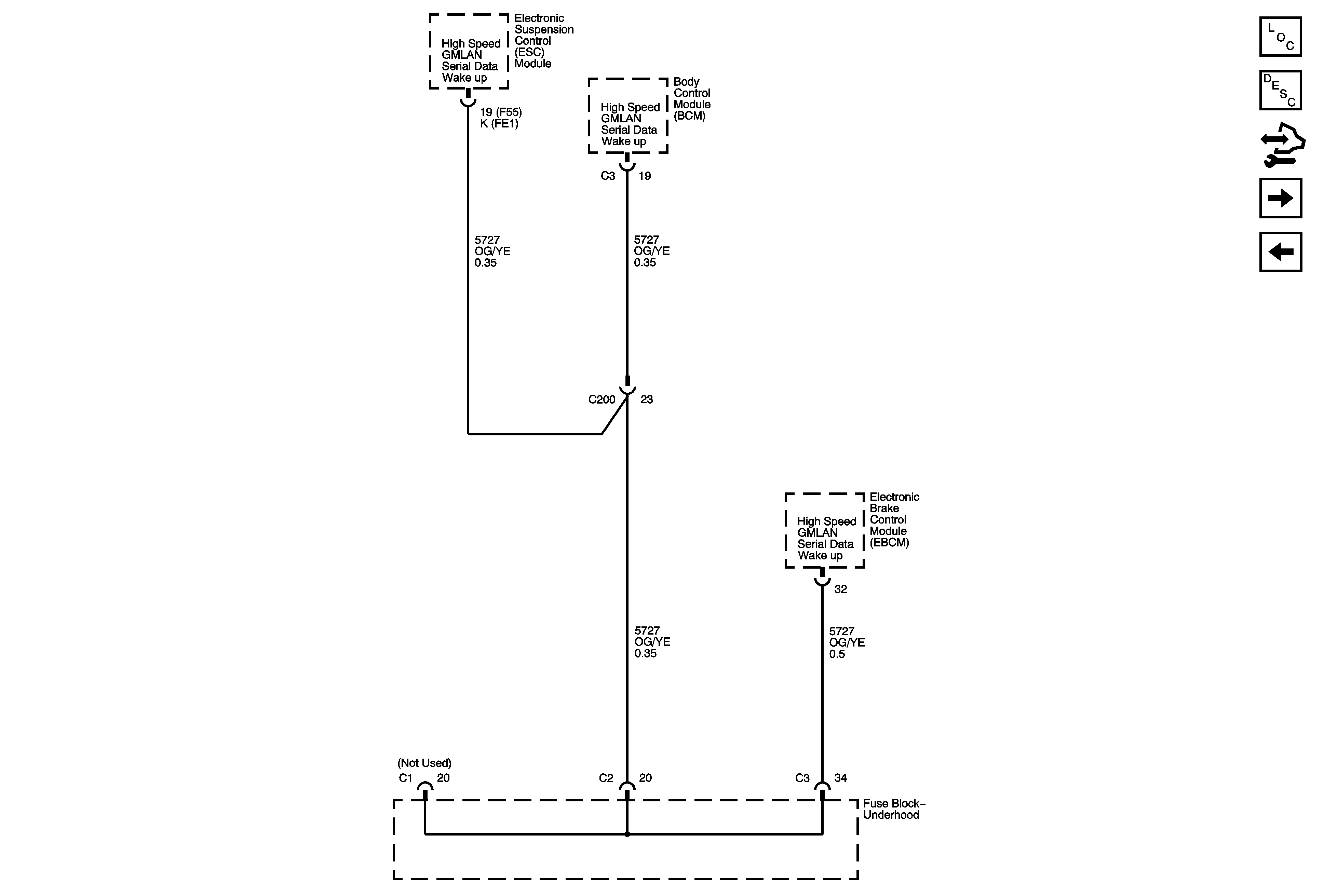
Figure 2:

Serial Data Wake Up


Object Number: 1795037  Size: FS
Master Electrical Component List
Cruise Control Description and Operation (3.8L)
Control Module References
Indicators
ON/OFF Switch
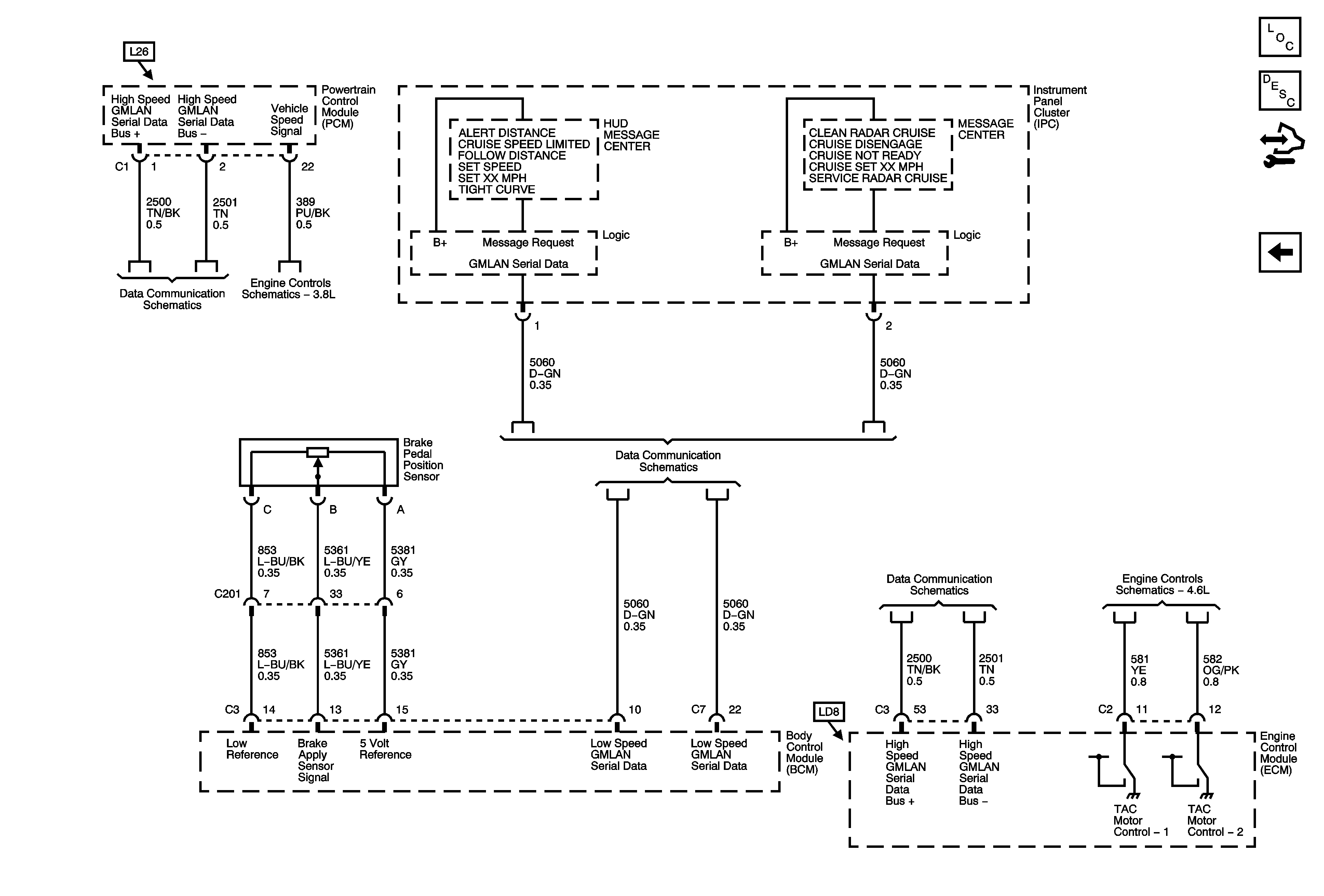
Figure 3:

Indicators


Object Number: 1795044  Size: FS
Master Electrical Component List
Cruise Control Description and Operation (3.8L)
Control Module References
Serial Data Wake Up
High Speed Serial Data
Engine Data Sensors - APP and TAC
Power, Ground, and Low Speed GMLAN
High Speed Serial Data
Engine Data Sensors - APP and Throttle Body Assembly