GM Service Manual Online
For 1990-2009 cars only
Makes
🢒
Buick
🢒
2007
🢒
Lucerne
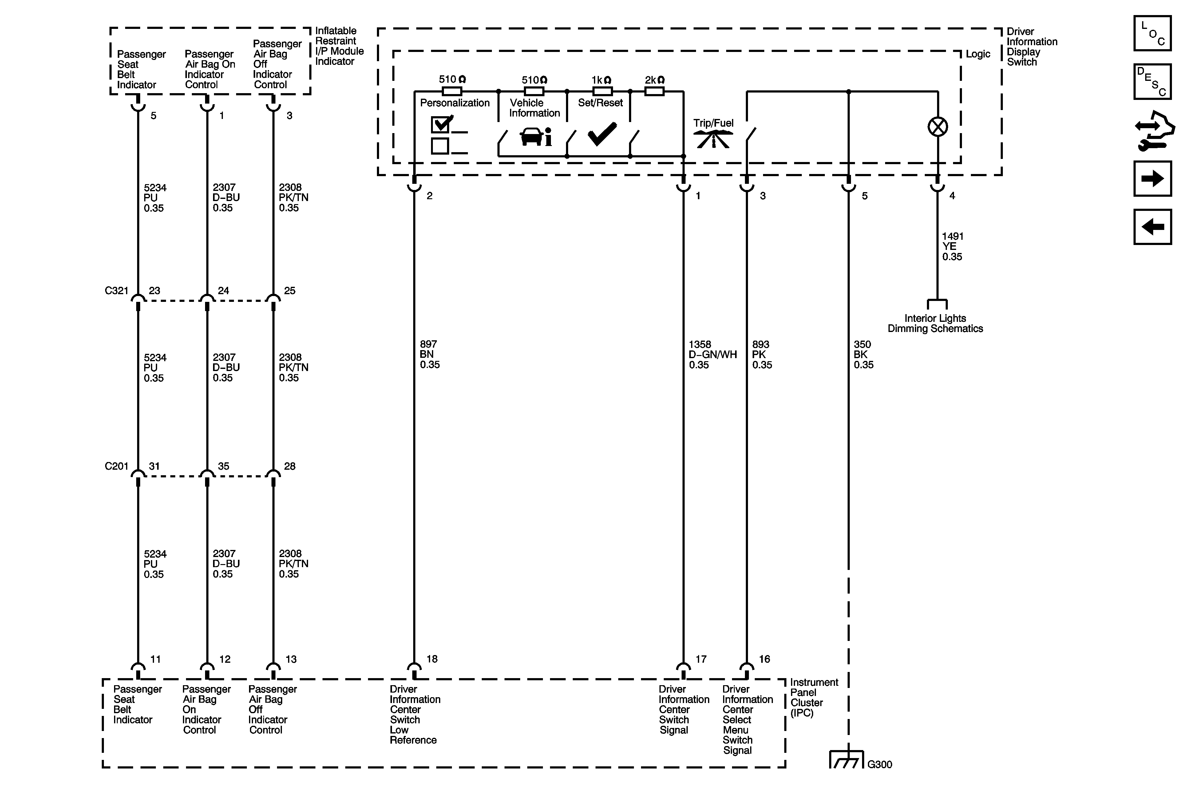
🢒 Inflatable Restraint Indicator and Driver Information Display
Inflatable Restraint Indicator and Driver Information Display
Inflatable Restraint Indicator and Driver Information Display
Master Electrical Component List
Driver Information Center (DIC) Description and Operation
Control Module References
Oil, Fuel Level
Indicators
Hazard, Headlamp, Driver Information Display Switches, Ashtray, HVAC Control Module, Radio
G300