GM Service Manual Online
For 1990-2009 cars only
Makes
🢒
Buick
🢒
2008
🢒
Lucerne
🢒
Diagnostic Navigation
🢒
Vehicle Diagnostic Information
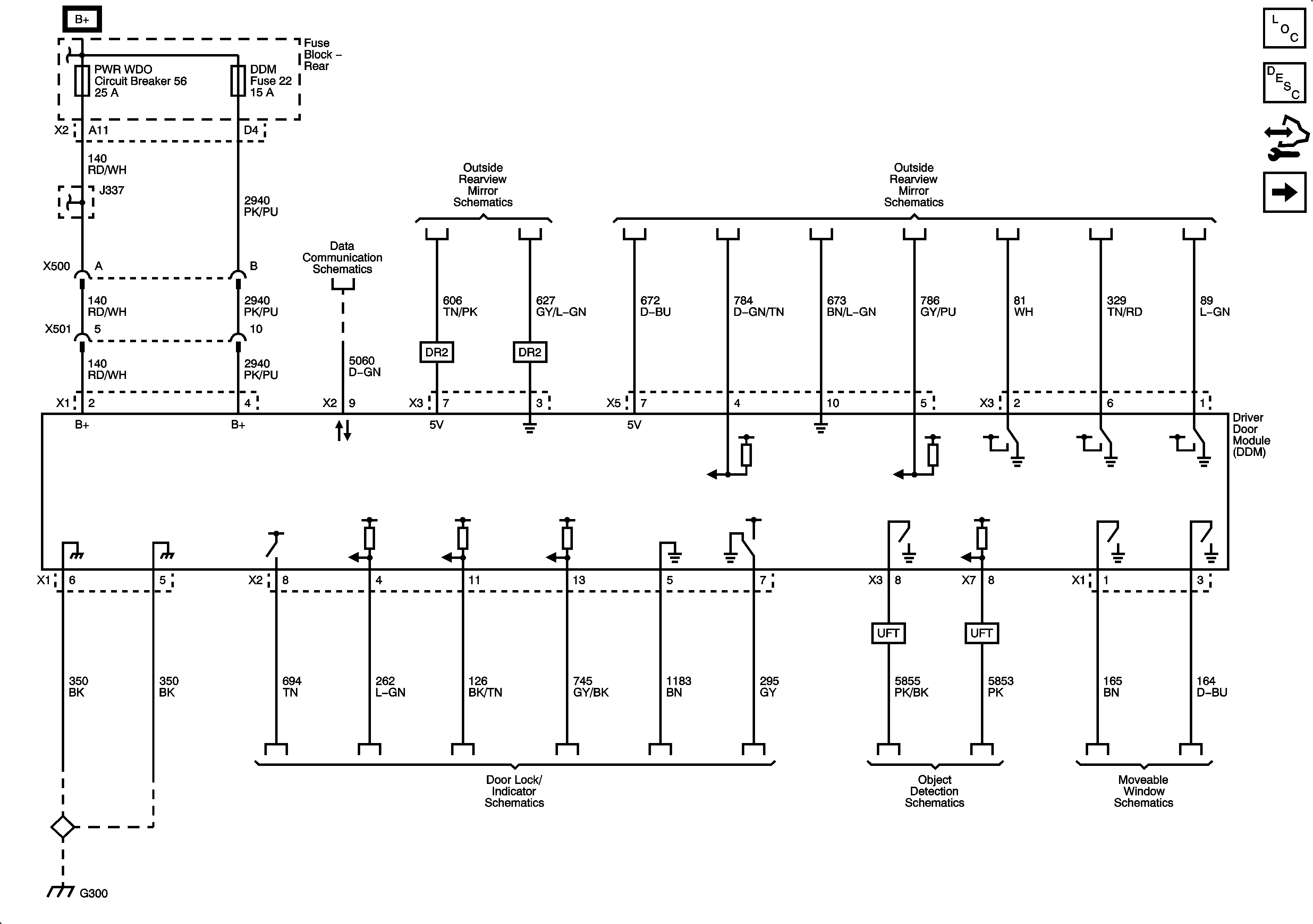
🢒 Door Control Module Schematics
Figure
1:
Driver Door Module (DDM)
Master Electrical Component List
Power Door Locks Description and Operation
Control Module References
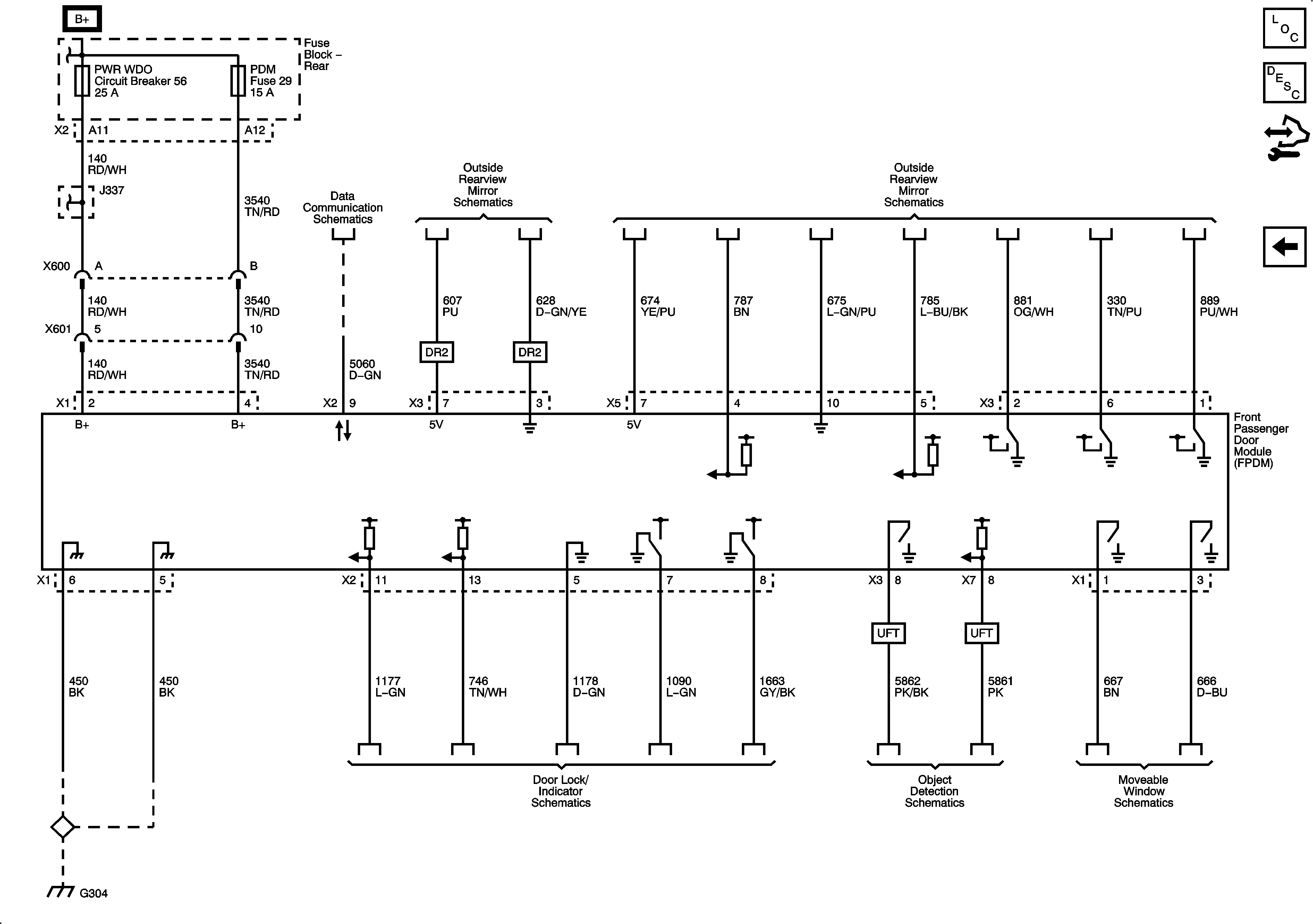
Front Passenger Door Module (FPDM)
Figure
2:
Front Passenger Door Module (FPDM)
Master Electrical Component List
Power Door Locks Description and Operation
Control Module References
Driver Door Module (DDM)