GM Service Manual Online
For 1990-2009 cars only
Makes
🢒
Buick
🢒
2009
🢒
Lucerne
🢒
Engine
🢒
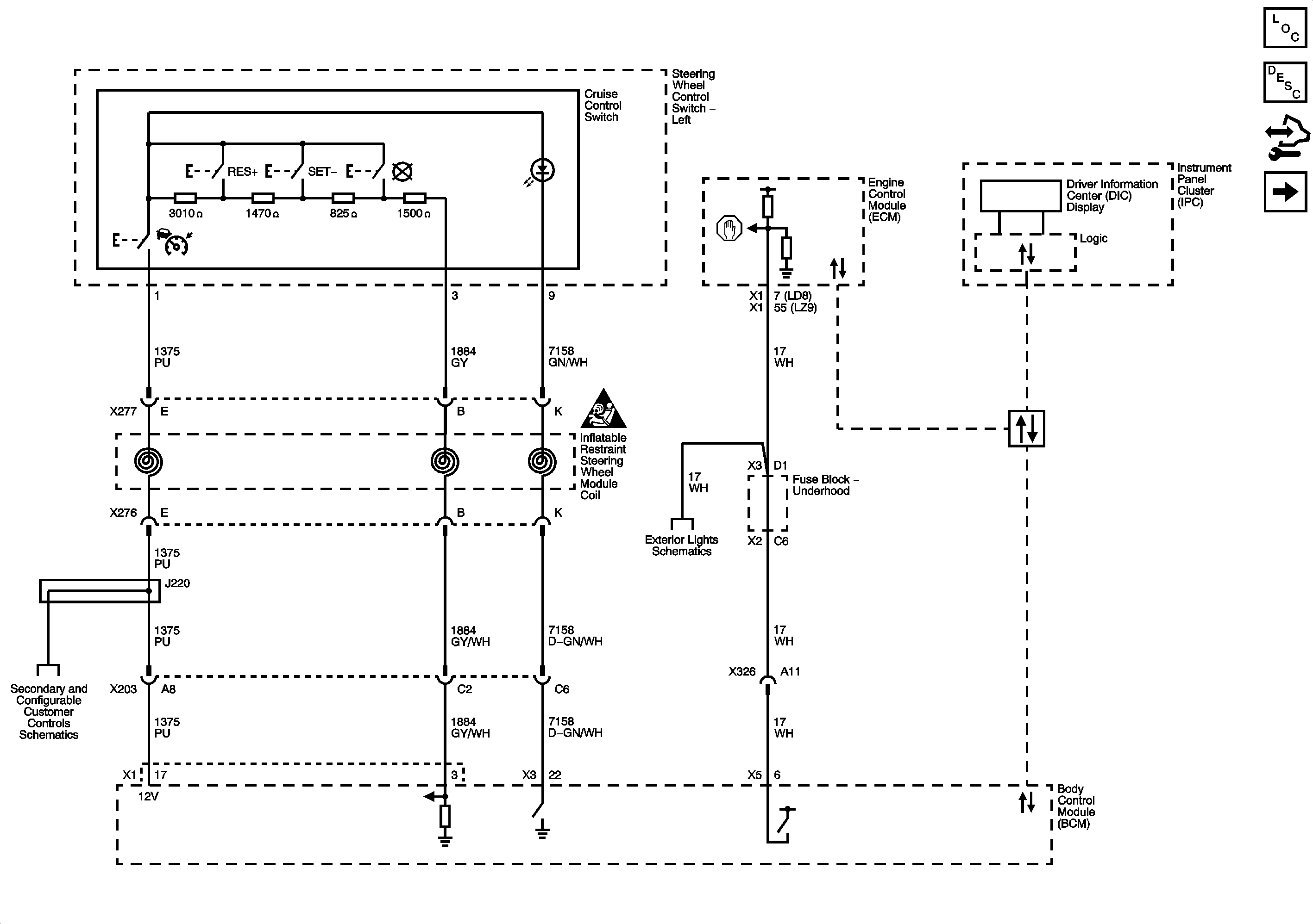
Cruise Control
🢒 Cruise Control Schematics
Figure
1:
ON/OFF Switch
Figure
2:
Indicators