GM Service Manual Online
For 1990-2009 cars only
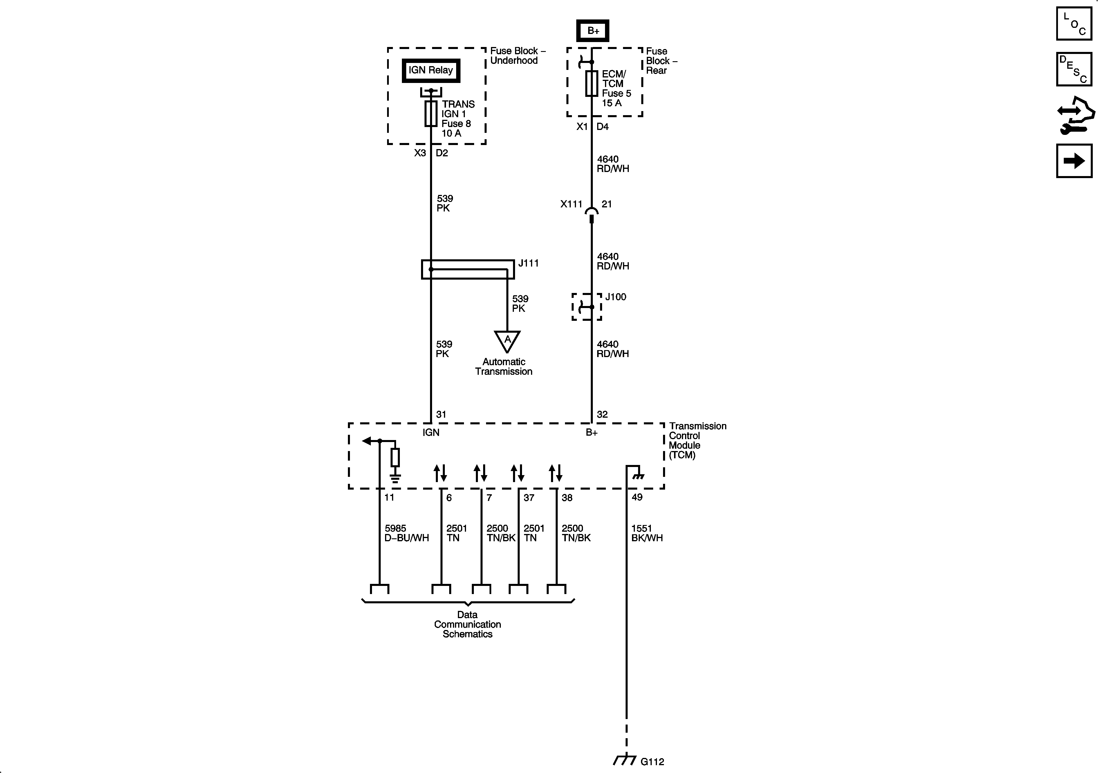
Figure 1:

DLC, Ground and Power


Object Number: 2081247  Size: FS
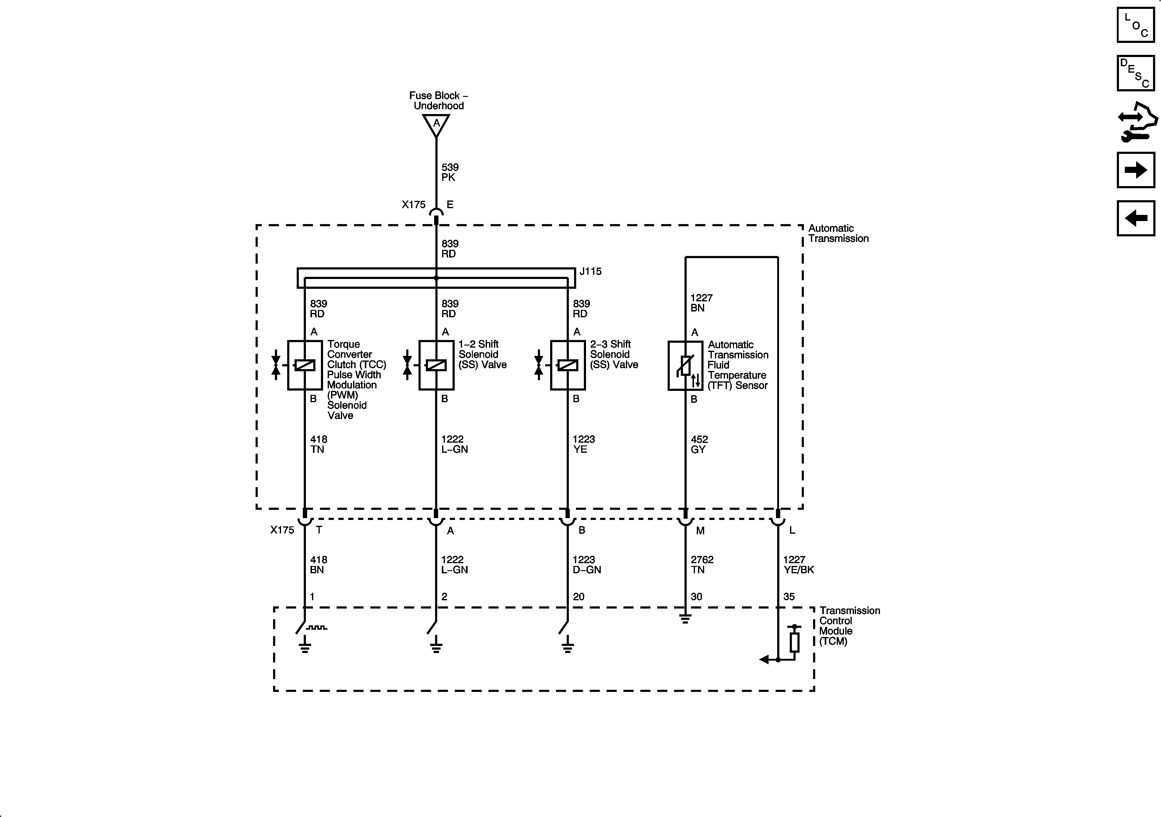
Figure 2:

Shift Solenoids, TCC and TFT


Object Number: 2081248  Size: FS
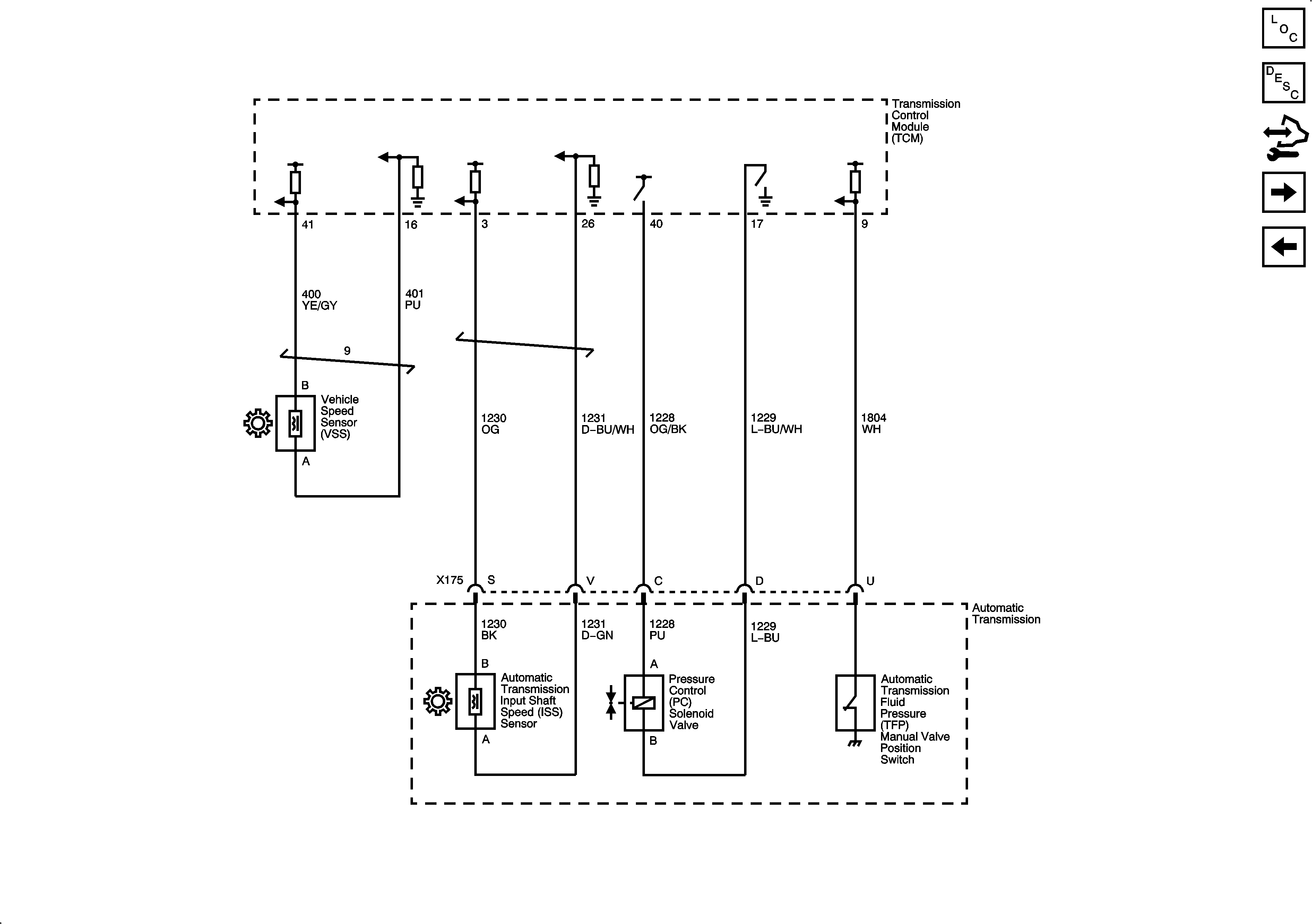
Figure 3:

ISS, Pressure Control and VSS


Object Number: 2081249  Size: FS
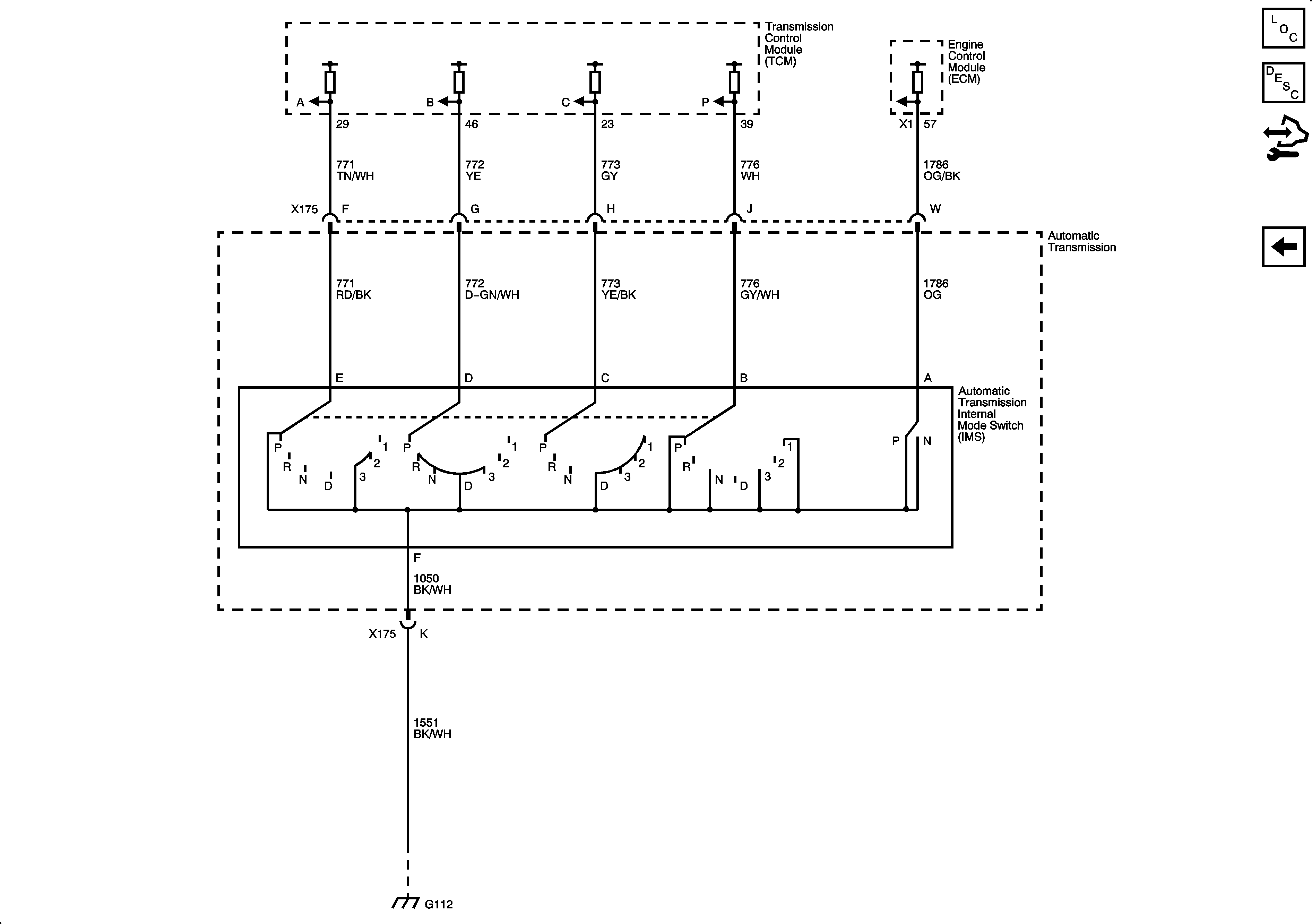
Figure 4:

Internal Mode Switch (IMS)


Object Number: 2083015  Size: FS