GM Service Manual Online
For 1990-2009 cars only

TRAC OFF Indicator Always On w/NW9


Object Number: 538024  Size: LF
ABS Components
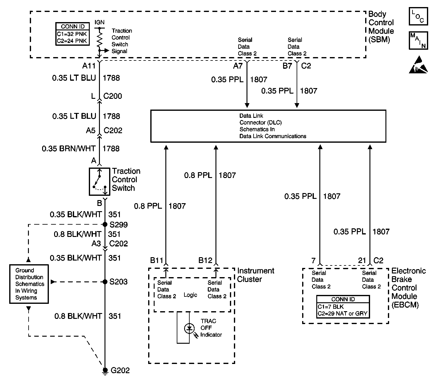
Traction Control (w/NW9) and Variable Effort Steering (w/NV8)
Handling ESD Sensitive Parts Notice
Class 2 Serial Data Line
G202, 1 of 4

Circuit Description

The TRAC OFF indicator is controlled by the instrument cluster via class 2 serial data messages from the EBCM. When the body control module (SBM) sees the traction control switch input grounded through the momentary traction control switch, it sends a class 2 message to the EBCM that tells the EBCM that the traction control switch has been pressed. The EBCM then disables traction control and sends a message to the instrument cluster to turn the TRAC OFF indicator ON. Each time the ignition is cycled from OFF to ON, the traction control system is enabled.

The following conditions will cause the TRAC OFF indicator to illuminate:

    • The EBCM has disabled the TCS due to a DTC.
    • The driver manually disabling the TCS via the traction control switch.
    • The instrument cluster bulb check. When the ignition switch is turned to ON, the TRAC OFF indicator will turn on for approximately 3 seconds and then turn OFF.

Step

Action

Value(s)

Yes

No

1

Did you perform the ABS Diagnostic System Check?

--

Go to Step 2

Go to Diagnostic System Check - ABS

2

  1. Install a scan tool.
  2. Turn ON the ignition, with the engine OFF.
  3. With a scan tool, observe the Traction Switch parameter in the Body Control Module data list.

Does the scan tool display Off?

--

Go to Step 3

Go to Step 4

3

  1. Activate the traction control switch.
  2. With the scan tool, observe the Traction Switch parameter.

Does the Traction Switch parameter change state?

--

Go to Testing for Intermittent Conditions and Poor Connections in Wiring Systems

Go to Step 4

4

  1. Turn OFF the ignition.
  2. Disconnect the traction control switch connector.
  3. Turn ON the ignition, with the engine OFF.
  4. With a scan tool, observe the Traction Switch parameter.

Does the scan tool display Off?

--

Go to Step 7

Go to Step 5

5

Test the signal circuit of the traction control switch for a short to ground. Refer to Circuit Testing and Wiring Repairs in Wiring Systems.

Did you find and correct the condition?

--

Go to Step 10

Go to Step 6

6

Inspect for poor connections at the harness connector of the body control module (SBM). Refer to Testing for Intermittent Conditions and Poor Connections and Connector Repairs in Wiring Systems.

Did you find and correct the condition?

--

Go to Step 10

Go to Step 8

7

Inspect for poor connections at the harness connector of the traction control switch. Refer to Testing for Intermittent Conditions and Poor Connections and Connector Repairs in Wiring Systems.

Did you find and correct the condition?

--

Go to Step 10

Go to Step 9

8

Replace the body control module (SBM). Refer to Body Control Module Replacement in Body Control System.

Did you complete the replacement?

--

Go to Step 10

--

9

Replace the traction control switch. Refer to Shift Lever Replacement - On Vehicle in Steering Wheel and Column - Tilt.

Did you complete the replacement?

--

Go to Step 10

--

10

Operate the system in order to verify the repair.

Did you correct the condition?

--

System OK

Go to Step 2