GM Service Manual Online
For 1990-2009 cars only
Makes
🢒
Buick
🢒
2002
🢒
Park Avenue
🢒 Head Up Display
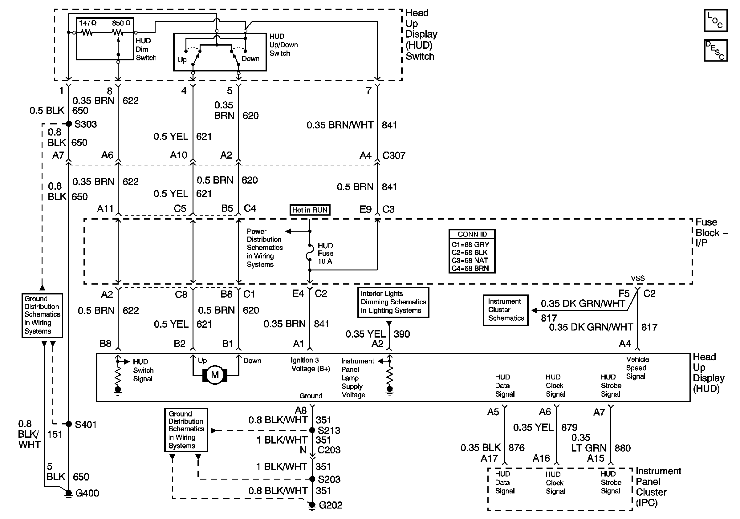
Head Up Display
Master Electrical Component List
Head Up Display (HUD) Description and Operation
G400 (2 of 2)
Left Underhood Fuse Block- IGN Fuse/ IP Fuse Block- RUN Fuse, IGN 3and ACCY Relay
G202 (1 of 4)
VF Dimming and Control
Gages