GM Service Manual Online
For 1990-2009 cars only
Makes
🢒
Buick
🢒
1998
🢒
Regal
🢒
Body and Accessories
🢒
Roof
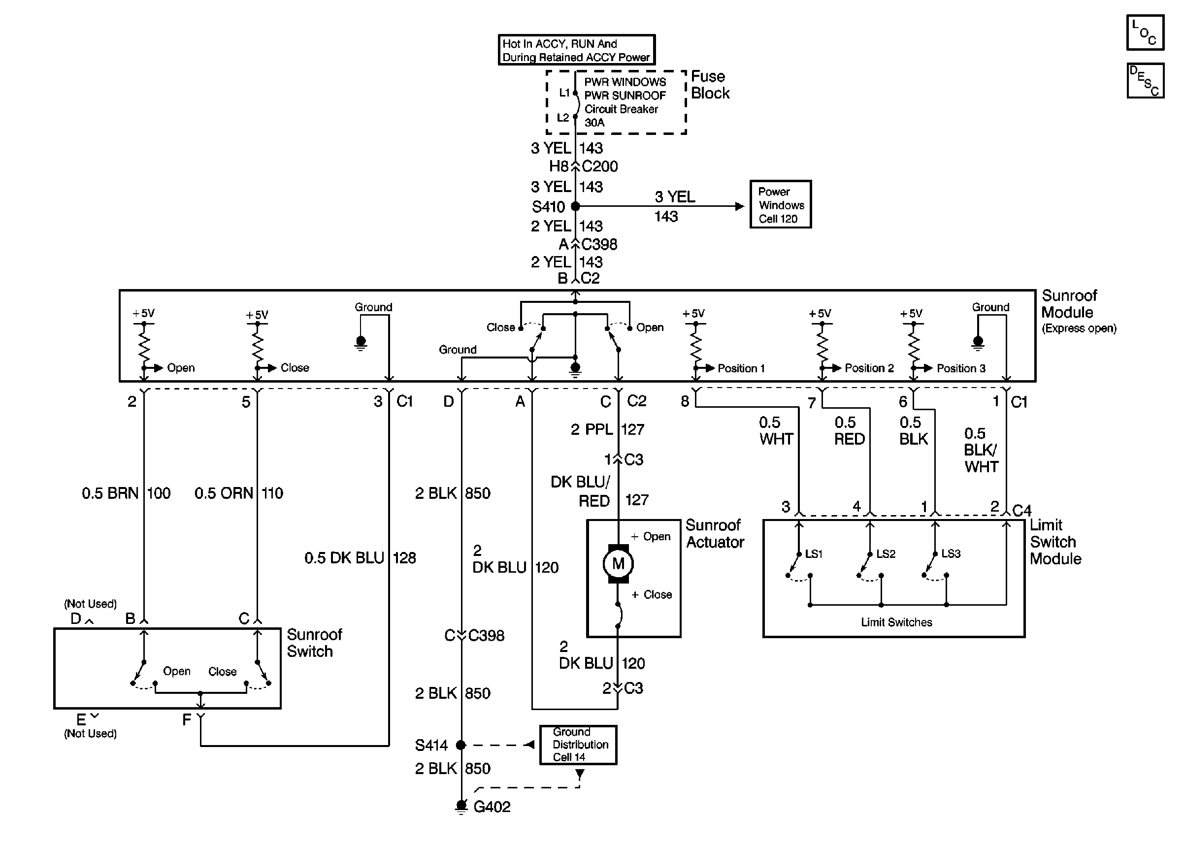
🢒 Sunroof Schematics
Cell 122
Power Roof Systems Components
Power Sunroof Description
Power Windows Schematic (Cell 120: Window Switches/Regulator Motors)
Cell 14: G402 (1 of 2)
Cell 11: PWR WINDOWS-PWR SUNROOF, REAR DEFOG and POWER SEATS Circuit Breakers