GM Service Manual Online
For 1990-2009 cars only

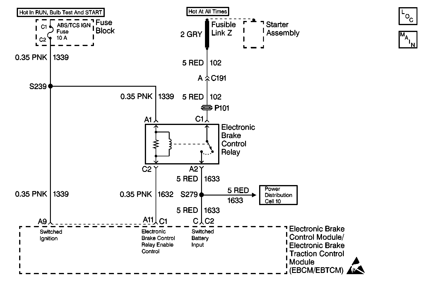
Object Number: 247737  Size: MF
ABS Components
Antilock Brake System Schematics
Handling ESD Sensitive Parts Notice
Power Distribution Schematics

Circuit Description

DTC C1236 monitors the voltage level available to the EBCM/EBTCM controller. If the voltage drops below 11.4 volts, full performance of the ABS system is not guaranteed. During ABS operation, there are several current requirements that will cause battery voltage at the EBCM/EBTCM to drop. As a result, voltage is monitored prior to an ABS event to indicate good charging system condition. Voltage is also monitored during an ABS event when voltage may drop significantly.

Conditions for Setting the DTC

DTC C1236 can set only if the vehicle's speed is greater than 5 km/h (3 mph).

A malfunction exists if the switched battery voltage is less than 11.4 volts during a non-ABS event or less than 8.4 volts during an ABS event.

Action Taken When the DTC Sets

    • A malfunction DTC stores.
    • The ABS/ETS/TCS disables.
    • The amber ABS/ETS/TCS warning indicator(s) turn on.
    • The red BRAKE warning indicator turns on if the rear piston in the ABS brake motor pack is not in the home position.

Conditions for Clearing the DTC

    • The condition responsible for setting the DTC no longer exists and the Scan Tool Clear DTCs function is used.
    • 100 drive cycles pass with no DTC(s) detected.

Diagnostic Aids

The following conditions may cause an intermittent malfunction:

    • A poor connection
    • Rubbed-through wire insulation
    • A broken wire inside the insulation

Use the enhanced diagnostic function of the Scan Tool in order to measure the frequency of the malfunction. Refer to the Scan Tool manual for the procedure.

Thoroughly inspect any circuitry that may be causing the intermittent complaint for the following conditions:

    • Backed out terminals
    • Improper mating
    • Broken locks
    • Improperly formed or damaged terminals
    • Poor terminal-to-wiring connections
    • Physical damage to the wiring harness

While performing a Voltage Load test, CKT 1339 should be measured for high resistance or an open condition if it is noted that only the ignition voltage drops below acceptable voltage levels.

Important: Zero the J 39200 test leads before making any resistance measurements. Refer to the J 39200 user's manual.

Step

Action

Value(s)

Yes

No

1

Was the Diagnostic System Check performed?

Go to Step 2

Go to Diagnostic System Check

2

  1. Turn the ignition switch to the RUN position.
  2. Do not start the engine.

  3. Select Snapshot on the Scan Tool .
  4. Select Single DTC on the Scan Tool .
  5. Enter C1236 on the Scan Tool .
  6. Drive the vehicle at a speed above 5 km/h (3 mph).

Does DTC C1236 set as a current DTC?

Go to Step 10

Go to Step 3

3

  1. Verify that the engine is running.
  2. Turn the ignition switch to the RUN position.
  3. Select Special Functions on the Scan Tool .
  4. Use the Scan Tool in order to perform the Voltage Load test.

Are the ignition voltage and the battery voltage equal to or greater than the specified range?

10 V

Go to Step 4

Go to Step 10

4

  1. Turn the ignition switch to the OFF position.
  2. Disconnect the 24-way EBCM/EBTCM connector C1.
  3. Disconnect the 8-way EBCM/EBTCM connector C2.
  4. Disconnect the Electronic Brake Control Relay.
  5. Use the J 39200 in order to measure the resistance between the Electronic Brake Control Relay harness connector terminal A2 and the 8-way EBCM/EBTCM connector C2 terminal C.

Is the resistance within the specified range?

0-2 ohms

Go to Step 5

Go to Step 11

5

    Caution: Before servicing any electrical component, the ignition and start switch must be in the OFF or LOCK position and all electrical loads must be OFF, unless instructed otherwise in these procedures. If a tool or equipment could easily come in contact with a live exposed electrical terminal, also disconnect the negative battery cable. Failure to follow these precautions may cause personal injury and/or damage to the vehicle or its components.

  1. Disconnect the negative battery cable.
  2. Disconnect the positive battery cable.
  3. Use the J 39200 in order to measure the resistance between the positive battery terminal and the Electronic Brake Control Relay Harness connector terminal C1.

Is the resistance within the specified range?

0-2 ohms

Go to Step 6

Go to Step 12

6

  1. Remove the fuse block ABS Fuse (10A).
  2. Use the J 39200 in order to measure the resistance between the fuse block terminal C2 (ABS Fuse [10A]) and the 24-way EBCM/EBTCM connector C1 terminal A9.

Is the resistance within the specified range?

0-2 ohms

Go to Step 7

Go to Step 13

7

Use the J 39200 in order to measure the voltage between the fuse block terminal C1 (ABS Fuse [10A]) and ground.

Is the resistance within the specified range?

10 V

Go to Step 8

Go to Step 14

8

  1. Inspect the following components:
  2. • The Electronic Brake Control Relay harness connector
    • The 24-way EBCM/EBTCM connector C1
    • The 8-way EBCM/EBTCM connector C2
    • The positive battery cable connections
    • The negative battery cable connections
  3. Inspect the above components for the following conditions:
  4. • Terminal damage
    • Poor terminal contact
    • Terminal corrosion
    • The above conditions may cause an open circuit.

Are there signs of terminal damage, poor terminal contact, or terminal corrosion?

--

Go to Step 15

Go to Step 9

9

  1. Reconnect the 24-way EBCM/EBTCM connector C1.
  2. Reconnect the 8-way EBCM/EBTCM connector C2.
  3. Reconnect the Electronic Brake Control Relay.
  4. Reconnect the positive battery cable.
  5. Reconnect the negative battery cable.
  6. Drive the vehicle at a speed above 5 km/h (3 mph).

Does DTC C1236 set as a current DTC?

--

Go to Step 16

Go to Step 17

10

Repair the low voltage condition. Refer to Charging System Check in Engine Electrical for diagnosis.

Is the low voltage condition repaired?

--

Go to Diagnostic System Check

--

11

Repair the open or high resistance in CKT 1633.

Is the repair complete?

--

Go to Diagnostic System Check

--

12

Repair the open or high resistance in CKT 102.

Is the repair complete?

--

Go to Diagnostic System Check

--

13

Repair the open or high resistance in CKT 1339.

Is the repair complete?

--

Go to Diagnostic System Check

--

14

Repair the open or high resistance in CKT 3 or CKT 1.

Is the repair complete?

--

Go to Diagnostic System Check

--

15

Replace all of the terminals or the connectors that exhibit signs of poor terminal contact, corrosion, or damaged terminals.

Is the repair complete?

--

Go to Diagnostic System Check

--

16

Replace the EBCM/EBTCM.

Is the repair complete?

--

Go to Diagnostic System Check

--

17

The malfunction is intermittent or is not present at this time.

Is the repair complete?

--

Go to Diagnostic Aids

--