GM Service Manual Online
For 1990-2009 cars only
Makes
🢒
Buick
🢒
2002
🢒
Rendezvous - AWD
🢒
Transmission/Transaxle
🢒
Automatic Transaxle - 4T65-E
🢒 Automatic Transmission Controls Schematics
Figure
1:
TCC Solenoid Control, SS Valve Control and TFT Sensor
Master Electrical Component List
Electronic Component Description
Switches, ISS and Pressure Control
Fuse Block-Underhood Fuse: 19 Fuse Block-Center Console Fuses: IGN 1 MDL, SIR, INTEMM and BCM-ACCY
Fuse Block-Underhood Fuses: 11 and 7
Figure
2:
Switches, ISS and Pressure Control
Master Electrical Component List
Electronic Component Description
PNP Switch, VSS
SS, Stoplamps Switch, and TFT
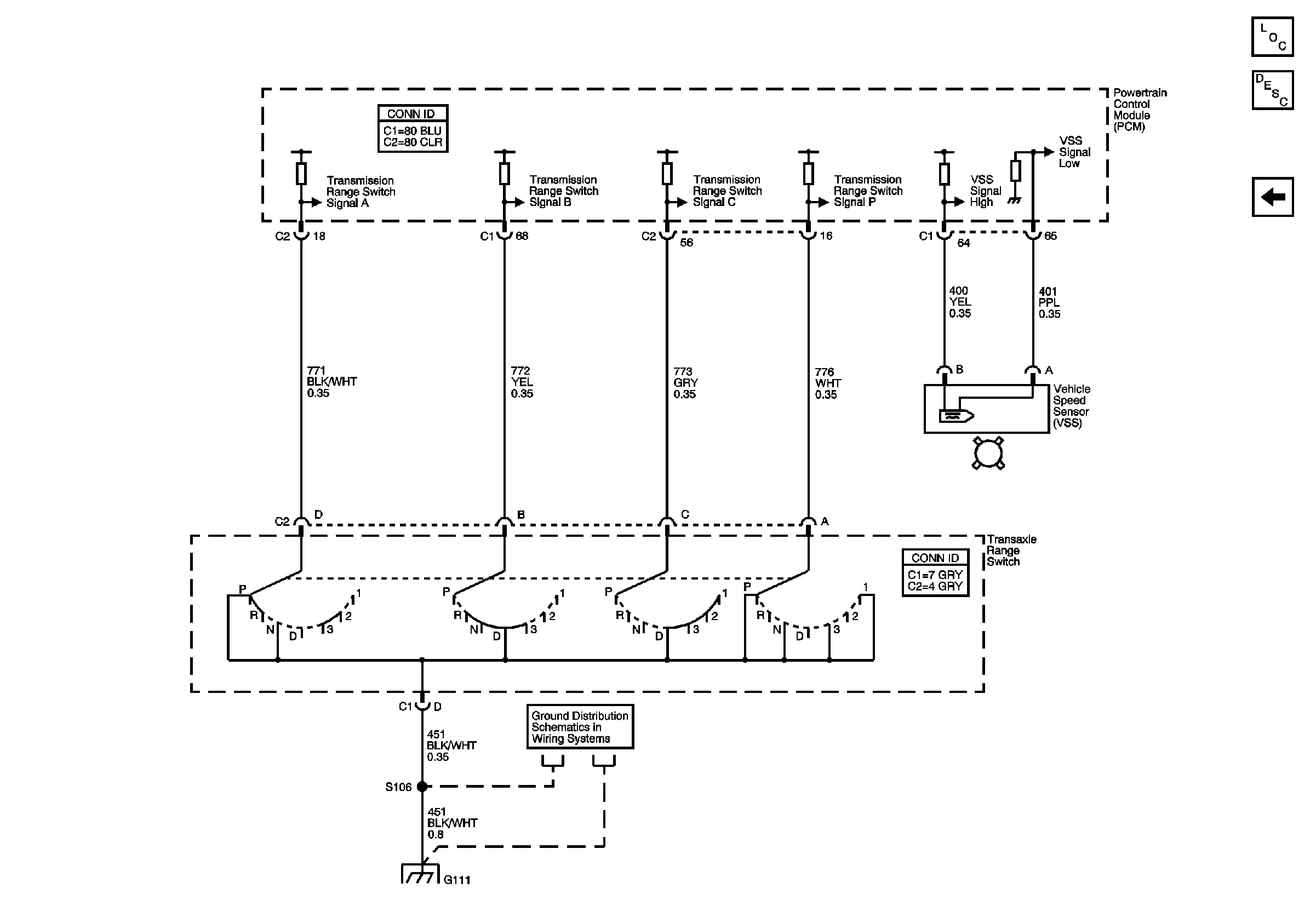
Figure
3:
Transaxle Range Switch and VSS
Master Electrical Component List
Electronic Component Description
Switches, ISS and Pressure Control
Ground G111 Schematics
Ground G111 Schematics