GM Service Manual Online
For 1990-2009 cars only
Makes
🢒
Buick
🢒
2005
🢒
Rendezvous - AWD
🢒
Body
🢒
Wipers/Washer Systems
🢒 Wiper/Washer Schematics
Figure
1:
Windshield Wiper/Washer
Master Electrical Component List
Wiper/Washer System Description and Operation
Control Module References
Rear Wiper/Washer
ACCPWR, ELC ACCY, IGN 1, RR WPR, SUN RF, WIPER Fuses, and PWR WDWS Circuit Breaker
G202
G202
G200
G200
G200
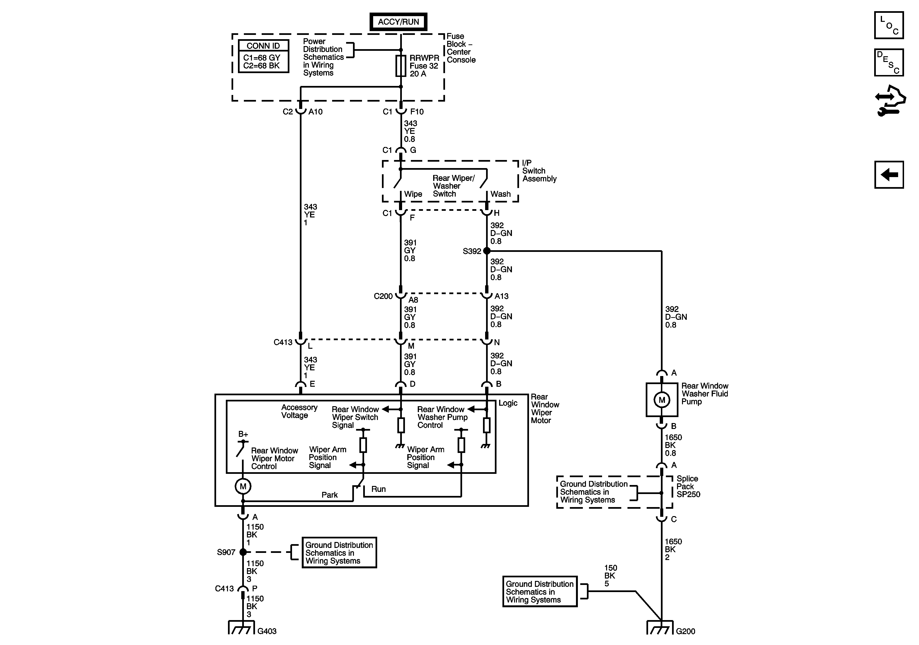
Figure
2:
Rear Wiper/Washer
Master Electrical Component List
Rear Wiper/Washer System Description and Operation
Control Module References
Windshield Wiper/Washer
ACCPWR, ELC ACCY, IGN 1, RR WPR, SUN RF, WIPER Fuses, and PWR WDWS Circuit Breaker
G402 and G403
G402 and G403
G200
G200
G200