GM Service Manual Online
For 1990-2009 cars only

DTC U2105 3.6L


Object Number: 1201837  Size: MF
Master Electrical Component List
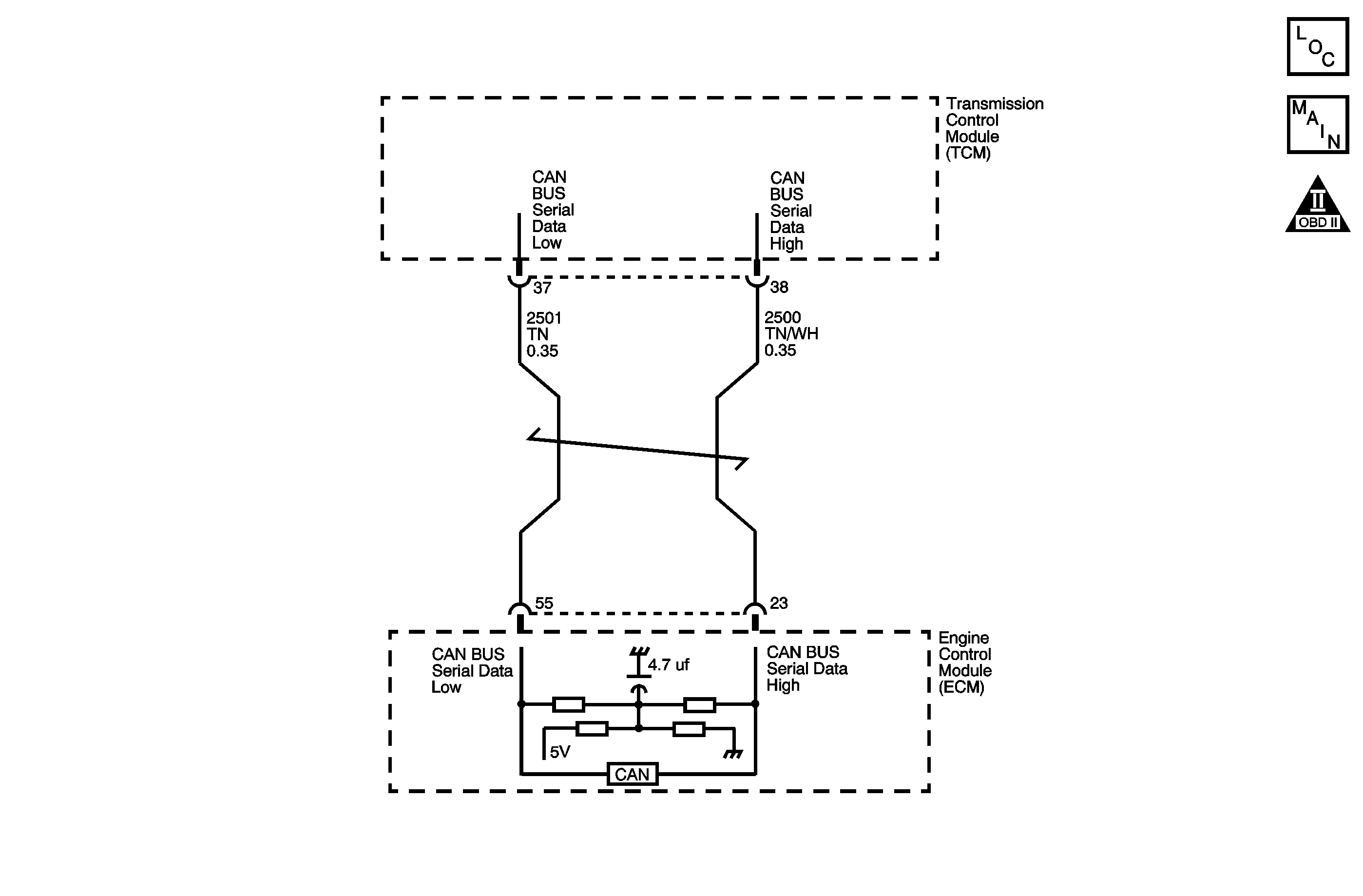
Automatic Transmission Controls Schematics
OBD II Symbol Description Notice

Circuit Description

The controller area network (CAN) consists of two separate conductors between the ECM and the transmission control module (TCM). Each module sends information by toggling the circuits high or low to produce pulse width signals, which the other modules decode.

The CAN data stream contains information such as status messages for relevant operating parameters, device requests and acknowledgments, and state-of-health messages.

When the TCM has not received ECM data for a specified amount of time, then DTC U2105 will set. DTC U2105 is a type B DTC.

Conditions for Running the DTC

The ignition is ON.

Conditions for Setting the DTC

The TCM has not received ECM messaging for 1 second.

Action Taken When the DTC Sets

    • The TCM requests the ECM to illuminate the malfunction indicator lamp (MIL) during the second consecutive drive trip in which the Conditions for Setting the DTC are met.
    • The TCM commands maximum line pressure.
    • The TCM forces the TCC ON at maximum capacity.
    • The TCM freezes transmission adaptive functions.
    • Torque management is inhibited.
    • At the time of the first failure, the TCM records the operating conditions when the Conditions for Setting the DTC are met. The TCM stores this information as a Failure Record.
    • At the time of the second failure, the ECM records the operating conditions when the Conditions for Setting the DTC are met. The ECM stores this information as a Freeze Frame.
    • The TCM stores DTC U2105 in TCM history.

Conditions for Clearing the MIL/DTC

    • The ECM turns OFF the MIL after the third consecutive drive trip in which the TCM does not send a MIL illumination request.
    • A scan tool can clear the MIL/DTC.
    • The TCM clears the DTC from TCM history if the vehicle completes 40  warm-up cycles without an emission related diagnostic fault occurring.
    • The TCM cancels the default actions when the ignition is OFF long enough in order to power down the TCM.

Diagnostic Aids

This DTC sets when a communication fault exists between the ECM and the TCM. Inspect for DTCs U 2100, U 2104 and U 2106. If any of these DTCs are present, diagnose them first.

Test Description

The number below refers to the step number on the diagnostic table.

  1. Performing this step verifies that an operational abnormality did not take place during TCM power-up, such as Electromagnetic Interference (EMI).

Step

Action

Value(s)

Yes

No

1

Did you perform the Diagnostic System Check -- Engine Controls?

--

Go to Step 2

Go to Diagnostic System Check - Engine Controls in Engine Controls - 3.6L

2

  1. Install a scan tool.
  2. Turn ON the ignition with the engine OFF.
  3. Important: 

       • Before clearing the DTC, use the scan tool in order to record the ECM Freeze Frame and the TCM Failure Records. Using the Clear Info function erases the Freeze Frame and Failure Records from the ECM and the TCM.
       • Using the Clear Info function erases stored DTCs in both the ECM and TCM.

  4. Record the DTC Failure Records.
  5. Clear the DTC.
  6. Turn OFF the ignition for at least 30 seconds.
  7. Turn ON the ignition with the engine OFF.

Did DTC U2105 reset?

--

Go to Step 3

Go to Intermittent Conditions in Engine Controls - 3.6L

3

Did you record a Failure record for any ECM DTCs?

--

Go to Diagnostic Trouble Code (DTC) List in Engine Controls - 3.6L

Go to Step 4

4

Test the CAN serial data low circuit and the CAN serial data high circuit between the TCM and the ECM for the following conditions:

    • Open circuit
        Refer to Testing for Continuity in Wiring Systems.
    • Short to voltage
        Refer to Testing for a Short to Voltage in Wiring Systems.
    • Short to ground
        Refer to Testing for Short to Ground in Wiring Systems.
    • Shorted together
        Refer to Circuit Testing in Wiring Systems.

Did you find a condition?

--

Go to Step 5

Go to Step 6

5

Repair the wiring as necessary.

Refer to Wiring Repairs in Wiring Systems.

Is the action complete?

--

Go to Step 7

--

6

Replace the ECM.

Refer to Engine Control Module Replacement in Engine Controls - 3.6L.

Is the action complete?

--

Go to Step 7

--

7

Perform the following procedure in order to verify the repair:

  1. Select DTC.
  2. Select Clear Info.
  3. Turn ON the ignition, with the engine OFF.
  4. Select Specific DTC.
  5. Enter DTC U2105.

Has the test run and passed?

--

Go to Step 8

Go to Step 2

8

With the scan tool, observe the stored information, capture info and DTC info.

Does the scan tool display any DTCs that you have not diagnosed?

--

Go to Diagnostic Trouble Code (DTC) List in Engine Controls - 3.6L

System OK