GM Service Manual Online
For 1990-2009 cars only
Makes
🢒
Buick
🢒
2006
🢒
Rendezvous - FWD
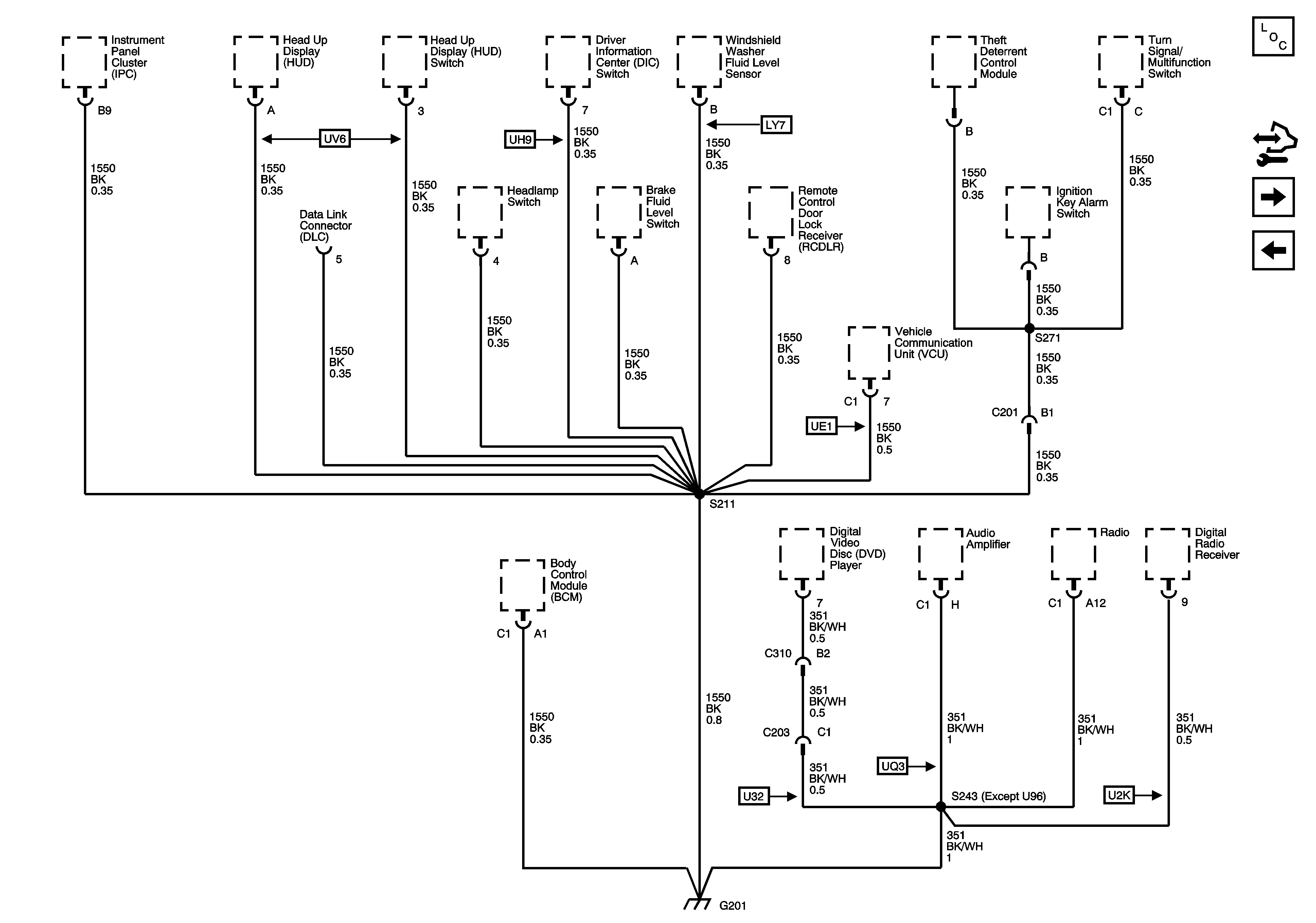
🢒 G201
G201
G201
Master Electrical Component List
Control Module References
G202
G200