GM Service Manual Online
For 1990-2009 cars only
Makes
🢒
Buick
🢒
2006
🢒
Rendezvous - FWD
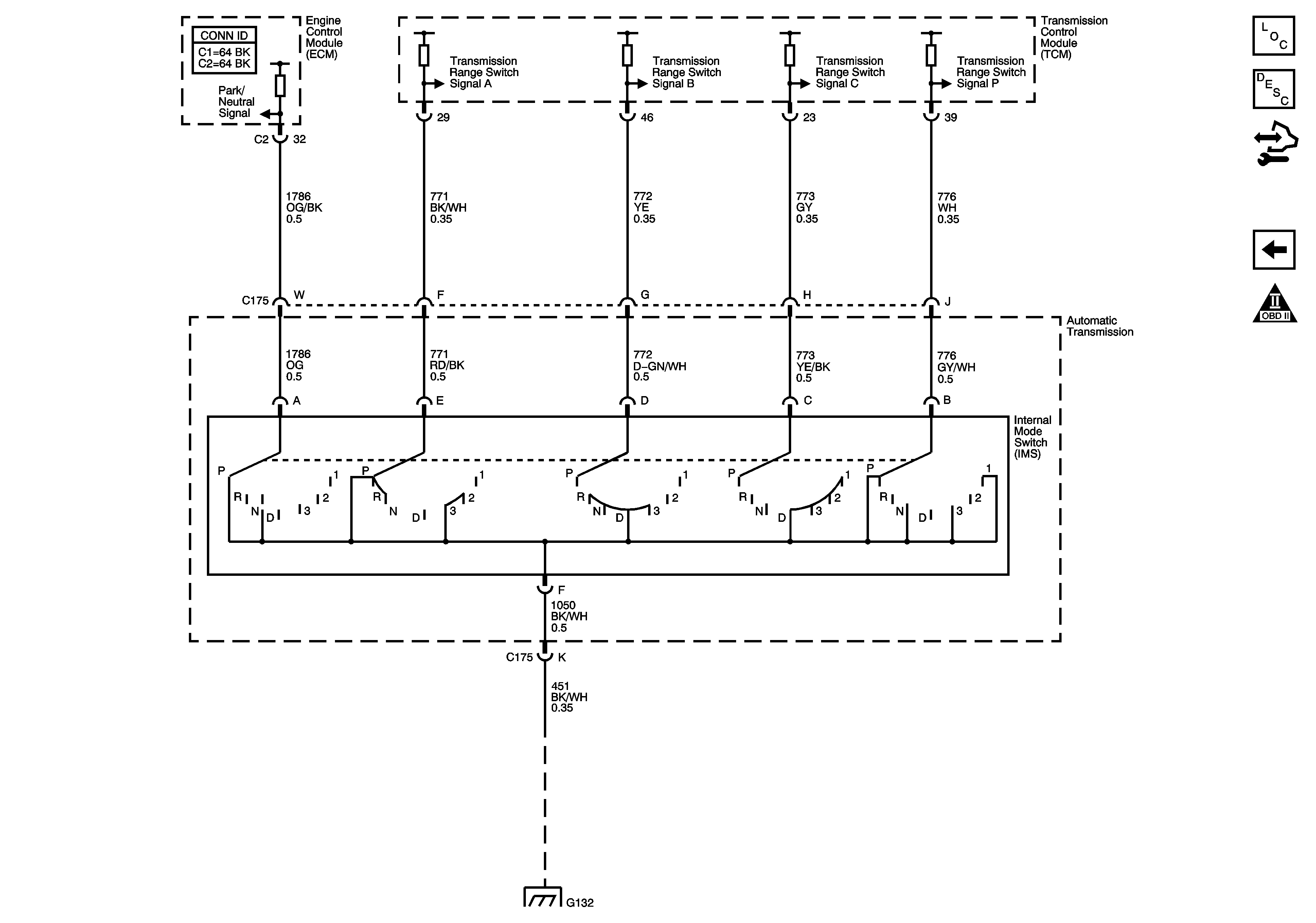
🢒 Internal Mode Switch-LY7
Internal Mode Switch-LY7
Internal Mode Switch-LY7
Master Electrical Component List
Electronic Component Description
Control Module References
ISS, Pressure Control, and VSS-LY7
Automatic Transmission Schematic Icons
G117 and G132