GM Service Manual Online
For 1990-2009 cars only
Makes
🢒
Buick
🢒
2006
🢒
Rendezvous - FWD
🢒 Rear
Rear
Rear
Master Electrical Component List
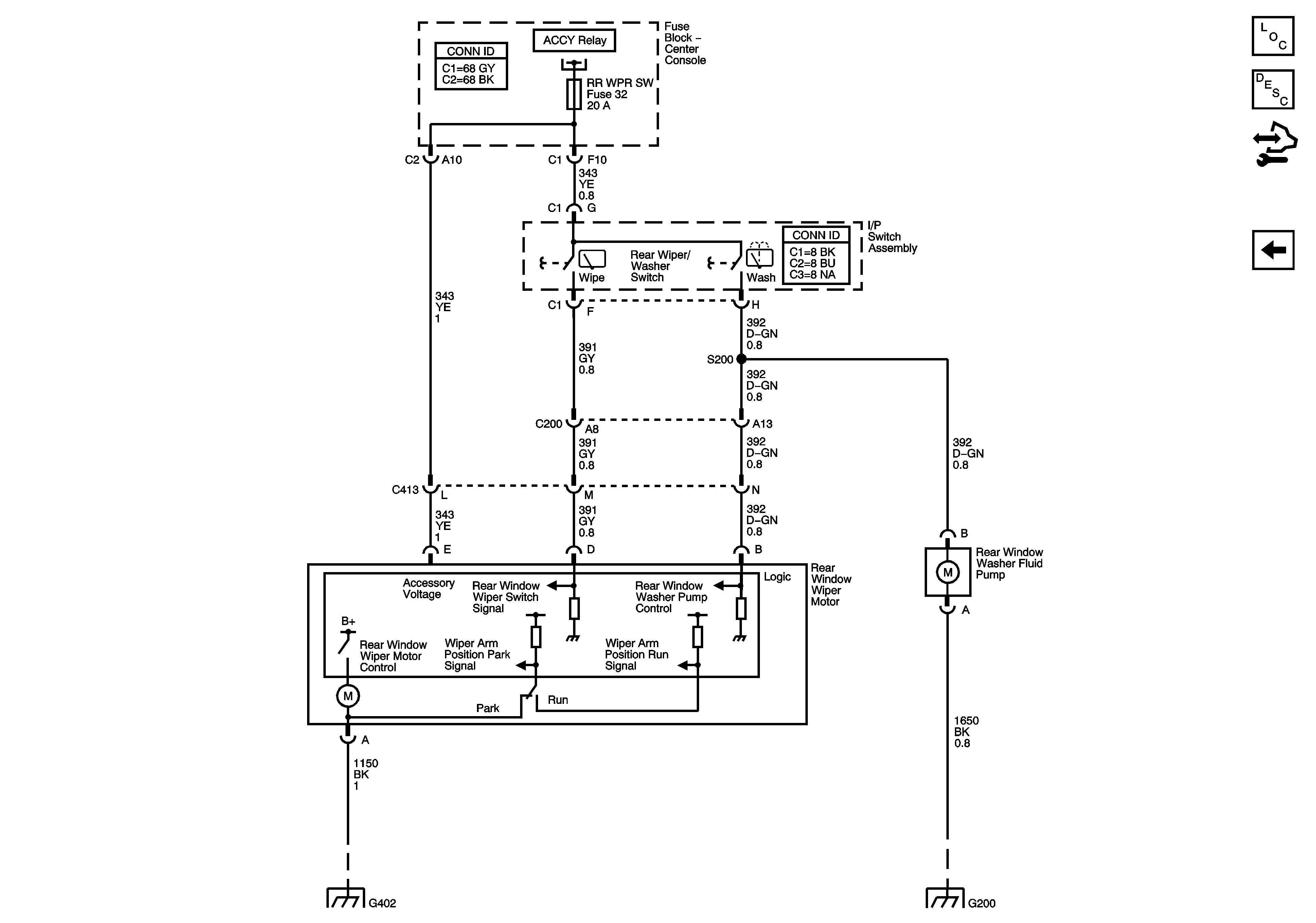
Wiper/Washer System Description and Operation
Control Module References
Front
Front
G402
G200