GM Service Manual Online
For 1990-2009 cars only

AMBER ANTILOCK BRAKE WARNING LIGHT/TRACTIONSTAYS ON

SUBJECT: AMBER ANTILOCK WARNING LIGHT AND (IF EQUIPPED) AMBER TRACTION OFF WARNING LIGHT STAYS ON (INSTALL JUMPER HARNESS)

MODELS: 1995 BUICK RIVIERA (BUILT BEFORE VIN 4708381) 1995 OLDSMOBILE AURORA

CONDITION:

SOME OWNERS MAY COMMENT ON AN INOPERATIVE ANTILOCK BRAKE AND (IF EQUIPPED) TRACTION CONTROL SYSTEM. AS A RESULT, THE FOLLOWING CONDITIONS WILL OCCUR:

- AMBER ANTILOCK WARNING LIGHT AND (IF EQUIPPED) AMBER TRACTION OFF WARNING LIGHT TURN(S) ON AND STAY(S) ON. THE RED BRAKE WARNING LIGHT REMAINS OFF.

- ONE OR MORE OF THE FOLLOWING DIAGNOSTIC TROUBLE CODES MAY BE SET: 45, 51 OR NO CODE.

NOTE: THIS CONDITION DOES NOT AFFECT THE OPERATION OF THE POWER BRAKES.

CAUSE:

NORMAL OPERATION OF THE LEFT-HAND (PRIMARY) COOLANT FAN MAY CAUSE VOLTAGE SURGES WHICH DAMAGE THE ELECTRONIC BRAKE (AND TRACTION) CONTROL MODULE (EBCM/EBTCM). FAILURE OF THIS MODULE RESULTS IN AN INOPERATIVE ANTILOCK BRAKE AND (IF EQUIPPED) TRACTION CONTROL SYSTEM.

CORRECTION:

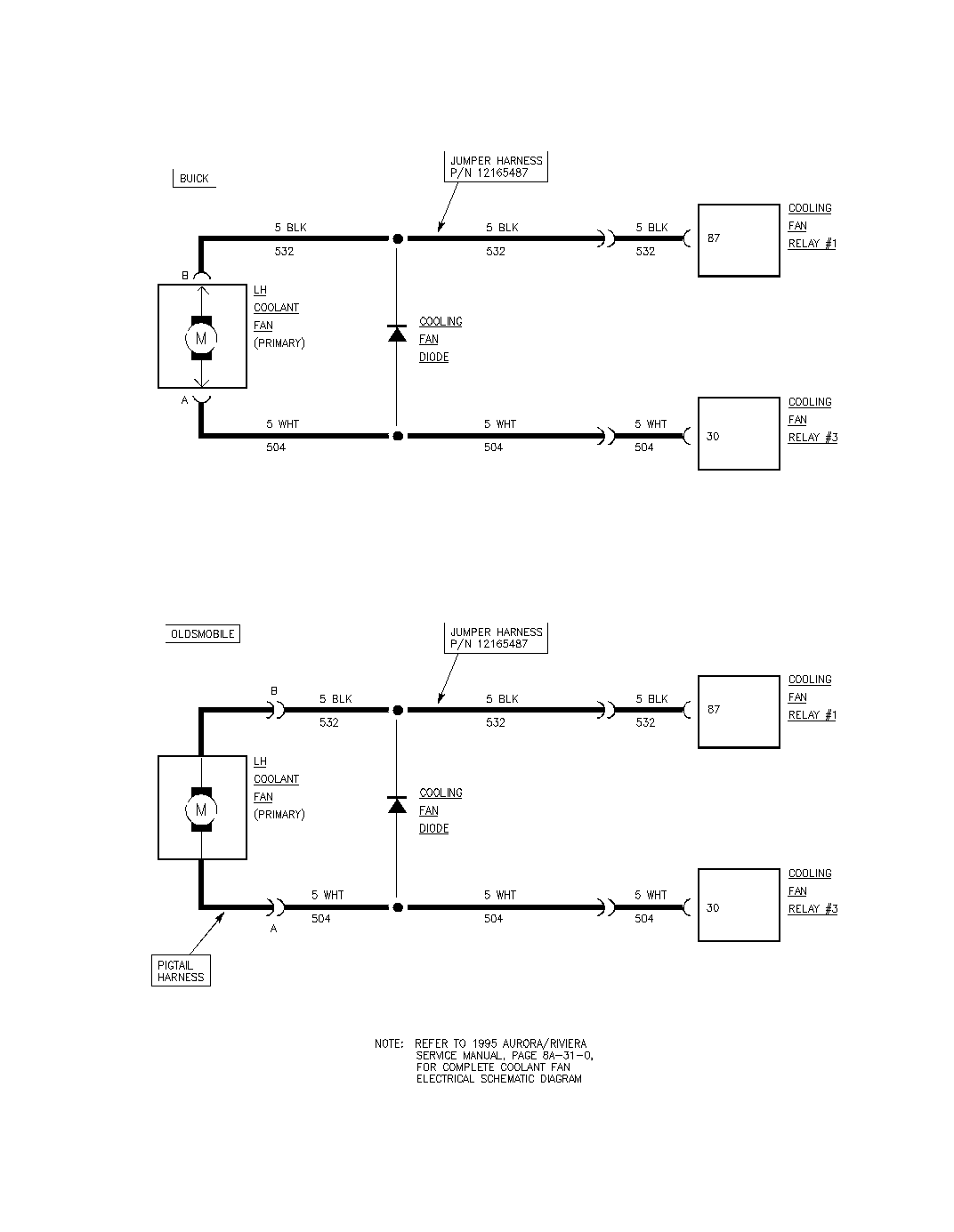
INSTALL JUMPER HARNESS, P/N 12165487, IN THE LEFT-HAND (PRIMARY) COOLANT FAN HARNESS. THIS JUMPER HARNESS CONTAINS AN INTEGRAL SURGE SUPPRESSION DIODE. REFER TO ATTACHMENT 1 FOR THE ELECTRICAL DIAGRAM OF THE FAN WITH INSTALLED JUMPER HARNESS.

INSPECTION - BUICK RIVIERA:

BEFORE INSTALLING A JUMPER HARNESS, PERFORM THE FOLLOWING INSPECTION/TEST PROCEDURE.

1. LOCATE LEFT-HAND (PRIMARY) COOLANT FAN CONNECTOR. (FOR RIVIERA, IT IS ON THE FAN).

2. EXAMINE THE LEFT-HAND COOLANT FAN HARNESS TO DETERMINE IF A JUMPER HARNESS HAS ALREADY BEEN INSTALLED. DO NOT INSTALL A NEW JUMPER HARNESS IF ONE IS ALREADY PRESENT.

3. ON SOME VEHICLES, A SURGE PROTECTION DIODE MAY HAVE BEEN PREVIOUSLY INSTALLED DURING SERVICE. IN THIS CASE, THERE IS A DIODE SPLICE IN THE MAIN BODY HARNESS NEAR THE LEFT-HAND COOLANT FAN. PERFORM STEP 4 BELOW TO CHECK FOR THE PRESENCE OF THIS DIODE. IF STEP 4 VERIFIES THE PRESENCE OF A DIODE, NO JUMPER HARNESS IS NEEDED. DO NOT INSTALL A JUMPER HARNESS.

4. TEST FOR THE PRESENCE OF A DIODE IN THE BODY HARNESS AS FOLLOWS:

A. DISCONNECT THE LEFT-HAND COOLANT FAN CONNECTOR.

B. USING A J39200 DIGITAL VOLTMETER OR EQUIVALENT, PERFORM THE FOLLOWING CHECK.

- SET THE METER TO THE DIODE SCALE. - MEASURE ACROSS THE TWO PINS ON THE BODY HARNESS SIDE OF THE LEFT-HAND COOLANT FAN CONNECTOR. CHECK ONE DIRECTION, THEN REVERSE THE LEADS AND CHECK IN THE OPPOSITE DIRECTION. - IF THE SURGE PROTECTION DIODE IS PRESENT AND GOOD, ONE DIRECTION SHOWS OVERLOAD (OL); THE OTHER DIRECTION SHOWS ABOUT 0.5 VOLT.

NOTE: THE PROCEDURE IN STEP 4 MAY BE USED TO VERIFY THAT THE DIODE IN AN INSTALLED JUMPER HARNESS IS GOOD.

INSTALLATION - BUICK RIVIERA:

INSTALL JUMPER HARNESS AND REPLACE EBCM/EBTCM AS FOLLOWS:

1. DISCONNECT NEGATIVE BATTERY CABLE.

2. DISCONNECT LEFT-HAND COOLANT FAN MOTOR CONNECTOR.

3. INSTALL JUMPER HARNESS, P/N 12165487, ON CONNECTOR OF LEFT-HAND COOLANT FAN MOTOR (1). SEE FIGURE 1.

4. POSITION JUMPER HARNESS ON FAN AT FAN WEB AS SHOWN IN FIGURE 1. INSTALL WIRE TIE AROUND JUMPER HARNESS AND FAN WEB USING EXISTING FAN WEB HOLE (2). POSITION WIRE TIE SO THAT IT IS OFFSET FROM THE CENTER OF THE HARNESS, PROVIDING A MORE SECURE FIT. CUT OFF EXCESS WIRE TIE STRAP.

5. CONNECT JUMPER HARNESS CONNECTOR (3) TO MAIN BODY HARNESS.

6. REPLACE EBCM/EBTCM USING ON-VEHICLE SERVICE PROCEDURES IN SECTION 5E2 OF THE SERVICE MANUAL.

7. RECONNECT NEGATIVE BATTERY CABLE.

INSPECTION - OLDSMOBILE AURORA:

BEFORE INSTALLING A JUMPER HARNESS, PERFORM THE FOLLOWING INSPECTION/TEST PROCEDURE.

1. RAISE VEHICLE ON HOIST.

2. REMOVE LOWER AIR DEFLECTOR FROM VEHICLE IN AREA UNDER COOLANT FANS. TO DO SO, REMOVE 11 PUSH-IN RETAINERS WHICH SECURE AIR DEFLECTOR TO VEHICLE UNDERBODY. (REFER TO SERVICE MANUAL, SECTION 10, PARAGRAPH 2-3, ENGINE SPLASH SHIELD REPLACEMENT).

3. LOCATE LEFT-HAND (PRIMARY) COOLANT FAN CONNECTOR. FOR AURORA, IT IS ON A PIGTAIL HARNESS SEVERAL INCHES FROM THE FAN.

4. PERFORM STEPS 2, 3 AND 4 IN ABOVE "INSPECTION - BUICK RIVIERA" PROCEDURE.

INSTALLATION - OLDSMOBILE AURORA:

INSTALL JUMPER HARNESS AND EBCM/EBTCM AS FOLLOWS:

1. DISCONNECT NEGATIVE BATTERY CABLE.

2. OPEN ROSEBUD CLIP (1) ON LEFT-HAND COOLANT FAN MOTOR PIGTAIL HARNESS. DO NOT REMOVE CLIP FROM FAN WEB. SEE FIGURE 2.

3. DISCONNECT FAN MOTOR CONNECTOR (2) FROM MAIN BODY HARNESS. SLIDE FAN MOTOR PIGTAIL CONNECTOR OFF OF CHRISTMAS TREE CONNECTOR.

4. POSITION FAN MOTOR PIGTAIL HARNESS AT FAN WEB AS SHOWN IN FIGURE 3. INSTALL WIRE TIE AROUND PIGTAIL HARNESS AND FAN WEB (3), MAINTAINING A LOOP OF HARNESS ABOVE WIRE TIE. CUT OFF EXCESS WIRE TIE STRAP.

5. INSTALL JUMPER HARNESS, P/N 12165487, TO FAN MOTOR PIGTAIL CONNECTOR (4).

6. ATTACH CENTER OF JUMPER HARNESS TO FAN WEB USING EXISTING ROSEBUD (5). MAKE SURE ROSEBUD IS NOT CLIPPED OVER DIODE.

7. POSITION THE OTHER END OF THE JUMPER HARNESS AT FAN WEB (6) AS SHOWN IN FIGURE 3. INSTALL WIRE TIE AROUND JUMPER HARNESS AND FAN WEB. CLIP OFF EXCESS WIRE TIE STRAP.

8. CONNECT JUMPER HARNESS CONNECTOR (6) TO MAIN BODY HARNESS.

9. REINSTALL AIR DEFLECTOR IN AREA BELOW COOLANT FANS. INSTALL 11 PUSH-IN RETAINERS TO SECURE AIR DEFLECTOR TO VEHICLE UNDERBODY.

10. LOWER VEHICLE FROM HOIST.

11. REPLACE EBCM/EBTCM USING ON-VEHICLE SERVICE PROCEDURES IN SECTION 5E2 OF THE SERVICE MANUAL.

12. RECONNECT NEGATIVE BATTERY CABLE.

PARTS ARE EXPECTED TO BE AVAILABLE ON SEPTEMBER 5, 1994.

WARRANTY INFORMATION:

FOR VEHICLES REPAIRED UNDER WARRANTY, USE:

LABOR OPERATION NUMBER: H2505 (TO REPLACE EBCM/EBTCM) USE PUBLISHED LABOR OPERATION TIME. (OTHER LABOR HOURS) ADD: 0.1 HR. (TO INSPECT/INSTALL JUMPER HARNESS FOR BUICK RIVIERA) (OTHER LABOR HOURS) ADD: 0.3 HR. (TO INSPECT/INSTALL JUMPER HARNESS FOR OLDSMOBILE AURORA)

FIGURES: 4


Object Number: 85829  Size: MF


Object Number: 85561  Size: MF


Object Number: 87310  Size: MF


Object Number: 84031  Size: FS

GENERAL MOTORS BULLETINS ARE INTENDED FOR USE BY PROFESSIONAL TECHNICIANS, NOT A "DO-IT-YOURSELFER". THEY ARE WRITTEN TO INFORM THOSE TECHNICIANS OF CONDITIONS THAT MAY OCCUR ON SOME VEHICLES, OR TO PROVIDE INFORMATION THAT COULD ASSIST IN THE PROPER SERVICE OF A VEHICLE. PROPERLY TRAINED TECHNICIANS HAVE THE EQUIPMENT, TOOLS, SAFETY INSTRUCTIONS AND KNOW-HOW TO DO A JOB PROPERLY AND SAFELY. IF A CONDITION IS DESCRIBED, DO NOT ASSUME THAT THE BULLETIN APPLIES TO YOUR VEHICLE, OR THAT YOUR VEHICLE WILL HAVE THAT CONDITION. SEE A GENERAL MOTORS DEALER SERVICING YOUR BRAND OF GENERAL MOTORS VEHICLE FOR INFORMATION ON WHETHER YOUR VEHICLE MAY BENEFIT FROM THE INFORMATION.

COPYRIGHT 1994 GENERAL MOTORS CORPORATION. ALL RIGHTS RESERVED.