GM Service Manual Online
For 1990-2009 cars only

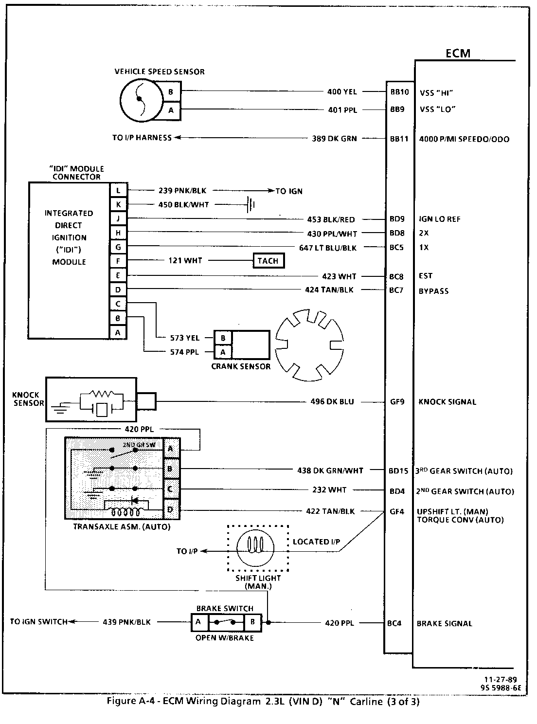
REVISED WIRING DIAGRAM AND CHART C-8A

MODELS AFFECTED: 1990 SKYLARKS WITH 2.3L ENGINE

This bulletin serves to update the ECM Wiring Diagram (Page 3 of 3) and the Chart C-8A Facing Page in Section 6E3 "Driveability And Emissions" in the 1990 Skylark Service Manuals with 2.3L "N" (VIN D) applications. (Art is attached).

CHART C-8A 125C TORQUE CONVERTER CLUTCH (TCC) (ELECTRICAL DIAGNOSIS) 2.3L (VIN D) "N" CARLINE (PORT)

Circuit Description:

The purpose of the Torque Converter Clutch (TCC) feature is to eliminate the power loss of the transaxle converter stage when the vehicle is in a cruise condition. This allows the convenience of the automatic transaxle and the fuel economy of a manual transaxle.

Fused battery ignition is supplied to the TCC solenoid through the brake switch, and transaxle third gear apply switch. The ECM will engage TCC by grounding CKT 422 to energize the solenoid.

TCC will engage when:

Vehicle speed above a calibrated value (about 34 mph) (55 km/h).

Throttle position sensor output not changing, indicating a steady road speed.

Transmission second gear switch closed.

Brake switch closed.

Test Description: Numbers below refer to circled numbers on the diagnostic chart.

1. Light "OFF" confirms transmission second gear apply switch is open.

2. By 25 mph, the transmission second gear TCC switch should close. Test light will come "ON" and confirm battery supply and closed brake switch.

3. Grounding the diagnostic terminal with ignition "ON," engine "OFF," should energize the TCC solenoid by grounding CKT 422. This test checks the ability of the ECM to supply a ground to the TCC solenoid. The test light connected from 12 volts to ALDL terminal "F" will turn "ON" as CKT 422 is grounded.

Diagnostic Aids:

A "Scan" tool only indicates when the ECM has turned "ON" the TCC driver and this does not confirm that the TCC has engaged. To determine if TCC is functioning properly, engine rpm should decrease when the "Scan" indicates the TCC driver has turned "ON."


Object Number: 81498  Size: FS


Object Number: 81497  Size: FS

General Motors bulletins are intended for use by professional technicians, not a "do-it-yourselfer". They are written to inform those technicians of conditions that may occur on some vehicles, or to provide information that could assist in the proper service of a vehicle. Properly trained technicians have the equipment, tools, safety instructions and know-how to do a job properly and safely. If a condition is described, do not assume that the bulletin applies to your vehicle, or that your vehicle will have that condition. See a General Motors dealer servicing your brand of General Motors vehicle for information on whether your vehicle may benefit from the information.