GM Service Manual Online
For 1990-2009 cars only
Makes
🢒
Buick
🢒
2007
🢒
Terraza Ext.
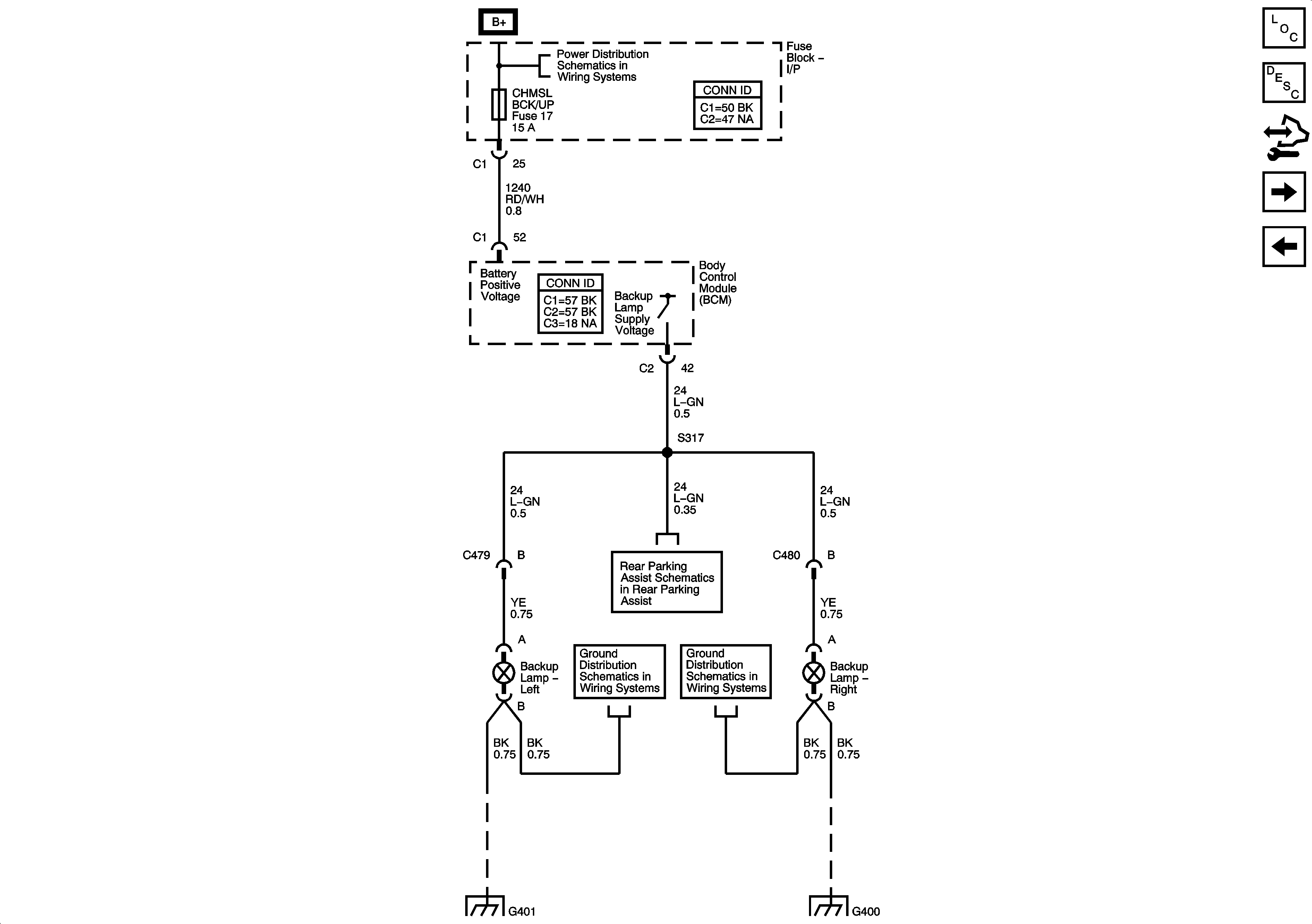
🢒 Backup Lamps
Backup Lamps
Backup Lamps
Master Electrical Component List
Exterior Lighting Systems Description and Operation
Control Module References
Trailer Wiring
Stop/Turn Signal Lamps
CHMSL BCK/UP, PRK LAMP, PSD, and RFA MDLS Fuses
Object Detection Schematics
G401
G400
G401
G400