GM Service Manual Online
For 1990-2009 cars only
Makes
🢒
Buick
🢒
2007
🢒
Terraza Ext.
🢒 DefoggerSchematics
DefoggerSchematics
Master Electrical Component List
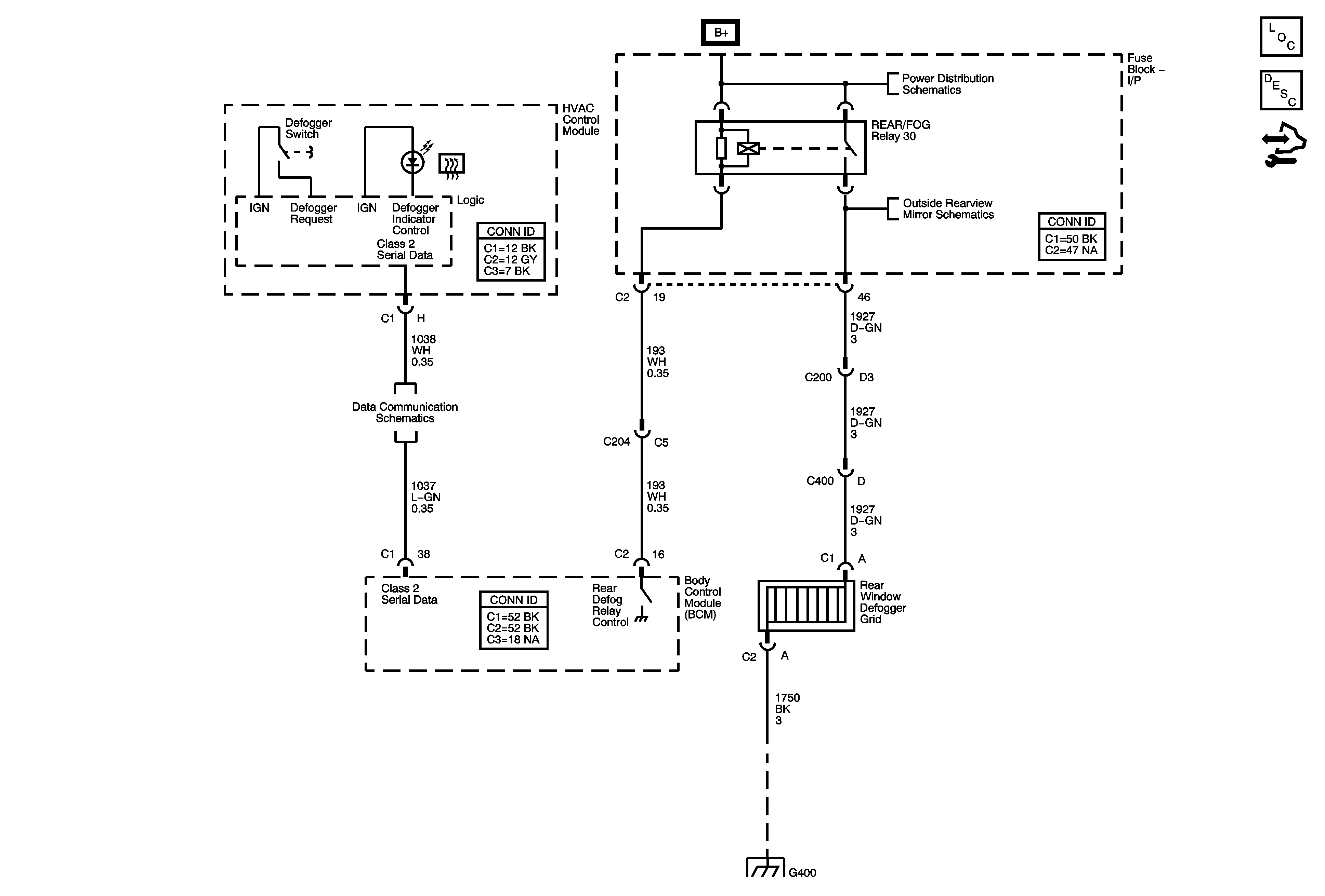
Rear Window Defogger Description and Operation
Control Module References
FRT/BLWR, HTD/MIR, LH HI BEAM, LH LO BEAM, RH LO BEAM, RH HI BEAM, RR BLWR/110VAC, and RR DEFOG Fuses
Heated Mirrors
Data Communication Schematics
G400