GM Service Manual Online
For 1990-2009 cars only
Makes
🢒
Cadillac
🢒
2003
🢒
CTS
🢒
Steering
🢒
Steering Wheel and Column
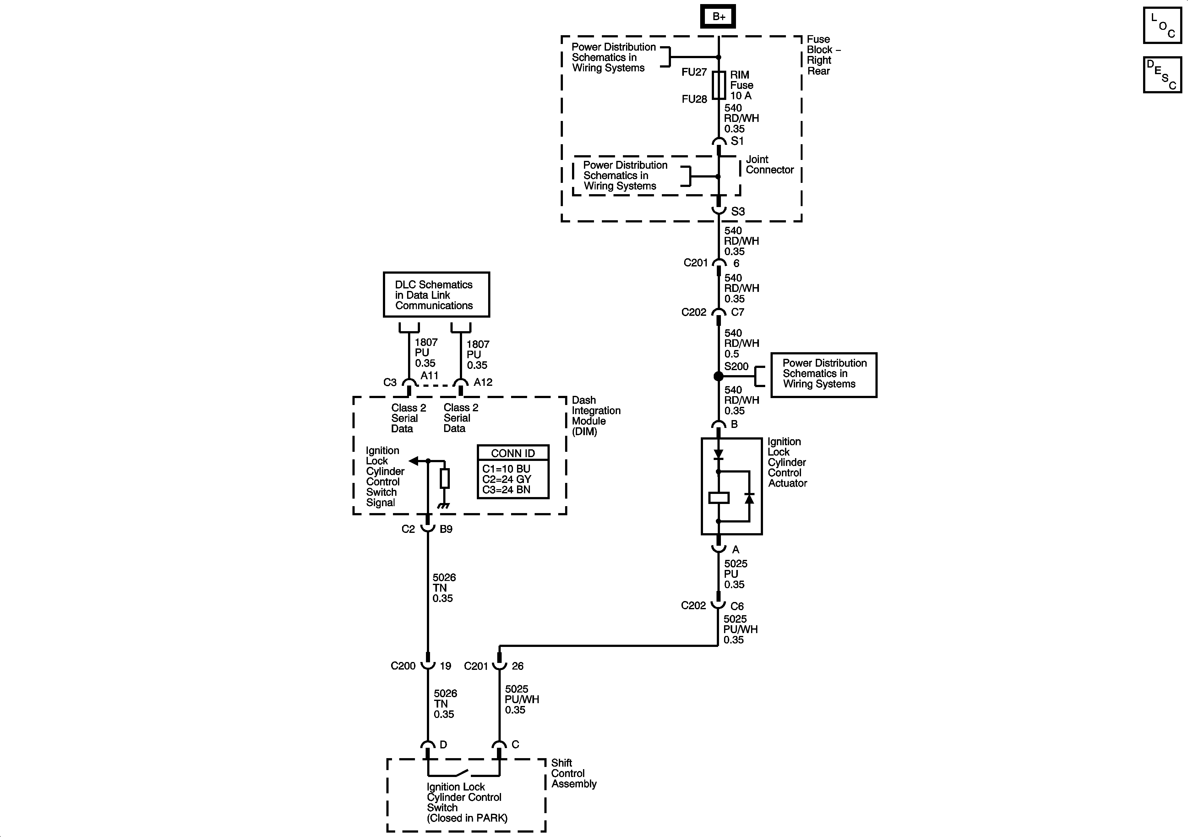
🢒 Column/Ignition Lock Schematics
Class 2 (LHD) 2 of 2
INT PRK Fuse, Roof Marker Lamps and Clearance Lamps
Class 2 (LHD) 1 of 2