GM Service Manual Online
For 1990-2009 cars only
Makes
🢒
Cadillac
🢒
2003
🢒
CTS
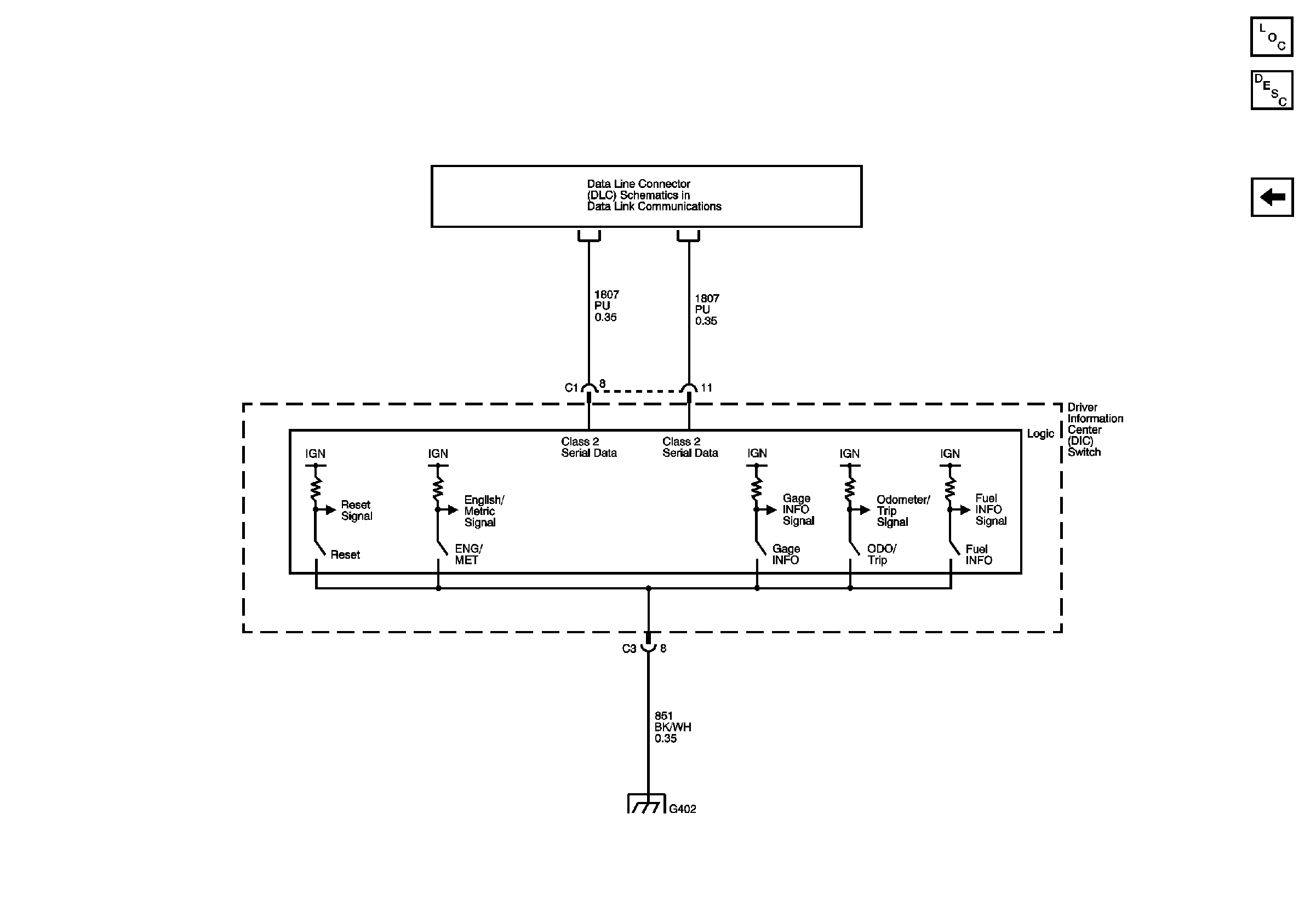
🢒 Driver Information Center Schematic
Driver Information Center Schematic
Driver Information Center
03 D Car Instrument Cluster Scematics - Power, Ground, DLC, Odometer, and Clock (Early Production)
Class 2 (LHD) 1 of 2