GM Service Manual Online
For 1990-2009 cars only
Makes
🢒
Cadillac
🢒
2003
🢒
CTS
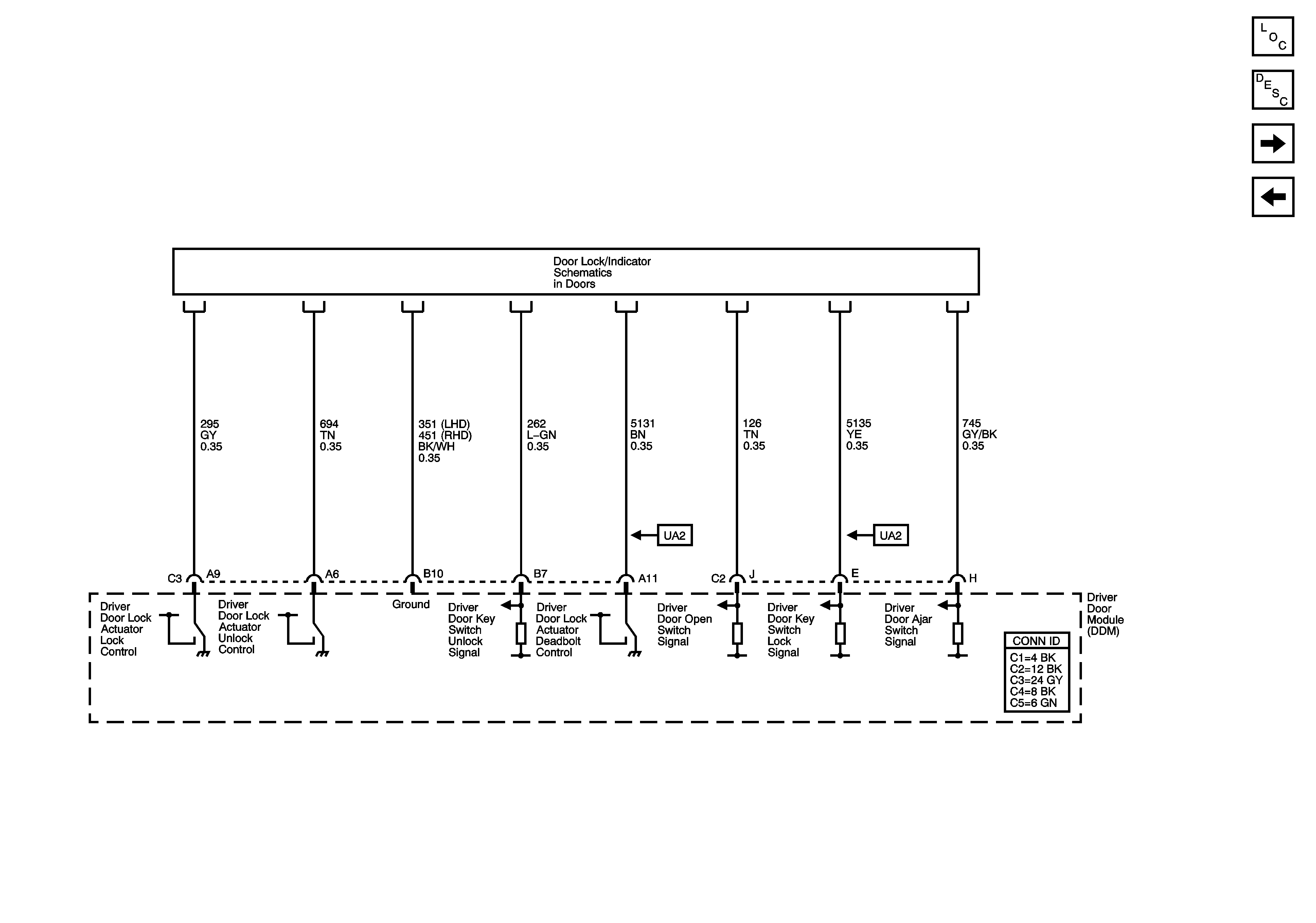
🢒 DDM Signals/Controls 2 of 2
DDM Signals/Controls 2 of 2
DDM Signals/Controls 2 of 2
Master Electrical Component List
Power Door Locks Description and Operation
FPDM Power, Ground, and Serial Data
DDM Signals/Controls 1 of 2
Power Door Lock Schematics Driver Door Module