GM Service Manual Online
For 1990-2009 cars only
Makes
🢒
Cadillac
🢒
2004
🢒
CTS
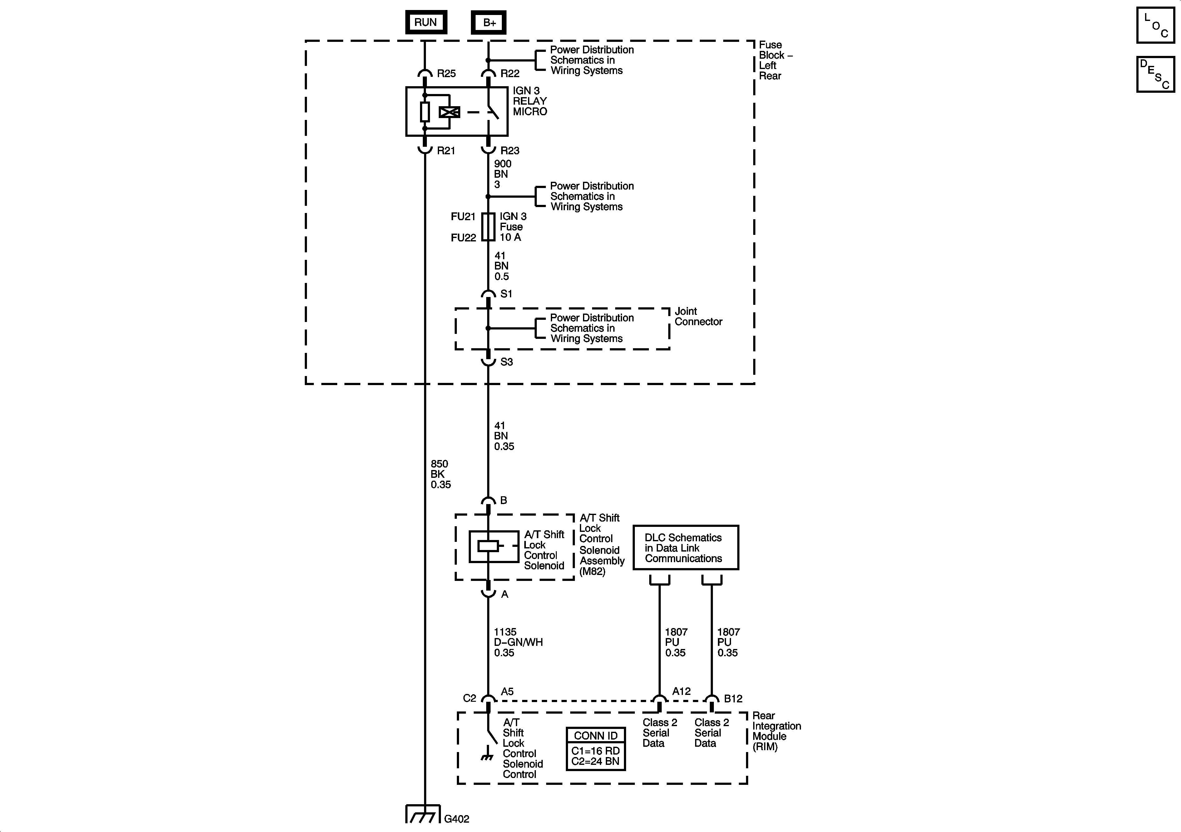
🢒 A/T Shift Lock Control (M82)
A/T Shift Lock Control (M82)
Master Electrical Component List
Automatic Transmission Shift Lock Control Description and Operation
Left Rear Fuse Block B+ Bus
Left Rear Fuse Block B+ Bus
Left Rear Fuse Block IGN 3 Relay, L FRT HTD SEAT MOD, MEM/ADAPT SEAT, CCP, and HDLP LEVELING and IGN 3 Fuses
Class 2 Serial Data Bus - LHD - 2 of 2
G402 - 2 of 2