GM Service Manual Online
For 1990-2009 cars only
Makes
🢒
Cadillac
🢒
2005
🢒
CTS
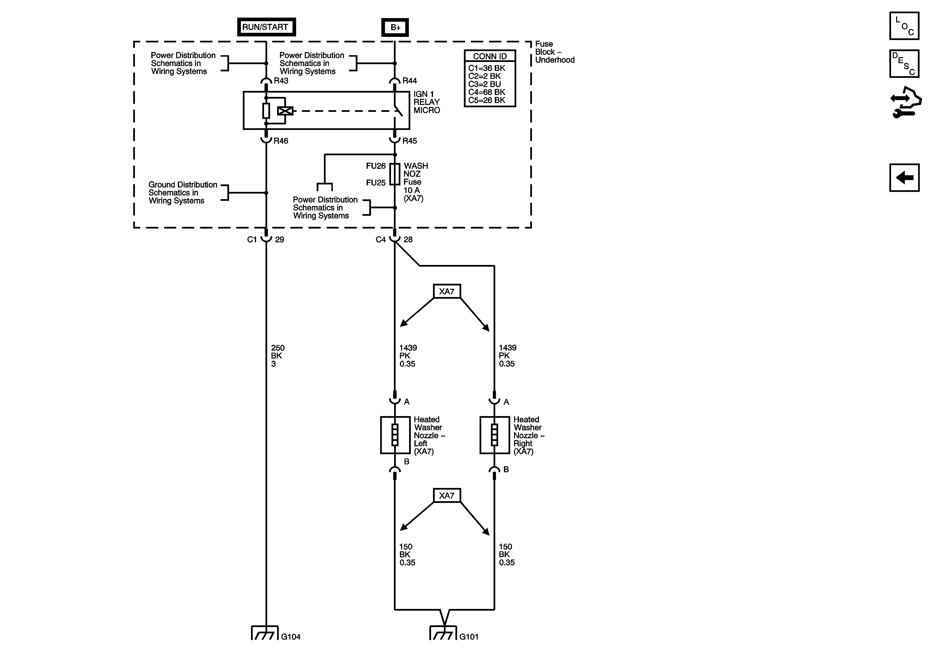
🢒 Heated Washer Nozzles (XA7)
Heated Washer Nozzles (XA7)
Heated Washer Nozzles (XA7)
Master Electrical Component List
Wiper/Washer System Description and Operation
Control Module References
Windshield Washer Fluid Pump, Headlamp Washer Fluid Pump Relay (CEV) and Washer Fluid Level Switch
Ignition Switch - 2 of 2
Underhood Fuse Block B+ Bus - 2 of 2
G104 - 1 of 2
Underhood Fuse Block WASH NOZ, STRG CTLS and IGN MOD/MAF Fuses
G104 - 1 of 2
G101