GM Service Manual Online
For 1990-2009 cars only
Makes
🢒
Cadillac
🢒
2005
🢒
CTS
🢒 Driver Information Center (DIC) System
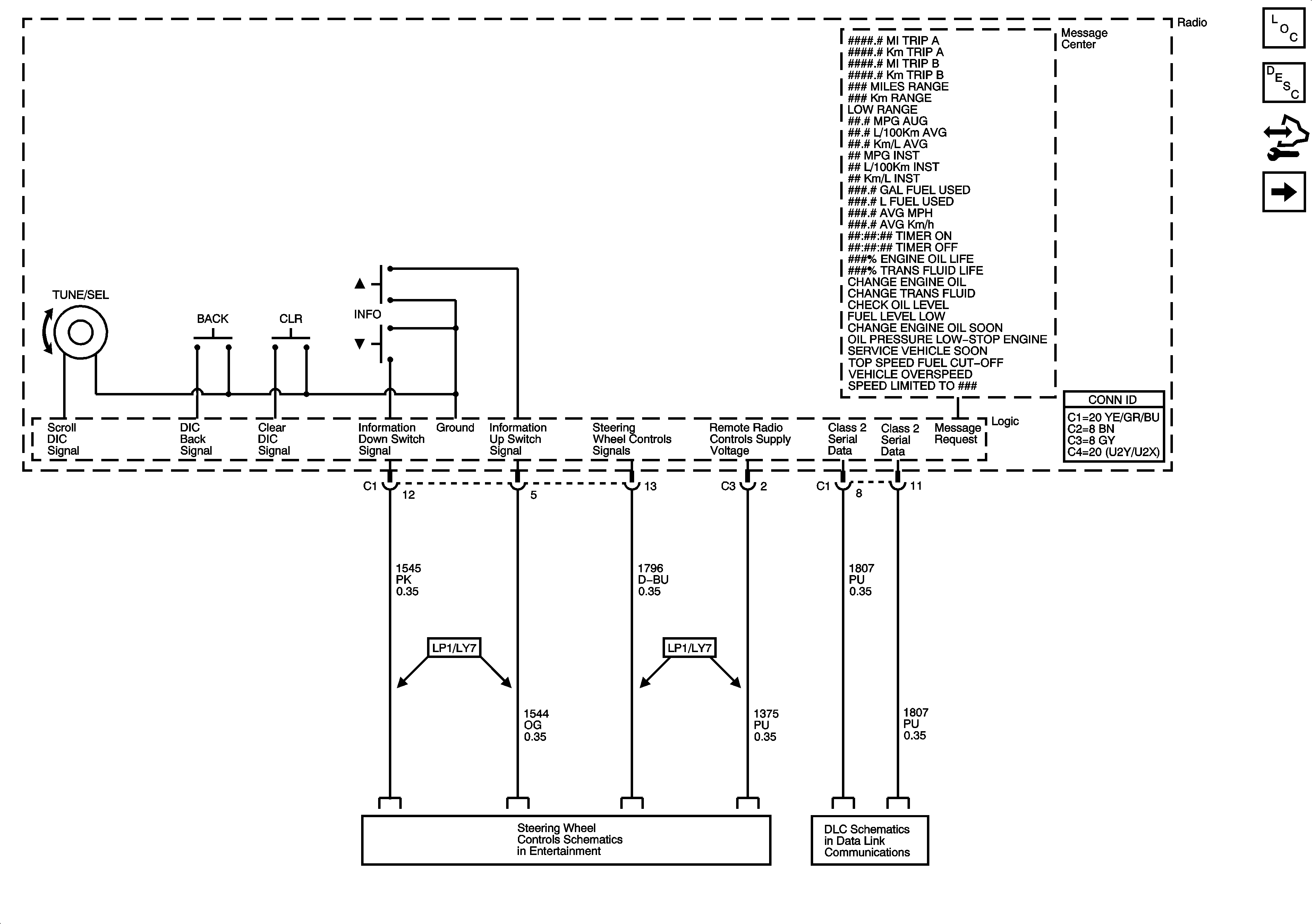
Driver Information Center (DIC) System
Driver Information Center (DIC) System
Master Electrical Component List
Driver Information Center (DIC) Description and Operation CTS and CTS-V
Control Module References
Driver Information Center (DIC) System - 5.7L (L56)
Steering Wheel Controls - 2.8L/3.6L (LP1/LY7)
Class 2 Serial Data Bus - LHD - 2 of 2