GM Service Manual Online
For 1990-2009 cars only
Makes
🢒
Cadillac
🢒
2007
🢒
CTS
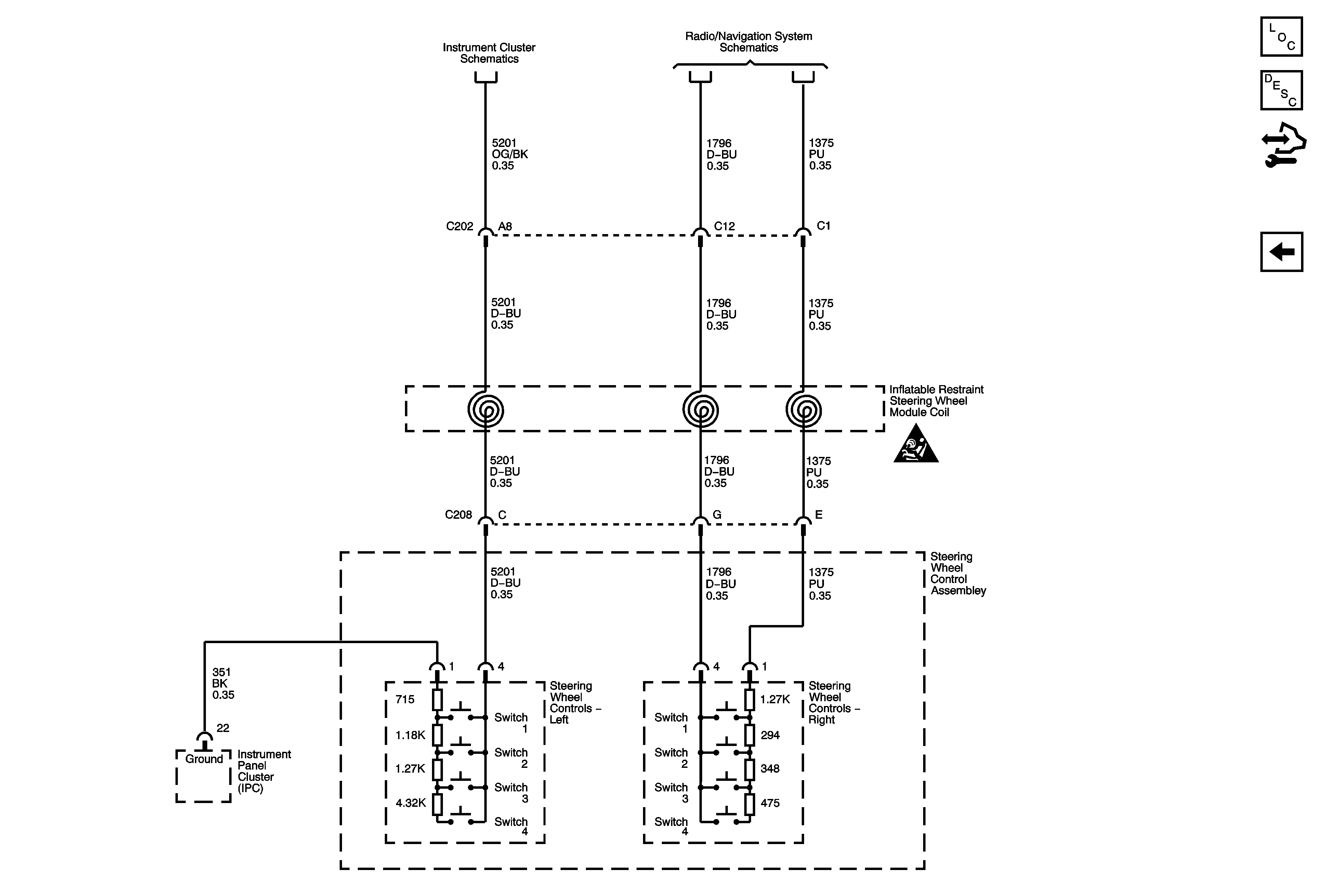
🢒 Steering Wheel Controls - 6.0L (LS2)
Steering Wheel Controls - 6.0L (LS2)
Steering Wheel Secondary/ Configurable Controls - 6.0L (LS2)
Master Electrical Component List
Steering Wheel and Column Description and Operation
Control Module References
Steering Wheel Controls - LP1/LY7 (2.8L/3.6L)
Indicators
Power, Ground, Serial Data and Audio Signal Communication
Entertainment Schematic Icons