GM Service Manual Online
For 1990-2009 cars only
Makes
🢒
Cadillac
🢒
2007
🢒
CTS
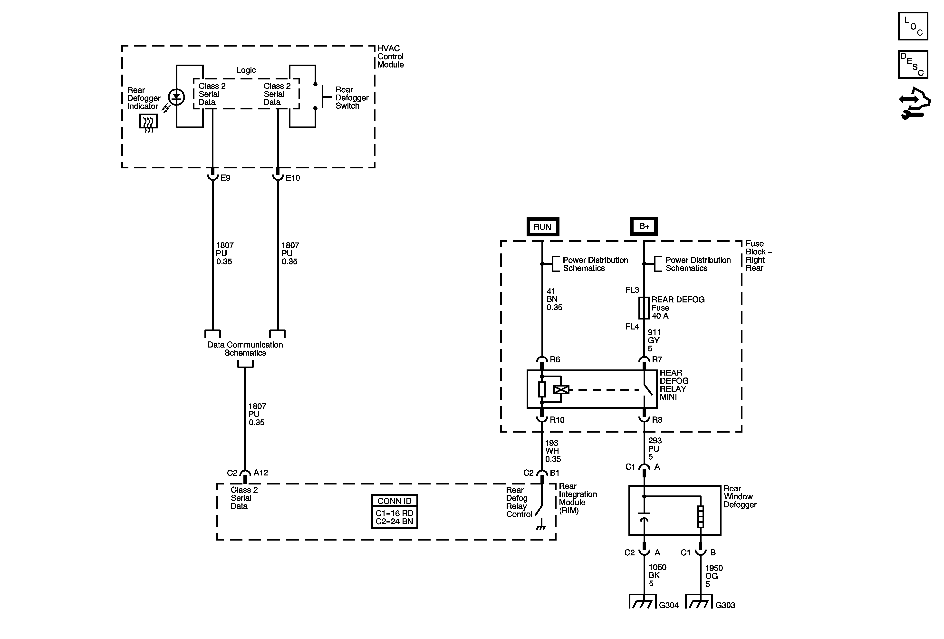
🢒 Fixed and Moveable Windows Defogger Schematics
Fixed and Moveable Windows Defogger Schematics
Master Electrical Component List
Rear Window Defogger Description and Operation
Control Module References
Class 2 (2 of 2 - RHD)
Left Rear Fuse Block Ign 3 Relay, LFRT HTD Seat MOD, MEM/ADAPT Seat, CCP, HDLP Leveling and IGN 3 Fuses
Left Rear Fuse Block Ign 3 Relay, LFRT HTD Seat MOD, MEM/ADAPT Seat, CCP, HDLP Leveling and IGN 3 Fuses
G102, G105, G110, G303, G304, and G306
G102, G105, G110, G303, G304, and G306