GM Service Manual Online
For 1990-2009 cars only
Makes
🢒
Cadillac
🢒
2007
🢒
CTS
🢒 Power Moding
Power Moding
Master Electrical Component List
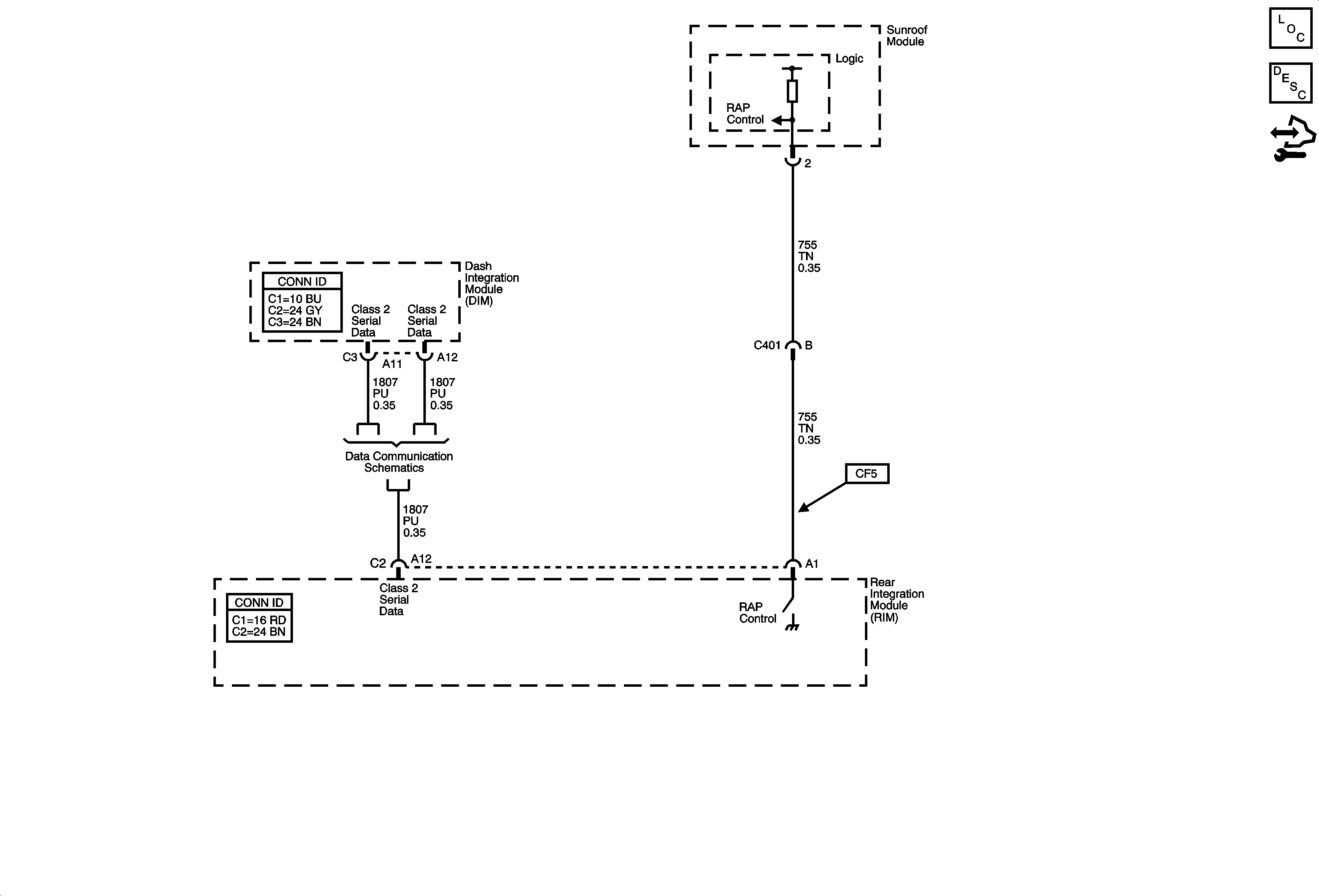
Retained Accessory Power (RAP) Description and Operation
Control Module References
Right Rear Fuse Block B+ Bus
Class 2 Serial Data Bus - LHD (2 of 2)