GM Service Manual Online
For 1990-2009 cars only
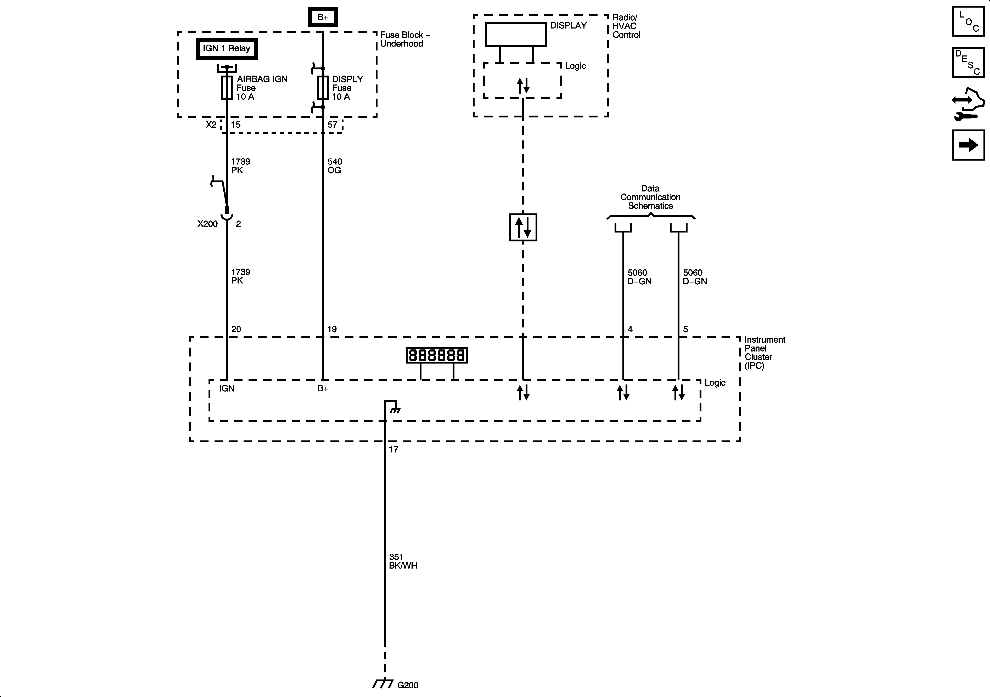
Figure 1:

Power, Ground and Odometer


Object Number: 1923871  Size: FS
Master Electrical Component List
Instrument Cluster Description and Operation
Control Module References
Indicators
Figure 2:

Indicators


Object Number: 1923874  Size: FS
Master Electrical Component List
Instrument Cluster Description and Operation
Control Module References
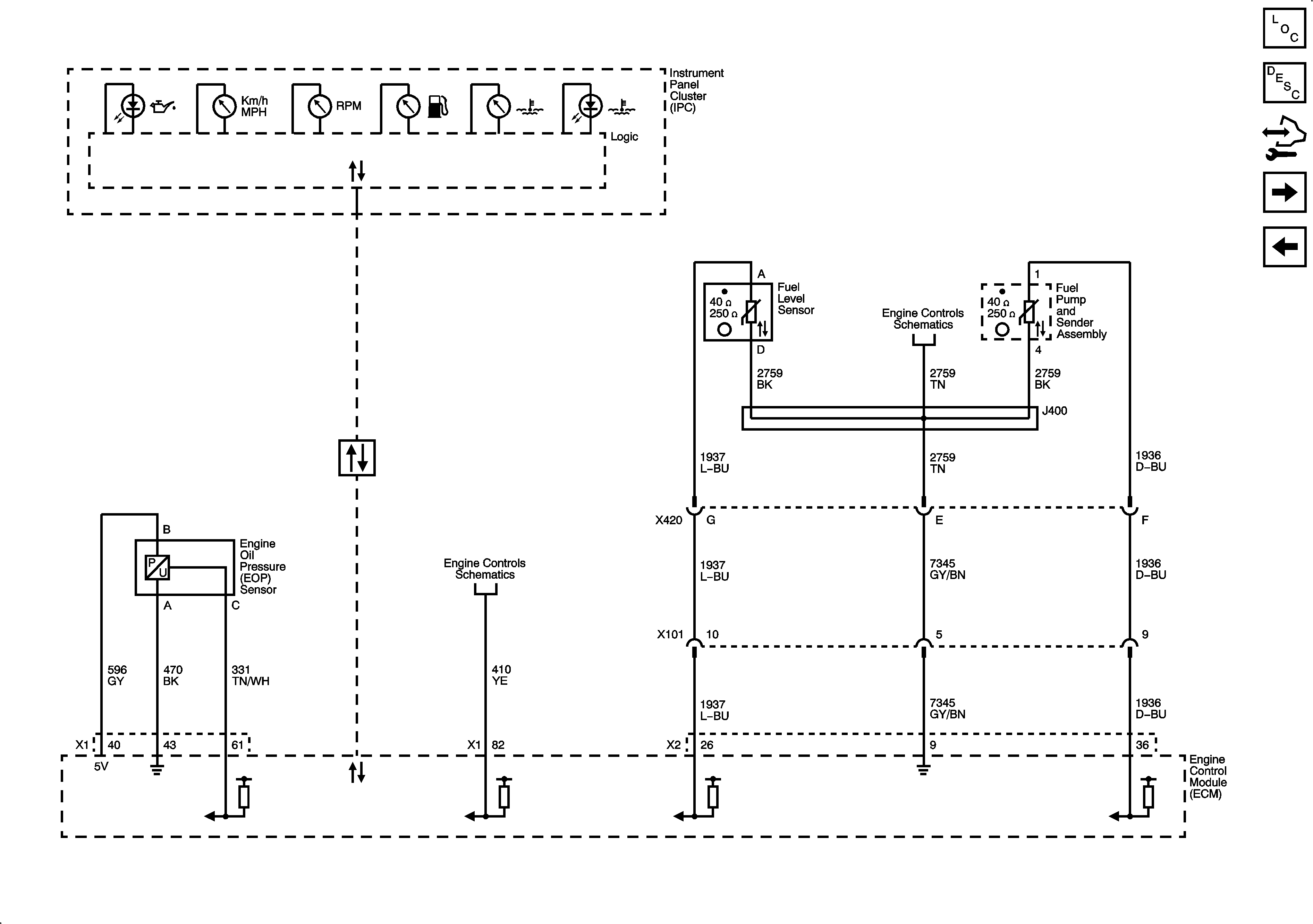
Gages
Power, Ground and Odometer
Figure 3:

Gages


Object Number: 1923878  Size: FS
Master Electrical Component List
Instrument Cluster Description and Operation
Control Module References
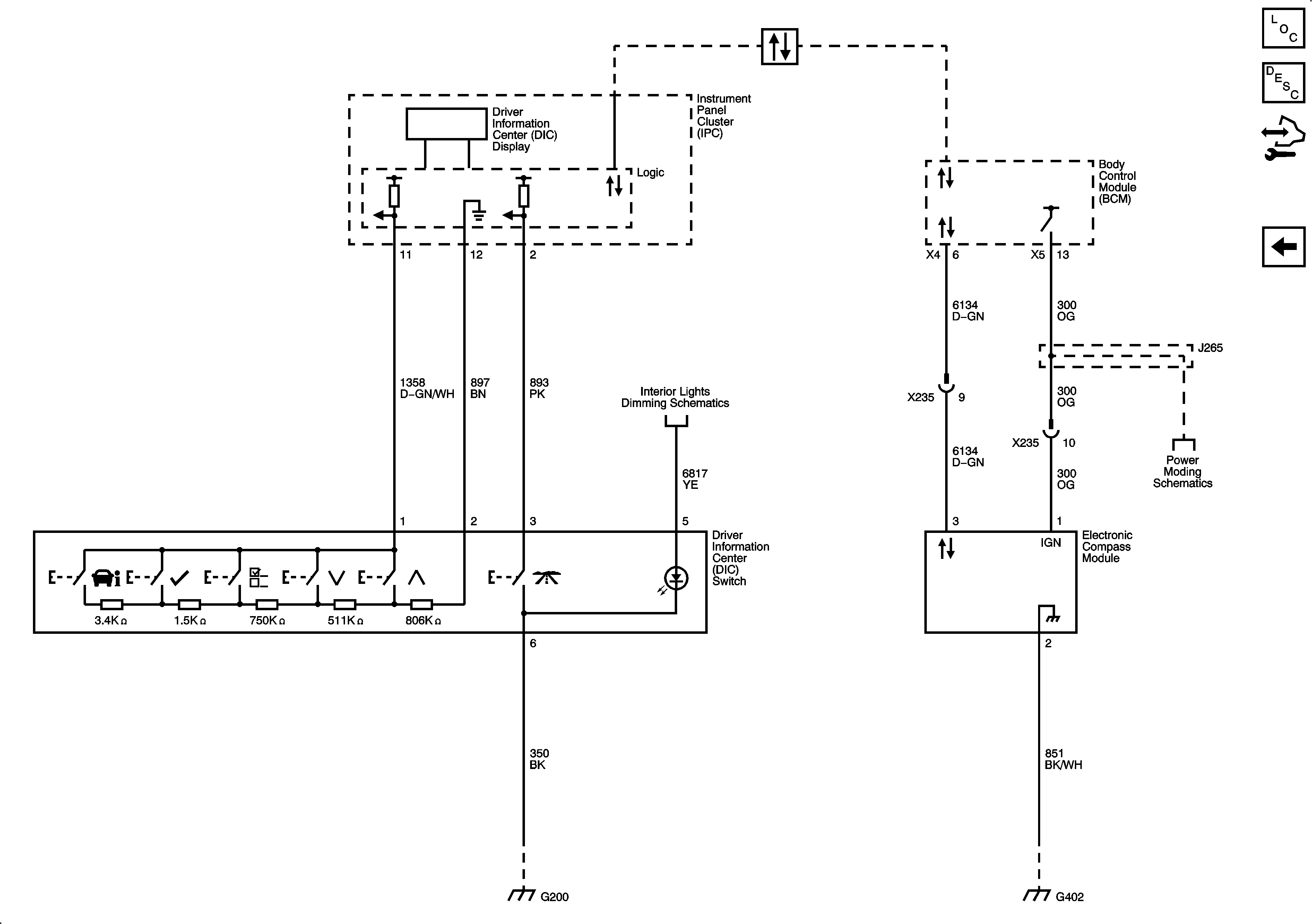
DIC
Indicators
Figure 4:

DIC


Object Number: 1923879  Size: FS
Master Electrical Component List
Instrument Cluster Description and Operation
Control Module References
Gages