GM Service Manual Online
For 1990-2009 cars only
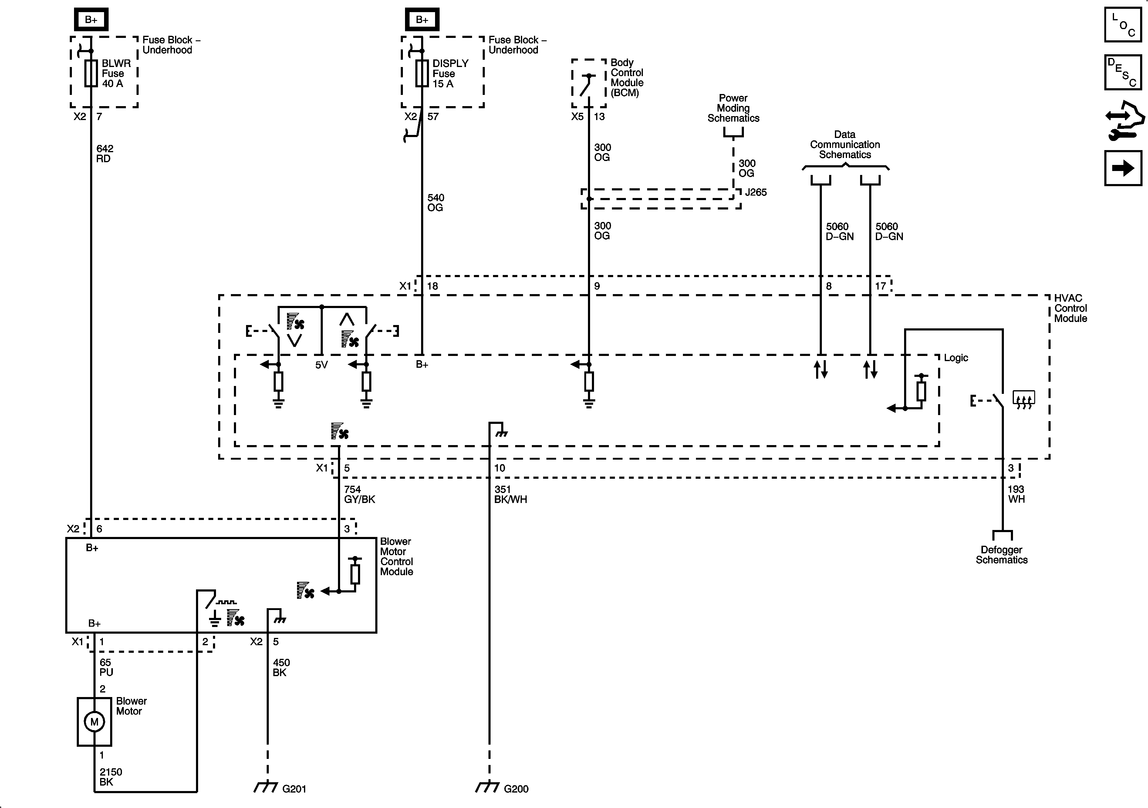
Figure 1:

Power, Ground, Data Communications and Blower Controls


Object Number: 2077203  Size: FS
Figure 2:

Mode and Temperature Controls (Left Hand Drive)


Object Number: 2077204  Size: FS
Figure 3:

Mode and Temperature Controls (Right Hand Drive)


Object Number: 2082153  Size: FS
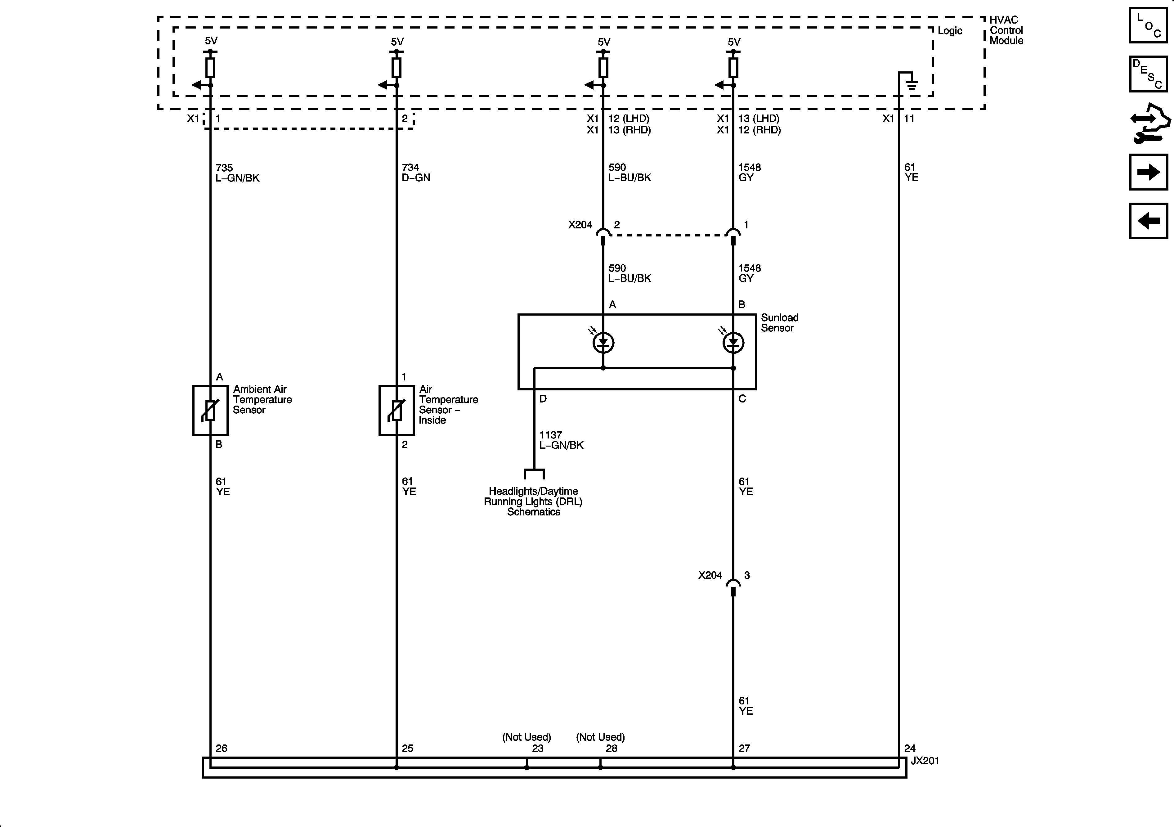
Figure 4:

Temperature Controls


Object Number: 2077205  Size: FS
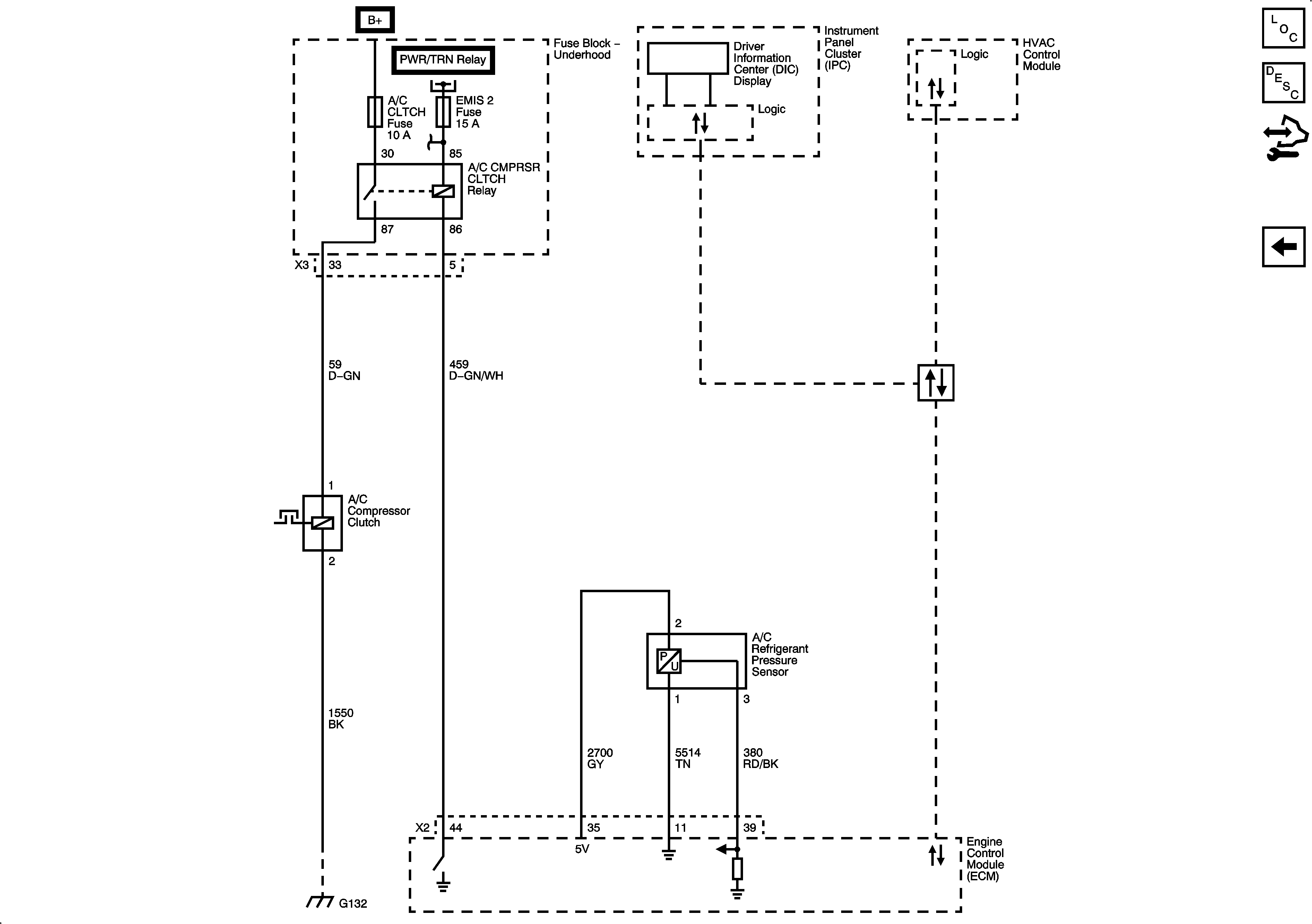
Figure 5:

A/C Compressor Controls


Object Number: 2077206  Size: FS