GM Service Manual Online
For 1990-2009 cars only
Makes
🢒
Cadillac
🢒
2001
🢒
Catera
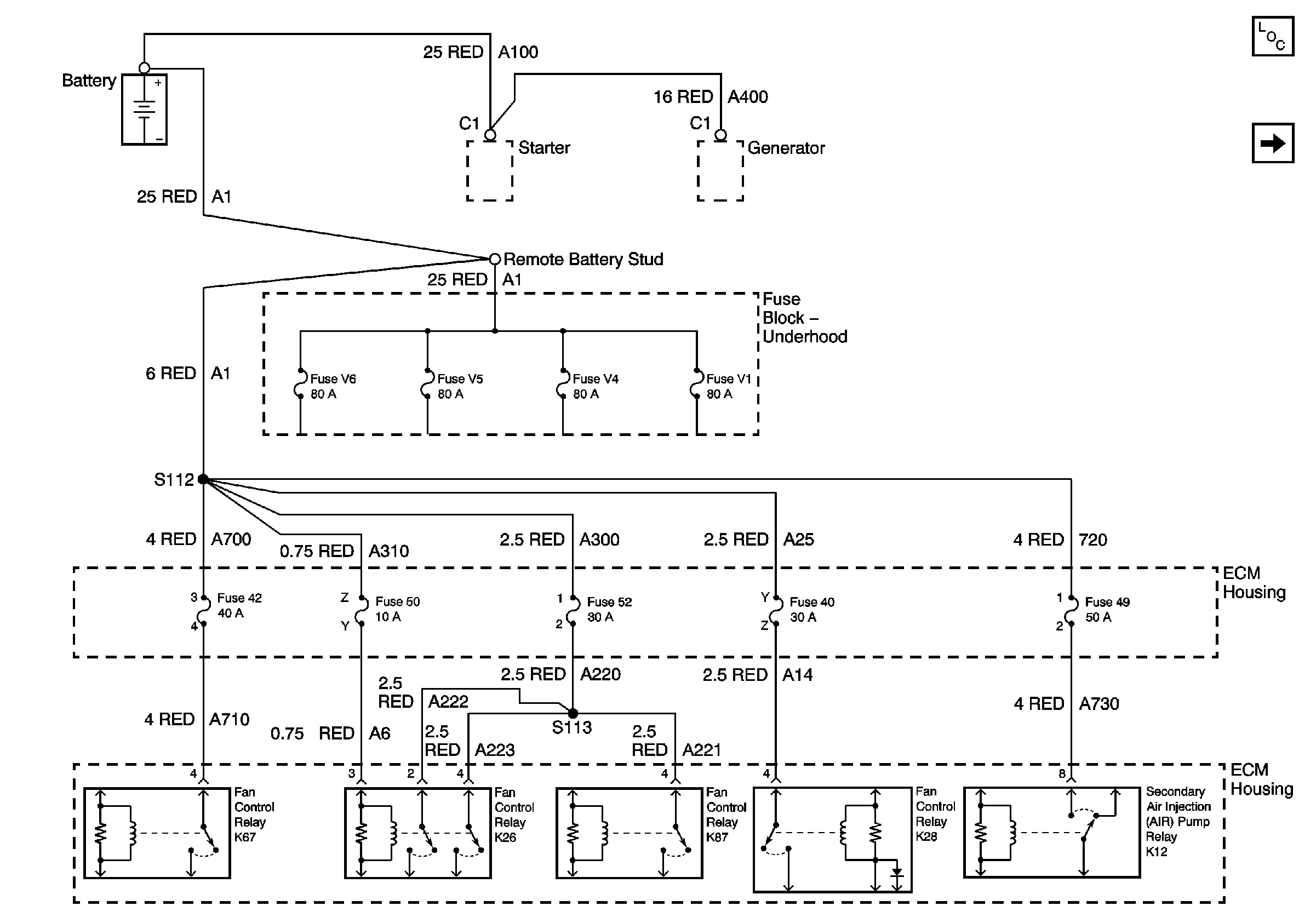
🢒 Battery Cable Bus
Battery Cable Bus
Fuses V6, V5, V4, V1, 42, 50, 52, 40, 49, AIR and Fan Control Relays
Master Electrical Component List
Underhood Fuse Block Fuse V6 and Fuse Block Fuses 17, 28, 29, 33, and34