GM Service Manual Online
For 1990-2009 cars only
Makes
🢒
Cadillac
🢒
2007
🢒
DTS
🢒
Diagnostic Navigation
🢒
Vehicle Diagnostic Information
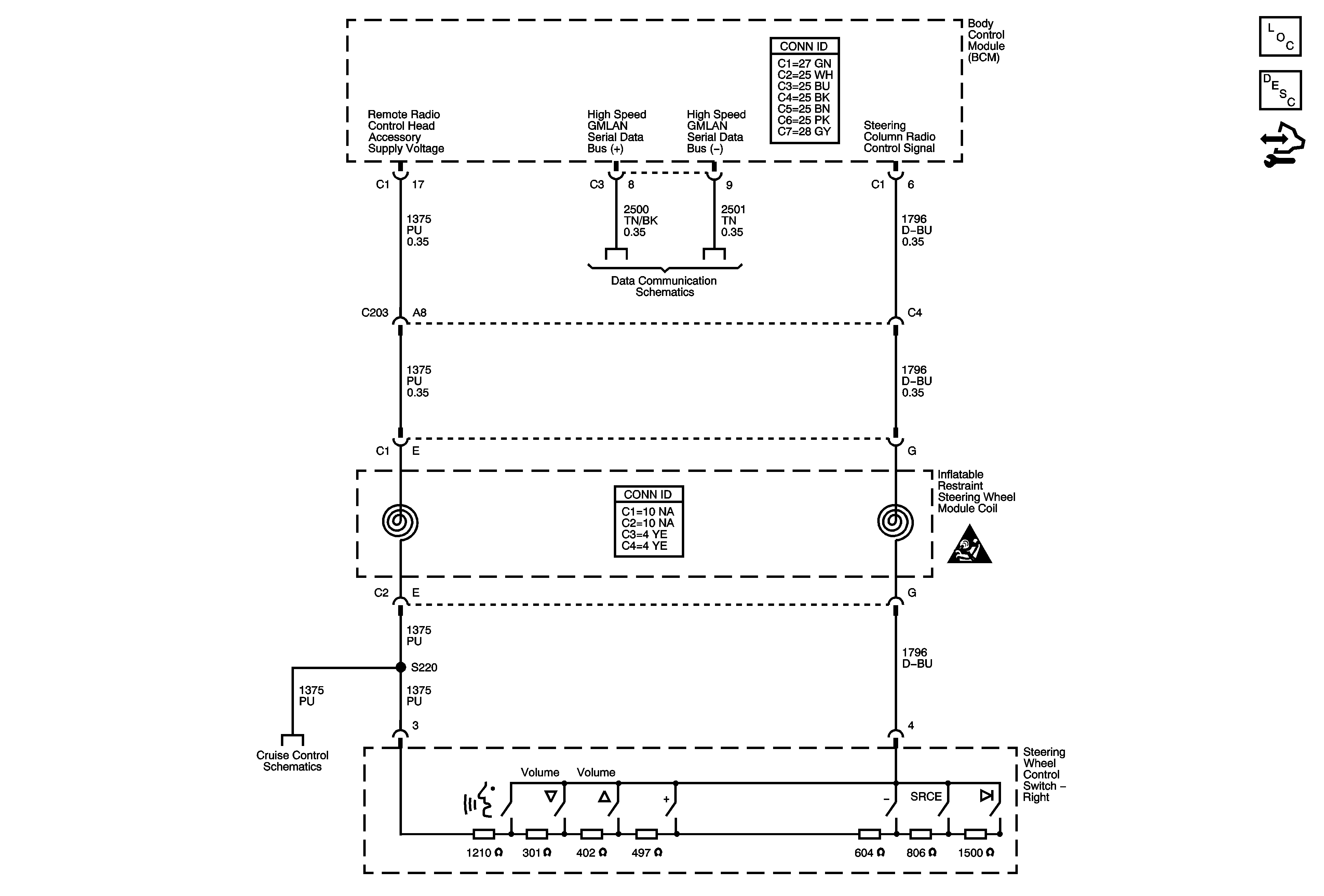
🢒 Steering Wheel Secondary/Configurable Control Schematics
Redundant Steering Wheel Controls
Master Electrical Component List
Steering Wheel Controls Description and Operation
Control Module References
High Speed Serial Data
ON/OFF Switch
Secondary/Configurable Control Schematic Icons