GM Service Manual Online
For 1990-2009 cars only
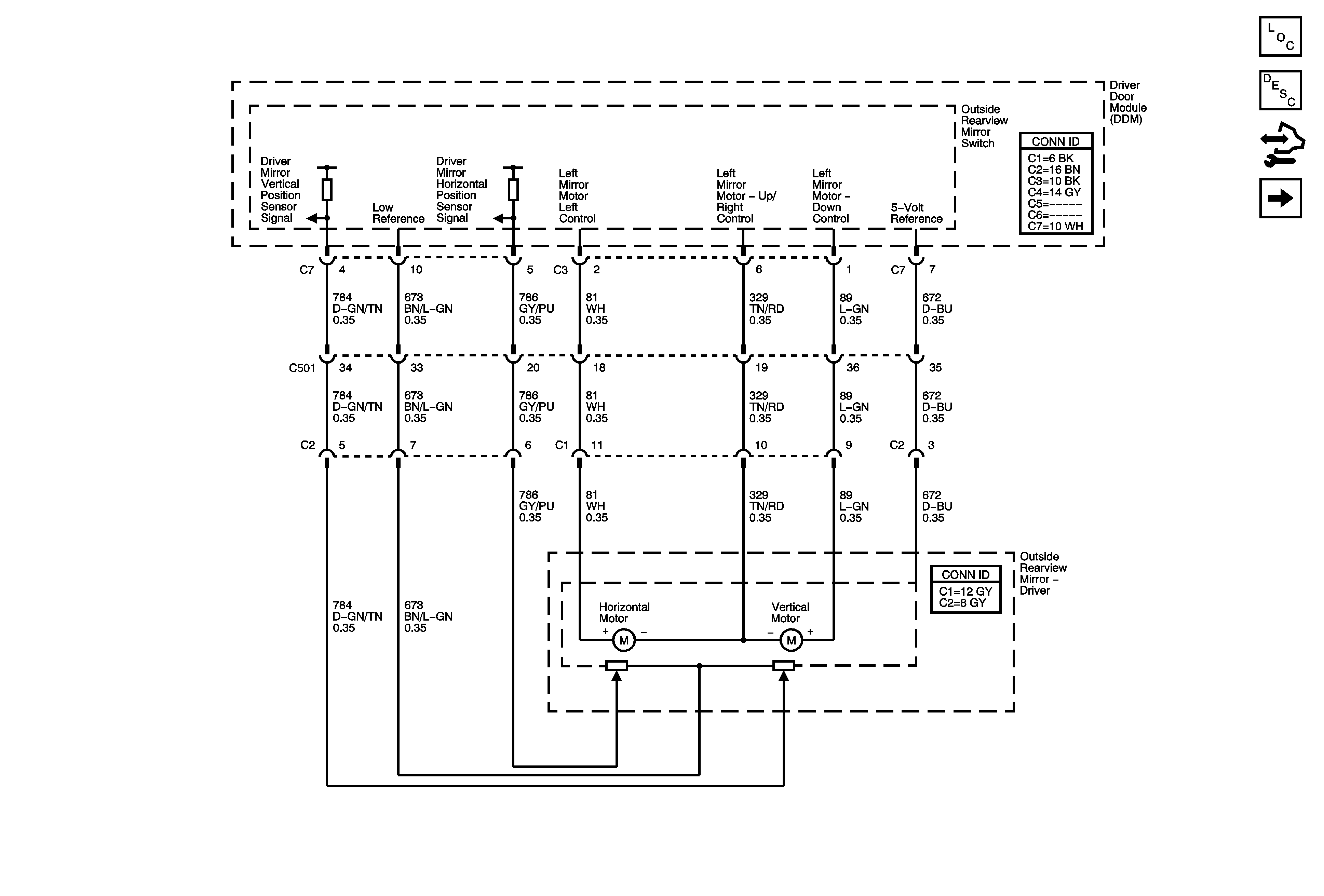
Figure 1:

Driver Outside Rearview Mirror


Object Number: 1759047  Size: FS
Outside Mirror Description and Operation (Power Mirrors)
Passenger Outside Rearview Mirror
Figure 2:

Passenger Outside Rearview Mirror


Object Number: 1759048  Size: FS
Outside Mirror Description and Operation (Power Mirrors)
Heated Mirrors w/ DR2
Driver Outside Rearview Mirror
Figure 3:

Heated Mirrors w/DR2


Object Number: 1759052  Size: FS
Outside Mirror Description and Operation (Heated Mirrors)
Folding Mirrors w/ DL3
Passenger Outside Rearview Mirror
Power, Ground and Low Speed GMLAN
Power, Ground and Low Speed GMLAN
Figure 4:

Folding Mirrors w/DL3


Object Number: 1759053  Size: FS
Outside Mirror Description and Operation (Power Mirrors)
Heated Mirrors w/ DR2