GM Service Manual Online
For 1990-2009 cars only
Makes
🢒
Cadillac
🢒
2007
🢒
DTS
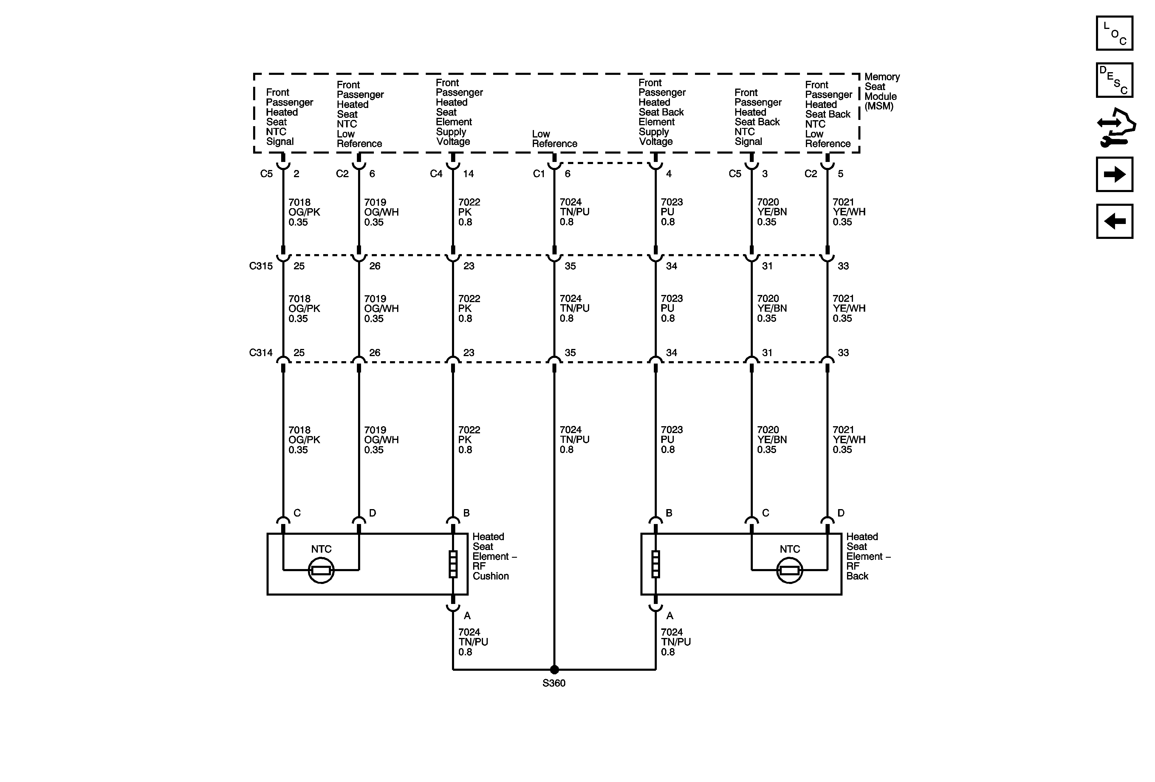
🢒 Passenger Heated Seat KA1
Passenger Heated Seat KA1
Passenger Heated Seat - KA1
Rear Heated Seats Description and Operation
Passenger Heated and Cooled Seat KB6
Driver Heated and Cooled Seat Switch KA1 KB6