GM Service Manual Online
For 1990-2009 cars only
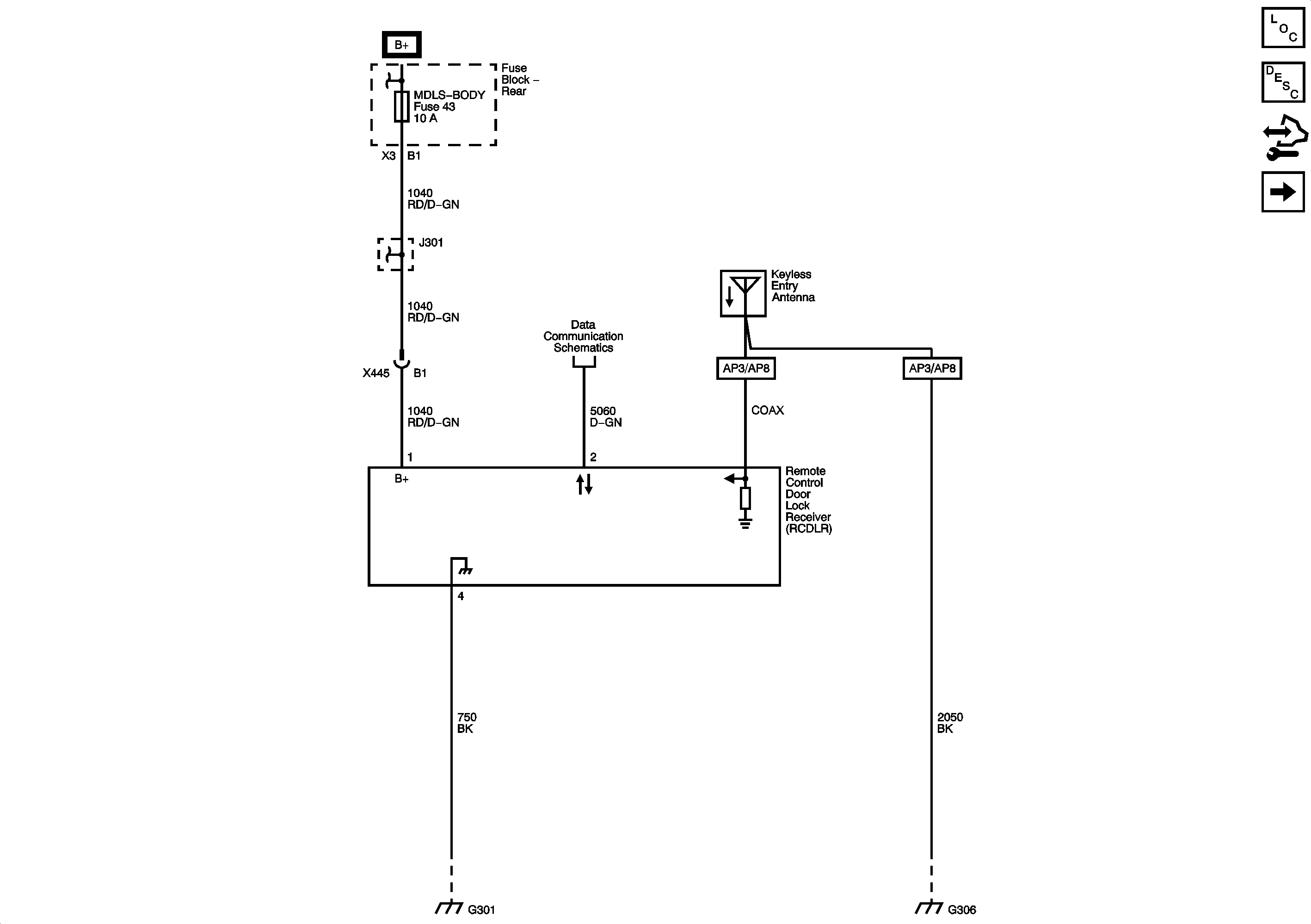
Figure 1:

Remote Control Door Lock Receiver (RCDLR)


Object Number: 2082395  Size: FS
Figure 2:

Door Latch Assemblies and Hood Ajar Switch


Object Number: 2082397  Size: FS
Figure 3:

Garage Door Opener


Object Number: 2082398  Size: FS