GM Service Manual Online
For 1990-2009 cars only
Makes
🢒
Cadillac
🢒
2001
🢒
DeVille
🢒
Body and Accessories
🢒
Wiring Systems
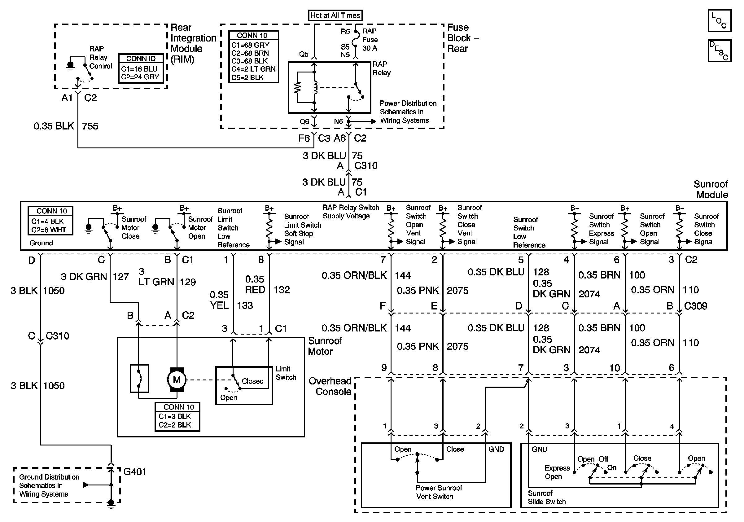
🢒 Sunroof Schematics
Master Electrical Component List
Sunroof Description and Operation
G401
CVRTD, Cigar, RAP, Sunshade Fuses