GM Service Manual Online
For 1990-2009 cars only
Makes
🢒
Cadillac
🢒
2001
🢒
DeVille
🢒 Overhead Console, Vanity and Courtesy Lamps
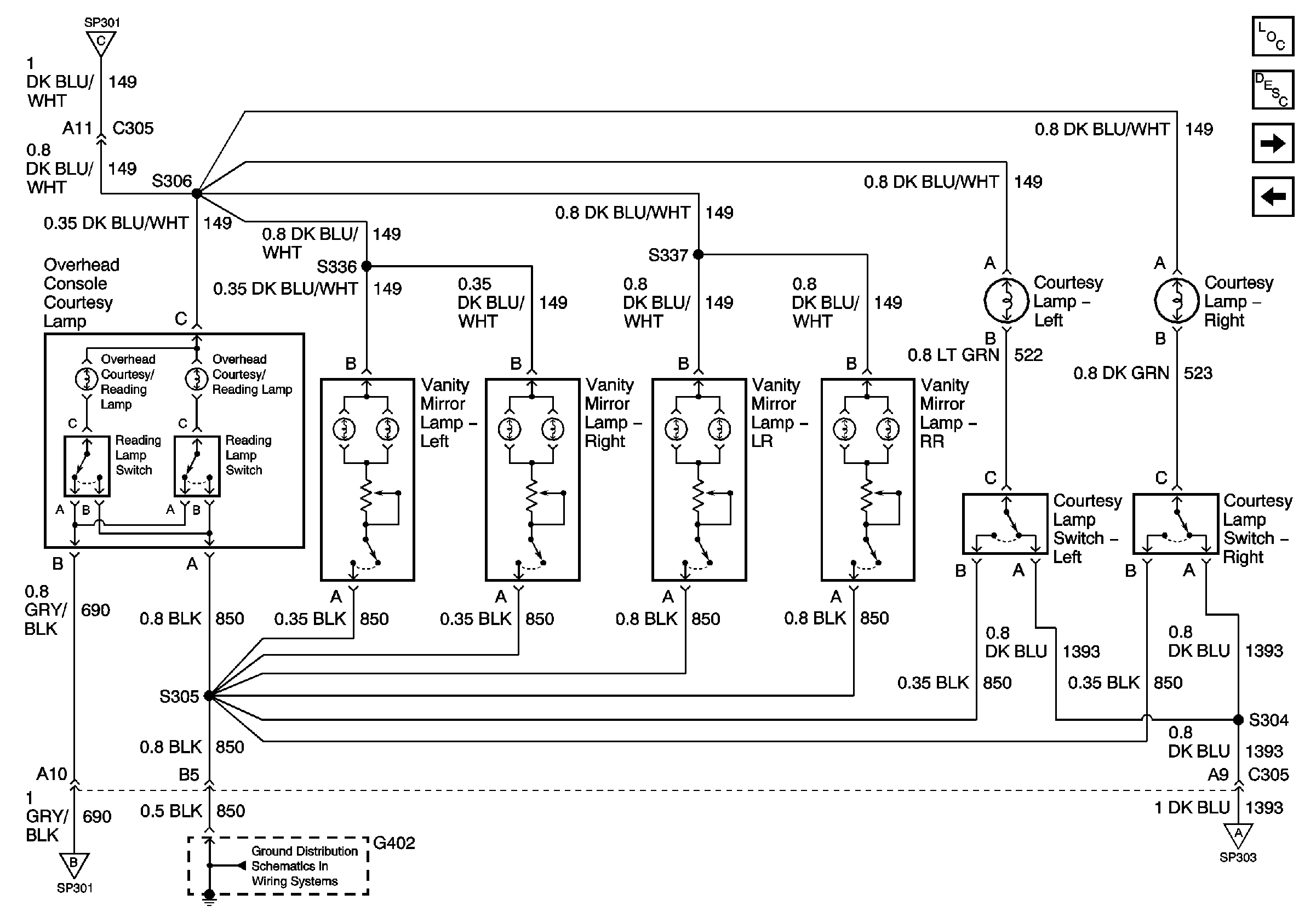
Overhead Console, Vanity and Courtesy Lamps
Overhead Console, Vanity and Courtesy Lamps
Master Electrical Component List
Interior Lighting Systems Description and Operation
Front Door Courtesy Lamps, Rear Compartment, and Underhood Lamps
G402 Headliner, Fuel Sender, V4U/B9Q