GM Service Manual Online
For 1990-2009 cars only
Makes
🢒
Cadillac
🢒
2004
🢒
DeVille
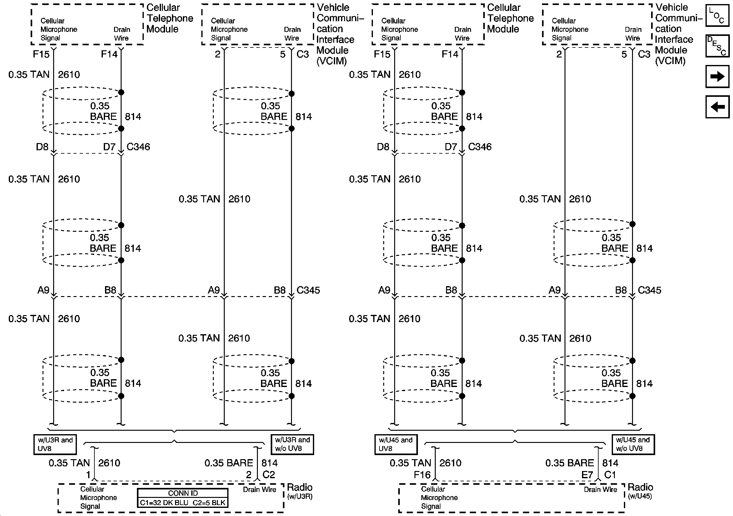
🢒 Domestic Microphone
Domestic Microphone
Domestic Microphone
Master Electrical Component List
Navigation System Description and Operation
Traffic Information Receiver (VICS) - Export
Auxilliary RCA Video Jacks and Microphone-Microphone