GM Service Manual Online
For 1990-2009 cars only
Makes
🢒
Cadillac
🢒
2004
🢒
DeVille
🢒 Right Seat Lumbar Massage (AM3)
Right Seat Lumbar Massage (AM3)
Passenger Seat (w/AM3)
Master Electrical Component List
Lumbar Support Description and Operation with A45
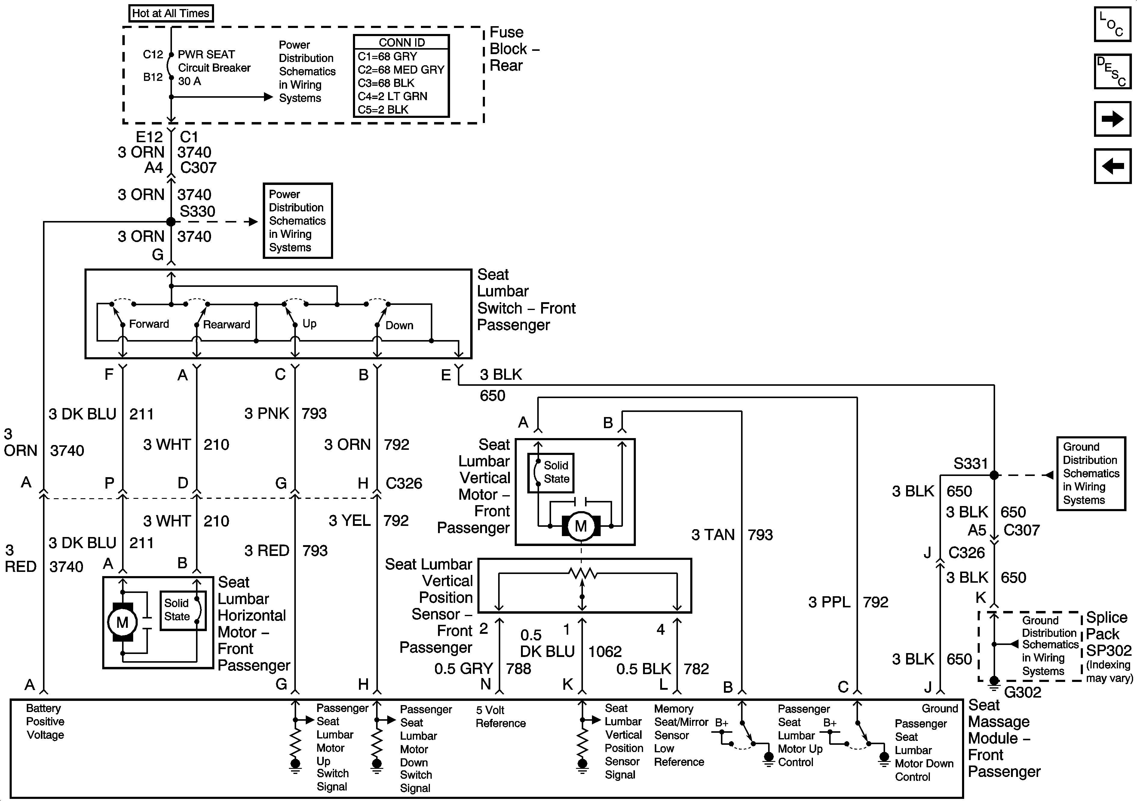
Power, Ground, Motors Sensors, Switch and MSM (w/A45/AL2)
Power, Ground, Motors Sensors, Switch and MSM (w/A45/AL2)
G302 1 of 3
G302 1 of 3
NAV Fuse and PWR Seat Circuit Breaker
NAV Fuse and PWR Seat Circuit Breaker